House Plan: DFD-2824

See All 5 Photos > (photographs may reflect modified homes)
© copyright by designer
SQ FT
3,292
BEDS
4
BATHS
3.5
STORIES
2
CARS
3
PLANS FROM $2,266
For questions and help, live chat, email or call us at 877-895-5299
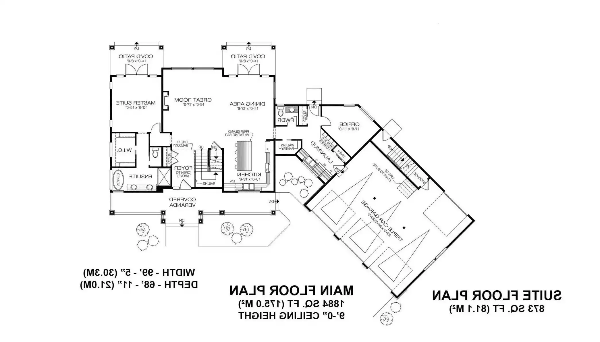
Floor Plans
Click to Zoom In on Floor Plan
 
About House Plan 2824:
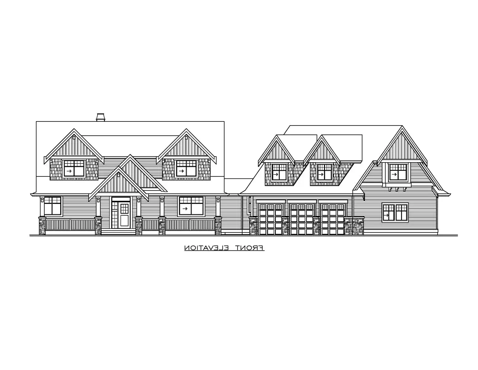
House Plan 2824 is a beautifully designed 4,057 sq. ft. Craftsman home that combines timeless curb appeal with today’s most wanted features. This two-story layout includes 4 bedrooms and 3.5 bathrooms, making it an excellent fit for families who need space to grow and gather. The main-level primary suite creates a private retreat and features direct access to its own covered patio. Upstairs, three secondary bedrooms are joined by a flexible bonus room that can serve as a media room, playroom, or hobby space. The open-concept main living area flows effortlessly between the great room, dining space, and kitchen for easy everyday living and entertaining. A dedicated home office on the first floor adds convenience for remote work or study. Outdoor enjoyment continues with a covered patio off the dining area, while the 3-car garage includes added living space above that could become a guest suite, apartment, or creative studio. House Plan 2824 offers the perfect balance of comfort, style, and Craftsman character.
House Plan Pricing
STEP 1 Select Your Package

PDF Single Build


Digital plans emailed to you in PDF format that allows for printing copies and sharing electronically with contractors, subs, decorators, and more. This package includes a license to build the home one time.

PDF Single Build $2,266
Most recommended package

5 Printed Sets + PDF


Includes 5 physical printed blueprint sets, shipped free via UPS within the U.S. Printed sets ship within 1 business day and are delivered within 3 – 5 business days. A complimentary PDF plan set is also emailed within 1 business day for easy sharing and local printing. These plans may be used to construct one home.

5 Printed Sets + PDF $2,417
5 Printed Sets + PDF

CAD + PDF Single Build


This plan package is created in AutoCAD and delivered in .DWG format. CAD files are intended for use by design professionals, structural engineers, and builders to update plans for local building codes or to make revisions based on specific needs, lot requirements, and budget considerations. A complimentary PDF copy is included with this package for reference. CAD packages are delivered within 1 to 2 business days.
 
This package also comes with a copyright release for making revisions and printing unlimited copies.

For details on the specific CAD program used, please refer to the PLAN DETAILS section located above the floor plan on each plan page.

CAD + PDF Single Build $4,209
2D electronic editable computer files

CAD + PDF Unlimited Build


This plan package is created in AutoCAD and delivered in .DWG format. CAD files are intended for use by design professionals, structural engineers, and builders to update plans for local building codes or to make revisions based on specific needs, lot requirements, and budget considerations. A complimentary PDF copy is included with this package for reference. CAD packages are delivered within 1 to 2 business days.
 
This package also comes with a multi-use building license, granting permission to construct the home an unlimited number of times, along with a copyright release for making revisions and printing unlimited copies.
 
For details on the specific CAD program used, please refer to the PLAN DETAILS section located above the floor plan on each plan page.

CAD + PDF Unlimited Build $8,388
2D electronic editable computer files
STEP 2 Need To Reverse This Plan?
STEP 3 CHOOSE YOUR FOUNDATION
STEP 4 OPTIONAL ADD-ONS
Subtotal:
$2266
FREE SHIPPING
 
Plan Details
See All Details
Finished Square Footage
1,884 Sq. Ft.
Main Level:
1,408 Sq. Ft.
Upper Level:
1,884 Sq. Ft.
Lower Level:
3,292 Sq. Ft.
Total:
Room Details
4
Bedrooms:
3
Full Baths:
1
Half Baths:
General House Information
2
Number of Stories:
99' 4"
Width:
68' 11"
Depth:
Single
Dwelling Number:
2nd Floor
Bonus Access:
Unfinished Square Footage
1070 Sq. Ft.
Garage:
224 Sq. Ft.
Deck:
873 Sq. Ft.
Bonus Room:
GARAGE
3
Garage Size:
Exterior Style
Country
Craftsman
Farmhouse
Traditional
Collections
Canada
Kitchens
Primary Suites
Open Floor Plan
Split Bedroom
Foundation
Basement
Crawl Space
Slab
Walkout Basement
Framing Information
Truss
Roof Framing:
2x6
Exterior Wall Framing:
Roof Pitch
12/12
Primary:
5/12
Secondary:
Insulation (R)
House And Ceiling Heights
9
First Floor Ceiling:
8
Second Floor Ceiling:
28' 4"
Maximum House Height:
Key Features
Attached
Covered Front Porch
Covered Rear Porch
Double Vanity Sink
Foyer
Front-entry
Great Room
Home Office
Kitchen Island
Laundry 1st Fl
L-Shaped
Primary Bdrm Main Floor
Mud Room
Open Floor Plan
Peninsula / Eating Bar
Separate Tub and Shower
Split Bedrooms
Storage Space
Suited for view lot
Vaulted Foyer
Walk-in Closet
Walk-in Pantry

Our Guarantees

  • Only the highest quality plans
  • Int’l Residential Code Compliant
  • Full structural details on all plans
  • Best plan price guarantee
  • Free modification Estimates
  • Builder-ready construction drawings
  • Expert advice from leading designers
  •  PDFs NOW!™ plans in minutes
  • 100% satisfaction guarantee
  • Free Home Building Organizer

See terms opt out anytime