House Plan: DFD-3398

See All 5 Photos > (photographs may reflect modified homes)
© copyright by designer
SQ FT
3,410
BEDS
4
BATHS
3.5
STORIES
2
CARS
3
PLANS FROM $2,475
For questions and help, live chat, email or call us at 877-895-5299
Floor Plans
Click to Zoom In on Floor Plan
 
About House Plan 3398:
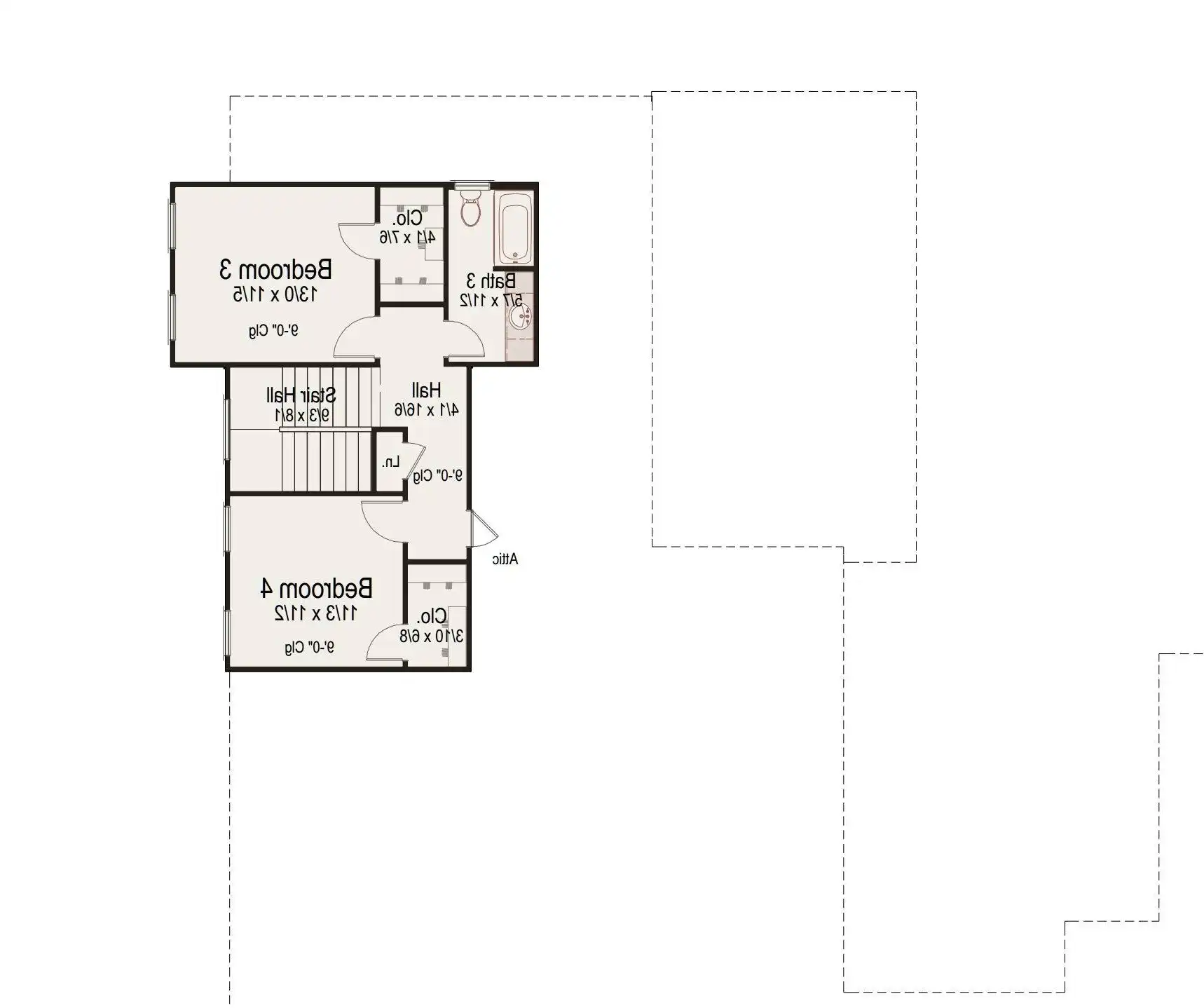
House Plan 3398 is one you need to see to appreciate with its totally unique design! This 3,410-square-foot home boasts four bedrooms and three-and-a-half bathrooms in a split-bedroom layout that maximizes family privacy. And with a floor plan that wraps around a courtyard, you have plenty of private outdoor space, too! The main floor places the five piece primary suite on one side of the foyer while the great room with an island kitchen is on the other. The common area opens to the outdoor living space, and you'll find a wet bar on both sides of the wall! The back hallway features a guest bedroom suite, the game room, laundry room, powder room, and the mudroom that connects to the three-car garage. There's also a staircase up to the second floor, where the final two bedrooms and a hall bath are located. 
House Plan Pricing
STEP 1 Select Your Package

PDF Bid Set


Home plans stamped "NOT FOR CONSTRUCTION" for cost estimating and bidding purposes only; a minimum 5 set plan package must be purchased within 90 days for a license to build plan set; a credit will be applied towards your house plan upgrade

PDF Bid Set $1,500
Digital set of plans for bidding purposes only

PDF Single Build


Digital plans emailed to you in PDF format that allows for printing copies and sharing electronically with contractors, subs, decorators, and more. This package includes a license to build the home one time.

PDF Single Build $2,475
Most recommended package

PDF + MOD License Single Build


Digital plans emailed to you in PDF format that allows for printing copies and sharing electronically with contractors, subs, decorators, and more. This package includes a modification license to build the home one time.
PDF + MOD License Single Build $3,595
PDF + MOD License Single Build

CAD + PDF Single Build


This plan package is created in AutoCAD and delivered in .DWG format. CAD files are intended for use by design professionals, structural engineers, and builders to update plans for local building codes or to make revisions based on specific needs, lot requirements, and budget considerations. A complimentary PDF copy is included with this package for reference. CAD packages are delivered within 1 to 2 business days.
 
This package also comes with a copyright release for making revisions and printing unlimited copies.

For details on the specific CAD program used, please refer to the PLAN DETAILS section located above the floor plan on each plan page.

CAD + PDF Single Build $3,900
2D electronic editable computer files
STEP 2 Need To Reverse This Plan?
STEP 3 CHOOSE YOUR FOUNDATION
STEP 4 OPTIONAL ADD-ONS
Subtotal:
$2475
FREE SHIPPING
 
Plan Details
See All Details
Finished Square Footage
2,880 Sq. Ft.
Main Level:
530 Sq. Ft.
Upper Level:
3,410 Sq. Ft.
Total:
Room Details
4
Bedrooms:
3
Full Baths:
1
Half Baths:
General House Information
2
Number of Stories:
81' 7"
Width:
86' 3"
Depth:
Single
Dwelling Number:
Unfinished Square Footage
1045 Sq. Ft.
Garage:
575 Sq. Ft.
Porch:
GARAGE
Front
Garage Location:
3
Garage Size:
Exterior Style
Country
European
Mediterranean
Southwest
Traditional
Collections
Kitchens
Luxury
Primary Suites
Mountain
Open Floor Plan
OtherCustom
Outdoor Living
Split Bedroom
Foundation
Basement
Crawl Space
Daylight Basement
Slab
Framing Information
Stick
Roof Framing:
2x4
Exterior Wall Framing:
Insulation (R)
House And Ceiling Heights
10
First Floor Ceiling:
9
Second Floor Ceiling:
Key Features
Attached
Basement
Courtyard
Covered Front Porch
Covered Rear Porch
Crawlspace
Double Vanity Sink
Fireplace
Foyer
Great Room
Guest Suite
His and Hers Primary Closets
Kitchen Island
Laundry 1st Fl
Primary Bdrm Main Floor
Mud Room
Open Floor Plan
Outdoor Kitchen
Outdoor Living Space
Rec Room
Separate Tub and Shower
Side-entry
Slab
Split Bedrooms
Suited for corner lot
Suited for view lot
U-Shaped
Walk-in Closet
Walk-in Pantry
Wine Cellar

Our Guarantees

  • Only the highest quality plans
  • Int’l Residential Code Compliant
  • Full structural details on all plans
  • Best plan price guarantee
  • Free modification Estimates
  • Builder-ready construction drawings
  • Expert advice from leading designers
  •  PDFs NOW!™ plans in minutes
  • 100% satisfaction guarantee
  • Free Home Building Organizer