20% off ALL House Plans Sitewide
20% off ALL House Plans Sitewide

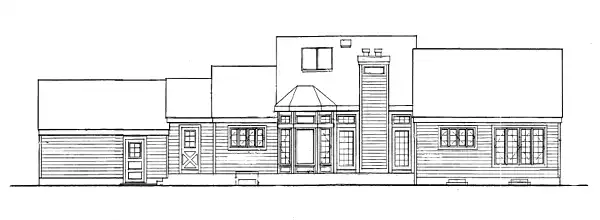
House Plan: DFD-3883

See All 4 Photos > (photographs may reflect modified homes)
© copyright by designer
SQ FT
1,650
BEDS
3
BATHS
2.5
STORIES
1
CARS
2
HOUSE PLANS SALE 
START AT  $796.00
For questions and help, live chat, email or call us at 877-895-5299
Floor Plans
Click to Zoom In on Floor Plan
 
About House Plan 3883:
The tall front porch opens into a high ceilinged foyer and adjacent living room. A formal dining room opens off the living room. The rear of the center zone features a beautiful open and flowing family entertaining center. A large U-shaped kitchen faces out to the bayed breakfast room and family room. Note the large master bath and convenient half bath near the garage.
House Plan Pricing
STEP 1 Select Your Package

PDF Bid Set


Home plans stamped "NOT FOR CONSTRUCTION" for cost estimating and bidding purposes only; a minimum 5 set plan package must be purchased within 90 days for a license to build plan set; a credit will be applied towards your house plan upgrade

PDF Bid Set $695
Immediate Delivery!
Digital set of plans for bidding purposes only

PDF Single Build


Digital plans emailed to you in PDF format that allows for printing copies and sharing electronically with contractors, subs, decorators, and more. This package includes a license to build the home one time.

PDF Single Build $995
Immediate Delivery!
Most recommended package

5 Printed Sets


Five Printed Sets of Residential Construction Drawings are typically 24” x 36” documents and come with a license to construct a single residence shipped to a physical address. Keep in mind PDF Plan Packages are our most popular choice which allows you to print as many copies as you need and to electronically send files to your builder, subcontractors, etc.

5 Printed Sets $1,105
Five printed sets of house plans

8 Printed Sets


Eight Printed Sets of Construction Drawings, typically 24” x 36” documents, with a license to construct a single residence shipped to your physical address. PDF Plan Packages are our most popular choice which allows you to print as many copies as you need and to electronically send files to your builder, subcontractors, bank/mortgage reps, material stores, decorators and more.

8 Printed Sets $1,180
Eight printed sets of house plans
STEP 2 CHOOSE YOUR FOUNDATION
STEP 3 OPTIONAL ADD-ONS
Subtotal:
$995
FREE SHIPPING
 
Plan Details
See All Details
Finished Square Footage
1,650 Sq. Ft.
Main Level:
1,650 Sq. Ft.
Total:
Room Details
3
Bedrooms:
2
Full Baths:
1
Half Baths:
General House Information
1
Number of Stories:
83' 2"
Width:
42' 4"
Depth:
Single
Dwelling Number:
Unfinished Square Footage
491 Sq. Ft.
Garage:
GARAGE
Side
Garage Location:
2
Garage Size:
Exterior Style
Country
Farmhouse
Ranch
Collections
Affordable
First Home
Old House Classics
Foundation
Basement
Crawl Space
Slab Foundation
Framing Information
Stick
Roof Framing:
2x6
Exterior Wall Framing:
Roof Pitch
7-1/2: 12
Primary:
Roof Load
30
Live:
10
Dead:
Insulation (R)
19
Exterior Wall:
0
Interior Wall:
38
Ceiling:
19
Floor:
House And Ceiling Heights
8'-0"
First Floor Ceiling:
24' 0"
Maximum House Height:
Facade
Owner's Choice
OwnersChoice
Key Features
2 & 1/2 Baths
2 Story Volume
Attached
Basement
Crawlspace
Dining Room
Fireplace
Formal Dining Room
Foyer
Front Porch
Front-entry
Separate Living / Family Room
Slab
Storage Space

Our Guarantees

  • Only the highest quality plans
  • Int’l Residential Code Compliant
  • Full structural details on all plans
  • Best plan price guarantee
  • Free modification Estimates
  • Builder-ready construction drawings
  • Expert advice from leading designers
  •  PDFs NOW!™ plans in minutes
  • 100% satisfaction guarantee
  • Free Home Building Organizer