20% Off House Plans Sitewide Ends Sunday
20% Off House Plans Sitewide Ends Sunday

House Plan: DFD-3903

See All 3 Photos > (photographs may reflect modified homes)
© copyright by designer
SQ FT
2,427
BEDS
4
BATHS
2.5
STORIES
2
CARS
2
HOUSE PLANS SALE 
START AT  $900.00
For questions and help, live chat, email or call us at 877-895-5299
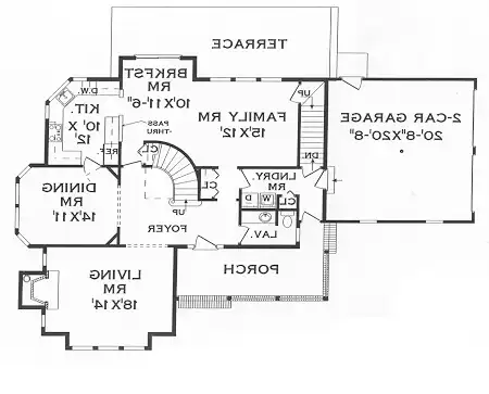
Floor Plans
Click to Zoom In on Floor Plan
 
About House Plan 3903:
This exqusite victorian is thoroghly up-to-date inside. A wrap-around front porch leads to beautiful foyer with circular staircase. An open family room/ breakfast/ kitchen space straddles the entire rear yard. A beautiful bayed dining room adjoins the foyer and living room. The spacious master suite includes two walk-in closets and a gorgeous compartmented bath. Note the optional studio located over garage which can be finished later.
House Plan Pricing
STEP 1 Select Your Package

PDF Bid Set


Home plans stamped "NOT FOR CONSTRUCTION" for cost estimating and bidding purposes only; a minimum 5 set plan package must be purchased within 90 days for a license to build plan set; a credit will be applied towards your house plan upgrade

PDF Bid Set $825
Immediate Delivery!
Digital set of plans for bidding purposes only

PDF Single Build


Digital plans emailed to you in PDF format that allows for printing copies and sharing electronically with contractors, subs, decorators, and more. This package includes a license to build the home one time.

PDF Single Build $1,125
Immediate Delivery!
Most recommended package

5 Printed Sets


Five Printed Sets of Residential Construction Drawings are typically 24” x 36” documents and come with a license to construct a single residence shipped to a physical address. Keep in mind PDF Plan Packages are our most popular choice which allows you to print as many copies as you need and to electronically send files to your builder, subcontractors, etc.

5 Printed Sets $1,236
Five printed sets of house plans

8 Printed Sets


Eight Printed Sets of Construction Drawings, typically 24” x 36” documents, with a license to construct a single residence shipped to your physical address. PDF Plan Packages are our most popular choice which allows you to print as many copies as you need and to electronically send files to your builder, subcontractors, bank/mortgage reps, material stores, decorators and more.

8 Printed Sets $1,310
Eight printed sets of house plans
STEP 2 CHOOSE YOUR FOUNDATION
STEP 3 OPTIONAL ADD-ONS
Subtotal:
$1125
FREE SHIPPING
 
Plan Details
See All Details
Finished Square Footage
1,292 Sq. Ft.
Main Level:
1,135 Sq. Ft.
Upper Level:
2,427 Sq. Ft.
Total:
Room Details
4
Bedrooms:
2
Full Baths:
1
Half Baths:
General House Information
2
Number of Stories:
65' 0"
Width:
41' 8"
Depth:
Single
Dwelling Number:
Unfinished Square Footage
470 Sq. Ft.
Garage:
316 Sq. Ft.
Bonus Room:
GARAGE
Side
Garage Location:
2
Garage Size:
Exterior Style
Country
Craftsman
Victorian
Foundation
Basement
Crawl Space
Slab Foundation
Framing Information
Stick
Roof Framing:
2x6
Exterior Wall Framing:
Roof Pitch
12/12
Primary:
Roof Load
30
Live:
10
Dead:
Insulation (R)
19
Exterior Wall:
0
Interior Wall:
38
Ceiling:
19
Floor:
House And Ceiling Heights
8'-0"
First Floor Ceiling:
8'-0"
Second Floor Ceiling:
Facade
Owner's Choice
OwnersChoice
Key Features
Attached
Basement
Bonus Room
Country Kitchen
Covered Front Porch
Crawlspace
Deck
Dining Room
Double Vanity Sink
Family Room
Fireplace
Formal LR
Foyer
His and Hers Primary Closets
Laundry 1st Fl
Primary Bdrm Upstairs
Nook / Breakfast Area
Peninsula / Eating Bar
Rec Room
Separate Tub and Shower
Slab
Unfinished Space
Walk-in Closet
Wraparound Porch

Our Guarantees

  • Only the highest quality plans
  • Int’l Residential Code Compliant
  • Full structural details on all plans
  • Best plan price guarantee
  • Free modification Estimates
  • Builder-ready construction drawings
  • Expert advice from leading designers
  •  PDFs NOW!™ plans in minutes
  • 100% satisfaction guarantee
  • Free Home Building Organizer