20% off ALL House Plans Sitewide
20% off ALL House Plans Sitewide

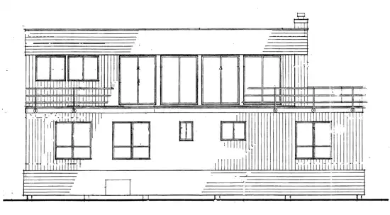
House Plan: DFD-4195

See All 2 Photos > (photographs may reflect modified homes)
© copyright by designer
SQ FT
2,025
BEDS
4
BATHS
2.5
STORIES
2
CARS
1
HOUSE PLANS SALE 
START AT  $936.00
For questions and help, live chat, email or call us at 877-895-5299
Floor Plans
Click to Zoom In on Floor Plan
 
About House Plan 4195:
This unique, exclusive plan is designed for that lot where you want to capture a great view. It is referred to an "upside-down" plan as the living area is on the second floor to better partake of the view. There is a huge deck as well off this upper level, where your outdoor living will take place. This upper floor has a 10-foot high ceiling throughout. The lower level contains 4 bedrooms, including a spacious master suite and two full baths. The home is designed on a pier foundation to satisfy beachfront or lakefront locations, but could be built with a basement if your lot allows.
House Plan Pricing
STEP 1 Select Your Package

PDF Bid Set


Home plans stamped "NOT FOR CONSTRUCTION" for cost estimating and bidding purposes only; a minimum 5 set plan package must be purchased within 90 days for a license to build plan set; a credit will be applied towards your house plan upgrade

PDF Bid Set $925
Immediate Delivery!
Digital set of plans for bidding purposes only

PDF Single Build


Digital plans emailed to you in PDF format that allows for printing copies and sharing electronically with contractors, subs, decorators, and more. This package includes a license to build the home one time.

PDF Single Build $1,170
Immediate Delivery!
Most recommended package

5 Printed Sets


Five Printed Sets of Residential Construction Drawings are typically 24” x 36” documents and come with a license to construct a single residence shipped to a physical address. Keep in mind PDF Plan Packages are our most popular choice which allows you to print as many copies as you need and to electronically send files to your builder, subcontractors, etc.

5 Printed Sets $1,280
Five printed sets of house plans

8 Printed Sets


Eight Printed Sets of Construction Drawings, typically 24” x 36” documents, with a license to construct a single residence shipped to your physical address. PDF Plan Packages are our most popular choice which allows you to print as many copies as you need and to electronically send files to your builder, subcontractors, bank/mortgage reps, material stores, decorators and more.

8 Printed Sets $1,365
Eight printed sets of house plans
STEP 2 CHOOSE YOUR FOUNDATION
STEP 3 OPTIONAL ADD-ONS
Subtotal:
$1170
FREE SHIPPING
 
Plan Details
See All Details
Finished Square Footage
1,227 Sq. Ft.
Main Level:
798 Sq. Ft.
Upper Level:
2,025 Sq. Ft.
Total:
Room Details
4
Bedrooms:
2
Full Baths:
1
Half Baths:
General House Information
2
Number of Stories:
54' 0"
Width:
38' 0"
Depth:
Single
Dwelling Number:
Unfinished Square Footage
288 Sq. Ft.
Garage:
1052 Sq. Ft.
Deck:
GARAGE
Front
Garage Location:
1
Garage Size:
Exterior Style
Beach
Contemporary
Modern
Collections
Outdoor Living
Vacation
Foundation
Pier Foundation
Framing Information
Stick
Roof Framing:
2x4
Exterior Wall Framing:
Roof Load
30
Live:
10
Dead:
Insulation (R)
Per IRC Climate Zones
House And Ceiling Heights
8.1
First Floor Ceiling:
10.1
Second Floor Ceiling:
27' 0"
Maximum House Height:
Facade
OwnersChoice
Key Features
Carport
Deck
Double Vanity Sink
Fireplace
Great Room
His and Hers Primary Closets
Inverted Living
Laundry 1st Fl
Primary Bdrm Main Floor
Peninsula / Eating Bar
Pier
Separate Tub and Shower
Side-entry
Suited for narrow lot
Suited for view lot
Vaulted Ceilings
Walk-in Pantry
Wraparound Porch

Our Guarantees

  • Only the highest quality plans
  • Int’l Residential Code Compliant
  • Full structural details on all plans
  • Best plan price guarantee
  • Free modification Estimates
  • Builder-ready construction drawings
  • Expert advice from leading designers
  •  PDFs NOW!™ plans in minutes
  • 100% satisfaction guarantee
  • Free Home Building Organizer