15% off ALL House Plans Sitewide
15% off ALL House Plans Sitewide

House Plan: DFD-4648

See All 2 Photos > (photographs may reflect modified homes)
© copyright by designer
SQ FT
2,102
BEDS
3
BATHS
2.5
STORIES
3
CARS
2
HOUSE PLANS SALE 
START AT  $1,406.75
For questions and help, live chat, email or call us at 877-895-5299
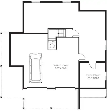
Floor Plans
Click to Zoom In on Floor Plan
 
About House Plan 4648:
1st level: Foyer, dining room and living room, kitchen-dinette, office area, master suite, half-bath, laundry room and sunroom. 2nd level: Two bedrooms, shower room and computer area.
9' ceiling in the activity area and cathedral up to 15' in master suite. Fireplace shared between master suite and living room. Remarkable kitchen with walk-in pantry, two windows and 20' linear of counter. Master suite with private shower room and walk-in closet. Two nice bedrooms on 2nd level. Two-car garage in the basement with workshop-storage space nearby. Unobstructed views! If you are looking for a home to capture a view, this model is sure to please. Simple and elegant lines, abundant windows, a screened veranda and wraparound deck... These are only the exterior allures of this model. A further benefit is a front façade just as attractive as the rear thus allowing great flexibility for a wide variety of lot styles. Inside, a well-positioned staircase allows for panoramic views and casual access to the wraparound deck. The master bedroom is conveniently found on the main level adorned by a veranda access, a walk-in closet, master bathroom vualted ceiling and a two-sided fireplace which is shared with the family room. A guest bathroom and laundry complete the main level comforts. Upstairs, we find two bedrooms and a full bathroom as well as a computer or reading nook. The lower level includes a two-car garage with workshop and undeveloped spaces for additional bedrooms, office or media area.
House Plan Pricing
STEP 1 Select Your Package

PDF Single Build


Digital plans emailed to you in PDF format that allows for printing copies and sharing electronically with contractors, subs, decorators, and more. This package includes a license to build the home one time.

PDF Single Build $1,655
Most recommended package

3 Printed Sets + PDF


Includes 3 physical printed blueprint sets, shipped free via UPS within the U.S. Printed sets ship within 1 business day and are delivered within 3 – 5 business days. A complimentary PDF plan set is also emailed within 1 business day for easy sharing and local printing. These plans may be used to construct one home.

3 Printed Sets + PDF $1,880
3 Printed Sets + PDF

CAD + PDF Single Build


This plan package is created in AutoCAD and delivered in .DWG format. CAD files are intended for use by design professionals, structural engineers, and builders to update plans for local building codes or to make revisions based on specific needs, lot requirements, and budget considerations. A complimentary PDF copy is included with this package for reference. CAD packages are delivered within 1 to 2 business days.
 
This package also comes with a copyright release for making revisions and printing unlimited copies.

For details on the specific CAD program used, please refer to the PLAN DETAILS section located above the floor plan on each plan page.

CAD + PDF Single Build $2,740
2D electronic editable computer files
STEP 2 Need To Reverse This Plan?
STEP 3 CHOOSE YOUR FOUNDATION
STEP 4 OPTIONAL ADD-ONS
Subtotal:
$1655
FREE SHIPPING
Please allow 3-5 business days for delivery of this plan Please check our PDFs NOW collection for plans that can be downloaded and received immediately or live chat us to help you find a similar plan available now.
 
Plan Details
See All Details
Finished Square Footage
1,424 Sq. Ft.
Main Level:
678 Sq. Ft.
Upper Level:
2,102 Sq. Ft.
Total:
Room Details
3
Bedrooms:
2
Full Baths:
1
Half Baths:
General House Information
3
Number of Stories:
44' 0"
Width:
40' 4"
Depth:
Single
Dwelling Number:
None
Bonus Access:
Unfinished Square Footage
703 Sq. Ft.
Garage:
GARAGE
Under
Garage Location:
2
Garage Size:
Exterior Style
Cottage
Craftsman
Lake
Collections
Builders
Canada
Florida
Old House Classics
Open Floor Plan
Outdoor Living
Pet Lovers
Vacation
Foundation
Crawlspace
Floating slab
Monolithic slab
Walkout basement (included)
Framing Information
Truss
Roof Framing:
2x6
Exterior Wall Framing:
Roof Pitch
10/12
Primary:
Roof Load
55
Live:
20
Dead:
Insulation (R)
20
Exterior Wall:
0
Interior Wall:
40
Ceiling:
0
Floor:
House And Ceiling Heights
8
First Floor Ceiling:
9
Second Floor Ceiling:
33' 8"
Maximum House Height:
Key Features
Attached
Basement
Bonus Room
Butler's Pantry
Country Kitchen
Courtyard
Covered Front Porch
Covered Rear Porch
Crawlspace
Daylight Basement
Deck
Dining Room
Double Vanity Sink
Family Room
Fireplace
Formal LR
Foyer
Front Porch
Home Office
Kitchen Island
Laundry 2nd Fl
Loft / Balcony
Primary Bdrm Upstairs
Mud Room
Open Floor Plan
Peninsula / Eating Bar
Rear Porch
Screened Porch/Sunroom
Sitting Area
Slab
Storage Space
Suited for corner lot
Suited for sloping lot
Suited for view lot
Unfinished Space
Walk-in Closet
Walk-in Pantry
Walkout Basement

Our Guarantees

  • Only the highest quality plans
  • Int’l Residential Code Compliant
  • Full structural details on all plans
  • Best plan price guarantee
  • Free modification Estimates
  • Builder-ready construction drawings
  • Expert advice from leading designers
  •  PDFs NOW!™ plans in minutes
  • 100% satisfaction guarantee
  • Free Home Building Organizer