20% Off House Plans Sitewide Ends Sunday
20% Off House Plans Sitewide Ends Sunday

House Plan: DFD-4871

See All 5 Photos > (photographs may reflect modified homes)
© copyright by designer
SQ FT
8,523
BEDS
5
BATHS
5
STORIES
3
CARS
4
HOUSE PLANS SALE 
START AT  $3,096.00
For questions and help, live chat, email or call us at 877-895-5299
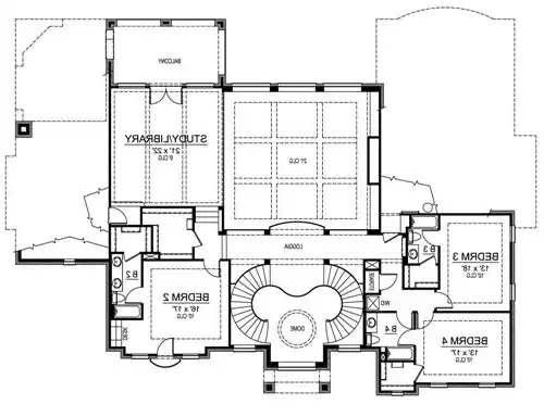
Floor Plans
Click to Zoom In on Floor Plan
 
About House Plan 4871:
This elegant luxury chateau home plan showcases exterior architectural elements and varied ceiling treatments. Entering through the double front doors to the two-story foyer, your eyes are immediately drawn to the stunning spiral staircases. You can see through the great room with warming fireplace flanked by built-ins to the rear of the house. To the right of the foyer is the elegant dining room with built-ins and doors onto the veranda. Adjacent to the dining room is the pantry and kitchen for ease in serving family and friends. In the family gathering area, the gourmet kitchen offers a free-standing island and breakfast bar for serving the family room and breakfast area. A built-in desk in the breakfast area sits under a window for extra lighting. The family room has a coffered ceiling, built-ins, warming corner fireplace and doors that lead to the patio and deck. The master suite boasts a trey ceiling, entrance to the deck and a lavish master bath with his and hers vanities, separate shower, tub and large his and hers wardrobe. Upstairs three family bedrooms with trey ceilings, walk-in closets, and full baths share space with the vaulted study/library with private balcony, The basement offers plenty of entertaining in the game room with a bar and fireplace. There is also an exercise room, plenty of storage and a fifth bedroom with walk-in closet and full bath as well as patio access. This elegant luxury chateau home plan contains four garage spaces.
House Plan Pricing
STEP 1 Select Your Package

PDF Single Build


Digital plans emailed to you in PDF format that allows for printing copies and sharing electronically with contractors, subs, decorators, and more. This package includes a license to build the home one time.

PDF Single Build $3,870
Most recommended package

5 Printed Sets


Five Printed Sets of Residential Construction Drawings are typically 24” x 36” documents and come with a license to construct a single residence shipped to a physical address. Keep in mind PDF Plan Packages are our most popular choice which allows you to print as many copies as you need and to electronically send files to your builder, subcontractors, etc.

5 Printed Sets $5,800
Five printed sets of house plans

CAD + PDF Single Build


CAD files are a complete set of construction drawings delivered electronically. They can be used for any type of modification—including major design changes and engineering—and include a release granting permission to modify the plan. Most CAD plan orders are emailed the same or next business day.
 
This package also comes with a PDF set of plans and a copyright release for making modifications and printing unlimited copies.
 
CAD files are provided in .dwg format. For details on the specific CAD program used, please refer to the PLAN DETAILS section located above the floor plan on each plan’s page.

CAD + PDF Single Build $5,800
2D electronic editable computer files
STEP 2 Need To Reverse This Plan?
STEP 3 CHOOSE YOUR FOUNDATION
STEP 4 OPTIONAL ADD-ONS
Subtotal:
$3870
FREE SHIPPING
 
Plan Details
See All Details
Finished Square Footage
4,278 Sq. Ft.
Main Level:
2,242 Sq. Ft.
Upper Level:
2,008 Sq. Ft.
Lower Level:
8,523 Sq. Ft.
Total:
Room Details
5
Bedrooms:
5
Full Baths:
General House Information
3
Number of Stories:
99' 0"
Width:
78' 0"
Depth:
Single
Dwelling Number:
Unfinished Square Footage
1228 Sq. Ft.
Garage:
949 Sq. Ft.
Storage:
58 Sq. Ft.
Porch:
265 Sq. Ft.
Deck:
1269 Sq. Ft.
Patio:
GARAGE
Front
Garage Location:
4
Garage Size:
Exterior Style
Traditional
Collections
Luxury
Old House Classics
Open Floor Plan
Outdoor Living
Foundation
Crawlspace
Slab
Framing Information
Stick
Roof Framing:
2x4
Exterior Wall Framing:
Insulation (R)
0
Exterior Wall:
0
Interior Wall:
0
Ceiling:
0
Floor:
House And Ceiling Heights
10
First Floor Ceiling:
9
Second Floor Ceiling:
43' 0"
Maximum House Height:
Key Features
2 Story Volume
Attached
Country Kitchen
Covered Front Porch
Covered Rear Porch
Dining Room
Double Vanity Sink
Drive-under
Family Room
Fireplace
Formal LR
Foyer
Front Porch
His and Hers Primary Closets
Home Office
Kitchen Island
Laundry 1st Fl
Library/Media Rm
Primary Bdrm Main Floor
Nook / Breakfast Area
Open Floor Plan
Rear Porch
Separate Tub and Shower
Side-entry
Slab
Vaulted Ceilings

Our Guarantees

  • Only the highest quality plans
  • Int’l Residential Code Compliant
  • Full structural details on all plans
  • Best plan price guarantee
  • Free modification Estimates
  • Builder-ready construction drawings
  • Expert advice from leading designers
  •  PDFs NOW!™ plans in minutes
  • 100% satisfaction guarantee
  • Free Home Building Organizer