15% off ALL House Plans Sitewide
15% off ALL House Plans Sitewide

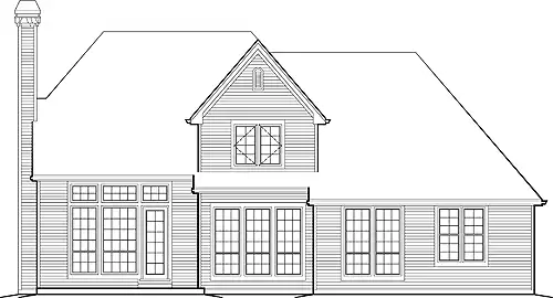
House Plan: DFD-5247

See All 9 Photos > (photographs may reflect modified homes)
© copyright by designer
SQ FT
2,277
BEDS
4
BATHS
2.5
STORIES
2
CARS
3
HOUSE PLANS SALE 
START AT  $1,479.00
For questions and help, live chat, email or call us at 877-895-5299
Floor Plans
Click to Zoom In on Floor Plan
 
House Plan 5247
House Plan Pricing
STEP 1 Select Your Package

PDF Single Build


Digital plans emailed to you in PDF format that allows for printing copies and sharing electronically with contractors, subs, decorators, and more. This package includes a license to build the home one time.

PDF Single Build $1,740
Most recommended package

5 Printed Sets + PDF


Includes 5 physical printed blueprint sets, shipped free via UPS within the U.S. Printed sets ship within 1 business day and are delivered within 3 – 5 business days. A complimentary PDF plan set is also emailed within 1 business day for easy sharing and local printing. These plans may be used to construct one home.

5 Printed Sets + PDF $2,065
5 Printed Sets + PDF

CAD + PDF Single Build


This plan package is created in AutoCAD and delivered in .DWG format. CAD files are intended for use by design professionals, structural engineers, and builders to update plans for local building codes or to make revisions based on specific needs, lot requirements, and budget considerations. A complimentary PDF copy is included with this package for reference. CAD packages are delivered within 1 to 2 business days.
 
This package also comes with a copyright release for making revisions and printing unlimited copies.

For details on the specific CAD program used, please refer to the PLAN DETAILS section located above the floor plan on each plan page.

CAD + PDF Single Build $3,480
2D electronic editable computer files
STEP 2 Need To Reverse This Plan?
STEP 3 CHOOSE YOUR FOUNDATION
STEP 4 OPTIONAL ADD-ONS
Subtotal:
$1740
FREE SHIPPING
 
Plan Details
See All Details
Finished Square Footage
1,563 Sq. Ft.
Main Level:
714 Sq. Ft.
Upper Level:
2,277 Sq. Ft.
Total:
Room Details
4
Bedrooms:
2
Full Baths:
1
Half Baths:
General House Information
2
Number of Stories:
54' 0"
Width:
47' 0"
Depth:
Single
Dwelling Number:
Unfinished Square Footage
676 Sq. Ft.
Garage:
142 Sq. Ft.
Bonus Room:
GARAGE
Front
Garage Location:
3
Garage Size:
Exterior Style
Cottage
Craftsman
Traditional
Collections
Affordable
Empty Nester
First Home
Old House Classics
Open Floor Plan
PDFs Fast!
Split Bedroom
Foundation
Basement
Crawlspace
Stem Wall Slab Foundation-Included
Framing Information
Truss
Roof Framing:
2x6
Exterior Wall Framing:
Roof Pitch
8/12
Primary:
14/12
Gable:
Roof Load
25#
Live:
15#
Dead:
0
Wind:
Insulation (R)
Per IRC Climate Zones
House And Ceiling Heights
varies
First Floor Ceiling:
8
Second Floor Ceiling:
26' 11"
Maximum House Height:
Key Features
Attached
Basement
Bonus Room
Bonus/Bedroom 4 - Upper Floor
Country Kitchen
Crawlspace
Den/bedroom on main
Double Vanity Sink
Fireplace
Foyer
Front Porch
Front-entry
Great Room
Home Office
Kitchen Island
Laundry 1st Fl
Primary Bdrm Main Floor
Open Floor Plan
Separate Tub and Shower
Slab
Split Bedrooms
Suited for narrow lot
Tandem
Tandem garage
Vaulted Ceilings
Walk-in Closet
Walk-in Pantry
Workshop

Our Guarantees

  • Only the highest quality plans
  • Int’l Residential Code Compliant
  • Full structural details on all plans
  • Best plan price guarantee
  • Free modification Estimates
  • Builder-ready construction drawings
  • Expert advice from leading designers
  •  PDFs NOW!™ plans in minutes
  • 100% satisfaction guarantee
  • Free Home Building Organizer