15% off ALL House Plans Sitewide
15% off ALL House Plans Sitewide

House Plan: DFD-5340

See All 2 Photos > (photographs may reflect modified homes)
© copyright by designer
SQ FT
1,562
BEDS
3
BATHS
2.5
STORIES
2
CARS
1
HOUSE PLANS SALE 
START AT  $2,057.85
For questions and help, live chat, email or call us at 877-895-5299
Floor Plans
Click to Zoom In on Floor Plan
 
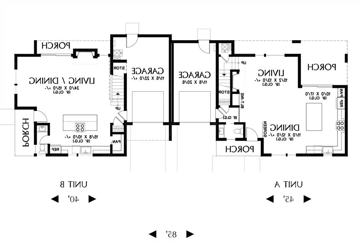
About House Plan 5340:
This moderately sized contemporary shed roof Duplex has uniquely laid out floor plans for both its A and B sides, both coming in right underneath 1600 square feet.

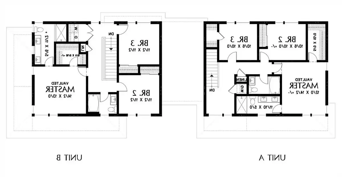
UNIT A (left) has a total heated square footage of 1,562 with the main level having 745 sq.ft. and the 2nd level having 817 sq.ft.

Guests will enter the home through the covered front porch directly into the open concept living spaces. The main level has a continuous 9’ ceiling except the small 8’ ceiling that leads to the powder room and the small storage closet / entry through the 1 car garage. The kitchen has an island and a small pantry. The dining has natural light from the front windows while the living area has access to the covered patio through the sliding glass doors as well as a gas fireplace and built-in shelving

Upstairs you’ll find the home’s laundry room and all 3 bedrooms. The 2 secondary bedrooms share a hallway bathroom with a large shower/tub combo. The vaulted master has additional windows as well as an ensuite shower bath with dual vanities and a walk-in closet.

UNIT B (right) has a total heated square footage of 1545 with the main level having 687 sq.ft. and the 2nd level having 858 sq.ft.

Guests enter the home through the covered front porch into the open concept living spaces. The kitchen has an island and a 6’ x 6’ walk-in pantry. The back of the dining and living area have a gas fireplace as well as sliding glass doors that provide access to the covered patio.

Upstairs has the laundry room, all 3 bedrooms with the two secondary bedrooms sharing a hallway bathroom with a large shower/tub combo. The master bedroom is vaulted and has a lot of natural light with the corner windows. Its ensuite bathroom has a shower and there’s a large walk-in closet for additional storage.
House Plan Pricing
STEP 1 Select Your Package

PDF Single Build


Digital plans emailed to you in PDF format that allows for printing copies and sharing electronically with contractors, subs, decorators, and more. This package includes a license to build the home one time.

PDF Single Build $2,421
Most recommended package

5 Printed Sets + PDF


Includes 5 physical printed blueprint sets, shipped free via UPS within the U.S. Printed sets ship within 1 business day and are delivered within 3 – 5 business days. A complimentary PDF plan set is also emailed within 1 business day for easy sharing and local printing. These plans may be used to construct one home.

5 Printed Sets + PDF $2,746
5 Printed Sets + PDF

CAD + PDF Single Build


This plan package is created in AutoCAD and delivered in .DWG format. CAD files are intended for use by design professionals, structural engineers, and builders to update plans for local building codes or to make revisions based on specific needs, lot requirements, and budget considerations. A complimentary PDF copy is included with this package for reference. CAD packages are delivered within 1 to 2 business days.
 
This package also comes with a copyright release for making revisions and printing unlimited copies.

For details on the specific CAD program used, please refer to the PLAN DETAILS section located above the floor plan on each plan page.

CAD + PDF Single Build $4,842
2D electronic editable computer files
STEP 2 Need To Reverse This Plan?
STEP 3 CHOOSE YOUR FOUNDATION
STEP 4 OPTIONAL ADD-ONS
Subtotal:
$2421
FREE SHIPPING
 
Plan Details
See All Details
Finished Square Footage
1,432 Sq. Ft.
Main Level:
1,668 Sq. Ft.
Upper Level:
1,562 Sq. Ft.
Total:
Room Details
3
Bedrooms:
2
Full Baths:
1
Half Baths:
General House Information
2
Number of Stories:
85' 0"
Width:
31' 0"
Depth:
Duplex
Dwelling Number:
Unfinished Square Footage
534 Sq. Ft.
Garage:
GARAGE
Front
Garage Location:
1
Garage Size:
Exterior Style
Contemporary
Modern
Collections
Builders
Open Floor Plan
Foundation
Basement
Crawlspace
Stem Wall Slab Foundation-Included
Framing Information
Stick
Roof Framing:
2x6
Exterior Wall Framing:
Roof Pitch
2/12
Primary:
Roof Load
25
Live:
15
Dead:
Insulation (R)
Per IRC Climate Zones
House And Ceiling Heights
9
First Floor Ceiling:
8
Second Floor Ceiling:
25' 0"
Maximum House Height:
Key Features
Attached
Basement
Covered Front Porch
Covered Rear Porch
Crawlspace
Double Vanity Sink
Fireplace
Front Porch
Front-entry
Kitchen Island
Laundry 2nd Fl
Loft / Balcony
Primary Bdrm Upstairs
Open Floor Plan
Rear Porch
Slab
Walk-in Closet

Our Guarantees

  • Only the highest quality plans
  • Int’l Residential Code Compliant
  • Full structural details on all plans
  • Best plan price guarantee
  • Free modification Estimates
  • Builder-ready construction drawings
  • Expert advice from leading designers
  •  PDFs NOW!™ plans in minutes
  • 100% satisfaction guarantee
  • Free Home Building Organizer