20% Off House Plans Sitewide Ends Sunday
20% Off House Plans Sitewide Ends Sunday

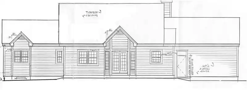
House Plan: DFD-5628

See All 4 Photos > (photographs may reflect modified homes)
© copyright by designer
SQ FT
1,331
BEDS
3
BATHS
2
STORIES
1
CARS
2
HOUSE PLANS SALE 
START AT  $600.00
For questions and help, live chat, email or call us at 877-895-5299
Floor Plans
Click to Zoom In on Floor Plan
 
House Plan 5628
House Plan Pricing
STEP 1 Select Your Package

4 Printed Sets


Four printed sets of construction drawings shipped and received in 3-5 business days

4 Printed Sets $750
Four printed sets of house plans

PDF Single Build


Digital plans emailed to you in PDF format that allows for printing copies and sharing electronically with contractors, subs, decorators, and more. This package includes a license to build the home one time.

PDF Single Build $765
Immediate Delivery!
Most recommended package

CAD + PDF Single Build


CAD files are a complete set of construction drawings delivered electronically. They can be used for any type of modification—including major design changes and engineering—and include a release granting permission to modify the plan. Most CAD plan orders are emailed the same or next business day.
 
This package also comes with a PDF set of plans and a copyright release for making modifications and printing unlimited copies.
 
CAD files are provided in .dwg format. For details on the specific CAD program used, please refer to the PLAN DETAILS section located above the floor plan on each plan’s page.

CAD + PDF Single Build $1,850
2D electronic editable computer files
STEP 2 CHOOSE YOUR FOUNDATION
STEP 3 OPTIONAL ADD-ONS
Subtotal:
$750
FREE SHIPPING
 
Plan Details
See All Details
Finished Square Footage
1,331 Sq. Ft.
Main Level:
1,331 Sq. Ft.
Total:
Room Details
3
Bedrooms:
2
Full Baths:
General House Information
1
Number of Stories:
73' 0"
Width:
37' 0"
Depth:
Single
Dwelling Number:
None
Bonus Access:
Unfinished Square Footage
GARAGE
Front
Garage Location:
2
Garage Size:
Exterior Style
Country
Farmhouse
Traditional
Collections
Old House Classics
Open Floor Plan
Foundation
Basement
Crawlspace
Slab
Framing Information
Stick
Roof Framing:
2x4 or 2x6
Exterior Wall Framing:
Roof Load
30
Live:
15
Dead:
100
Wind:
Insulation (R)
19
Exterior Wall:
0
Interior Wall:
38
Ceiling:
19
Floor:
Key Features
Attached
Basement
Crawlspace
Front Porch
Front-entry
Side-entry
Slab
Suited for corner lot

Our Guarantees

  • Only the highest quality plans
  • Int’l Residential Code Compliant
  • Full structural details on all plans
  • Best plan price guarantee
  • Free modification Estimates
  • Builder-ready construction drawings
  • Expert advice from leading designers
  •  PDFs NOW!™ plans in minutes
  • 100% satisfaction guarantee
  • Free Home Building Organizer