20% Off House Plans Sitewide Ends Sunday
20% Off House Plans Sitewide Ends Sunday

House Plan: DFD-5862

See All 2 Photos > (photographs may reflect modified homes)
© copyright by designer
SQ FT
1,002
BEDS
2
BATHS
2
STORIES
1
CARS
2
HOUSE PLANS SALE 
START AT  $960.00
For questions and help, live chat, email or call us at 877-895-5299
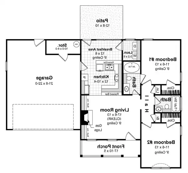
Floor Plans
Click to Zoom In on Floor Plan
 
House Plan 5862
House Plan Pricing
STEP 1 Select Your Package

Study Set - Printed


One printed set of house plans stamped NOT FOR CONSTRUCTION". This set is intended for review purposes and are mailed to you. To build from the plans, you need to upgrade to a licensed set.
Study Set - Printed $1,050
One Printed Set - Not for Construction

PDF Single Build


Digital plans emailed to you in PDF format that allows for printing copies and sharing electronically with contractors, subs, decorators, and more. This package includes a license to build the home one time.

PDF Single Build $1,200
Most recommended package

5 Printed Sets


Five Printed Sets of Residential Construction Drawings are typically 24” x 36” documents and come with a license to construct a single residence shipped to a physical address. Keep in mind PDF Plan Packages are our most popular choice which allows you to print as many copies as you need and to electronically send files to your builder, subcontractors, etc.

5 Printed Sets $1,300
Five printed sets of house plans

5 Printed Sets + PDF


Digital plan emailed to you in PDF format that allows for printing copies on a home printer or local print shop and sharing with contractors, subs, decorators, and more. PLUS five printed sets shipped and delivered 3-5 business days.

5 Printed Sets + PDF $1,500
Digital plans plus 5 printed sets

CAD + PDF Single Build


CAD files are a complete set of construction drawings delivered electronically. They can be used for any type of modification—including major design changes and engineering—and include a release granting permission to modify the plan. Most CAD plan orders are emailed the same or next business day.
 
This package also comes with a PDF set of plans and a copyright release for making modifications and printing unlimited copies.
 
CAD files are provided in .dwg format. For details on the specific CAD program used, please refer to the PLAN DETAILS section located above the floor plan on each plan’s page.

CAD + PDF Single Build $1,850
2D electronic editable computer files
STEP 2 Need To Reverse This Plan?
STEP 3 CHOOSE YOUR FOUNDATION
STEP 4 OPTIONAL ADD-ONS
Subtotal:
$1200
FREE SHIPPING
 
Plan Details
See All Details
Finished Square Footage
1,002 Sq. Ft.
Main Level:
1,002 Sq. Ft.
Total:
Room Details
2
Bedrooms:
2
Full Baths:
General House Information
1
Number of Stories:
52' 0"
Width:
38' 4"
Depth:
Single
Dwelling Number:
None
Bonus Access:
Unfinished Square Footage
546 Sq. Ft.
Garage:
48 Sq. Ft.
Storage:
89 Sq. Ft.
Porch:
GARAGE
Side
Garage Location:
2
Garage Size:
Exterior Style
Country
Traditional
Collections
Affordable
First Home
Old House Classics
Foundation
Crawl Space
Slab
Framing Information
Stick
Roof Framing:
2x4
Exterior Wall Framing:
Roof Pitch
6/12
Primary:
Roof Load
30
Live:
10
Dead:
Insulation (R)
15
Exterior Wall:
0
Interior Wall:
38
Ceiling:
19
Floor:
House And Ceiling Heights
9
First Floor Ceiling:
18' 2"
Maximum House Height:
Key Features
Attached
Country Kitchen
Covered Front Porch
Crawlspace
Exercise Room
Family Room
Fireplace
Front Porch
Front-entry
Great Room
Kitchen Island
Laundry 1st Fl
Primary Bdrm Main Floor
Nook / Breakfast Area
Oversized
Peninsula / Eating Bar
Slab
Storage Space
Suited for corner lot
Suited for narrow lot
Suited for sloping lot
Suited for view lot
Workshop

Our Guarantees

  • Only the highest quality plans
  • Int’l Residential Code Compliant
  • Full structural details on all plans
  • Best plan price guarantee
  • Free modification Estimates
  • Builder-ready construction drawings
  • Expert advice from leading designers
  •  PDFs NOW!™ plans in minutes
  • 100% satisfaction guarantee
  • Free Home Building Organizer