20% off ALL House Plans Sitewide
20% off ALL House Plans Sitewide

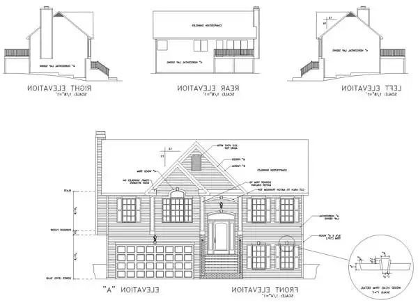
House Plan: DFD-6269

See All 2 Photos > (photographs may reflect modified homes)
© copyright by designer
SQ FT
999
BEDS
2
BATHS
2
STORIES
1.5
CARS
2
HOUSE PLANS SALE 
START AT  $836.00
For questions and help, live chat, email or call us at 877-895-5299
Floor Plans
Click to Zoom In on Floor Plan
 
About House Plan 6269:
This exceptional split-foyer home blends a rare mixture of luxury and economy. Careful design provides extravagant features while remaining a compact and economical 999 square feet.

The dramatic entry is brightened by the glass door with sidelights and an arched transom. A vaulted family room, dining room, and kitchen provide a feeling of spaciousness. The family room is accented with a fireplace, triple window unit, and a French door leading to the 17 x 11 deck. A breakfast bar and an abundance of cabinets are highlights of the corridor kitchen. The master suite has a walk-in closet and large bath with a 5' vanity and garden tub. A second bedroom and bath complete the main level.

On the lower level along with the garage are the laundry and a future studio. This 300 square foot expansion space may serve as a second master suite or apartment, and features a kitchenette.

House Plan Pricing
STEP 1 Select Your Package

PDF Bid Set


Home plans stamped "NOT FOR CONSTRUCTION" for cost estimating and bidding purposes only; a minimum 5 set plan package must be purchased within 90 days for a license to build plan set; a credit will be applied towards your house plan upgrade

PDF Bid Set $745
Immediate Delivery!
Digital set of plans for bidding purposes only

PDF Single Build


Digital plans emailed to you in PDF format that allows for printing copies and sharing electronically with contractors, subs, decorators, and more. This package includes a license to build the home one time.

PDF Single Build $1,045
Immediate Delivery!
Most recommended package

5 Printed Sets


Five Printed Sets of Residential Construction Drawings are typically 24” x 36” documents and come with a license to construct a single residence shipped to a physical address. Keep in mind PDF Plan Packages are our most popular choice which allows you to print as many copies as you need and to electronically send files to your builder, subcontractors, etc.

5 Printed Sets $1,045
Five printed sets of house plans

8 Printed Sets


Eight Printed Sets of Construction Drawings, typically 24” x 36” documents, with a license to construct a single residence shipped to your physical address. PDF Plan Packages are our most popular choice which allows you to print as many copies as you need and to electronically send files to your builder, subcontractors, bank/mortgage reps, material stores, decorators and more.

8 Printed Sets $1,195
Eight printed sets of house plans

CAD + PDF Single Build


CAD files are a complete set of construction drawings delivered electronically. They can be used for any type of modification—including major design changes and engineering—and include a release granting permission to modify the plan. Most CAD plan orders are emailed the same or next business day.
 
This package also comes with a PDF set of plans and a copyright release for making modifications and printing unlimited copies.
 
CAD files are provided in .dwg format. For details on the specific CAD program used, please refer to the PLAN DETAILS section located above the floor plan on each plan’s page.

CAD + PDF Single Build $1,495
2D electronic editable computer files
STEP 2 CHOOSE YOUR FOUNDATION
STEP 3 OPTIONAL ADD-ONS
Subtotal:
$1045
FREE SHIPPING
 
Plan Details
See All Details
Finished Square Footage
963 Sq. Ft.
Main Level:
36 Sq. Ft.
Lower Level:
999 Sq. Ft.
Total:
Room Details
2
Bedrooms:
2
Full Baths:
General House Information
1.5
Number of Stories:
40' 0"
Width:
23' 0"
Depth:
Single
Dwelling Number:
None
Bonus Access:
Unfinished Square Footage
300 Sq. Ft.
Bonus Room:
GARAGE
Front
Garage Location:
2
Garage Size:
Exterior Style
Country
Traditional
Collections
Empty Nester
First Home
Old House Classics
Open Floor Plan
Rectangular
Foundation
Slab Foundation
Framing Information
Truss
Roof Framing:
2x4
Exterior Wall Framing:
Roof Pitch
10/12
Primary:
Roof Load
30
Live:
90
Wind:
Insulation (R)
21
Exterior Wall:
0
Interior Wall:
38
Ceiling:
25
Floor:
House And Ceiling Heights
9
First Floor Ceiling:
8
Second Floor Ceiling:
28' 6"
Maximum House Height:
Key Features
Attached
Deck
Family Room
Front-entry
Primary Bdrm Upstairs
No Porch
Slab

Our Guarantees

  • Only the highest quality plans
  • Int’l Residential Code Compliant
  • Full structural details on all plans
  • Best plan price guarantee
  • Free modification Estimates
  • Builder-ready construction drawings
  • Expert advice from leading designers
  •  PDFs NOW!™ plans in minutes
  • 100% satisfaction guarantee
  • Free Home Building Organizer