House Plan: DFD-7300

See All 3 Photos > (photographs may reflect modified homes)
© copyright by designer
SQ FT
2,251
BEDS
3
BATHS
2.5
STORIES
1
CARS
3
PLANS FROM $2,185
For questions and help, live chat, email or call us at 877-895-5299
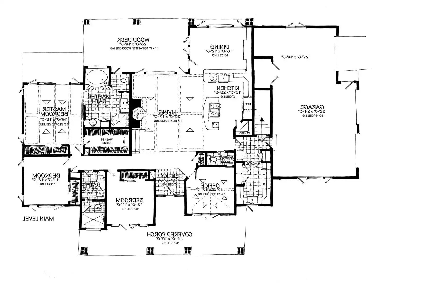
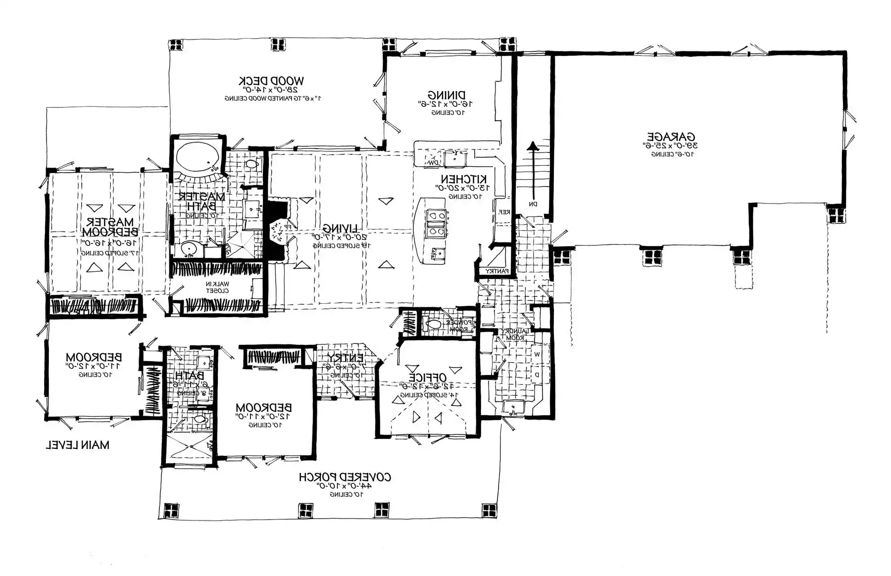
Floor Plans
Click to Zoom In on Floor Plan
 
About House Plan 7300:
Offering 2,251 square feet of heated space, this home includes 3 bedrooms and 2.5 baths with a layout designed for comfort and flexibility. The open floor plan allows the great room to flow seamlessly into the kitchen and dining areas, creating a welcoming environment for gatherings. The kitchen is thoughtfully arranged with an island, peninsula eating bar, and walk-in pantry to support both daily meals and entertaining. A fireplace anchors the great room, while generous ceiling heights add visual interest throughout the main level. The primary suite is positioned on the main floor and features a spacious walk-in closet along with a bath that includes a separate tub and shower. A dedicated home office and convenient first-floor laundry support modern living needs. With an oversized attached garage, a finished lower level for recreation, and covered outdoor spaces, this home delivers a balanced blend of comfort and versatility.
House Plan Pricing
STEP 1 Select Your Package

PDF Single Build


Digital plans emailed to you in PDF format that allows for printing copies and sharing electronically with contractors, subs, decorators, and more. This package includes a license to build the home one time.

PDF Single Build $2,185
Most recommended package

CAD + PDF Single Build


This plan package is created in AutoCAD and delivered in .DWG format. CAD files are intended for use by design professionals, structural engineers, and builders to update plans for local building codes or to make revisions based on specific needs, lot requirements, and budget considerations. A complimentary PDF copy is included with this package for reference. CAD packages are delivered within 1 to 2 business days.
 
This package also comes with a copyright release for making revisions and printing unlimited copies.

For details on the specific CAD program used, please refer to the PLAN DETAILS section located above the floor plan on each plan page.

CAD + PDF Single Build $2,385
2D electronic editable computer files
STEP 2 Need To Reverse This Plan?
STEP 3 CHOOSE YOUR FOUNDATION
STEP 4 OPTIONAL ADD-ONS
Subtotal:
$2185
FREE SHIPPING
 
Plan Details
See All Details
Finished Square Footage
2,251 Sq. Ft.
Main Level:
1,192 Sq. Ft.
Lower Level:
2,251 Sq. Ft.
Total:
Room Details
3
Bedrooms:
2
Full Baths:
1
Half Baths:
General House Information
1
Number of Stories:
86' 0"
Width:
54' 6"
Depth:
Single
Dwelling Number:
Unfinished Square Footage
856 Sq. Ft.
Garage:
319 Sq. Ft.
Porch:
382 Sq. Ft.
Patio:
GARAGE
Front
Garage Location:
3
Garage Size:
Exterior Style
Country
Farmhouse
Ranch
Southwest
Southwest
Traditional
Collections
Affordable
Builders
Kitchens
Open Floor Plan
Foundation
Basement Foundation
Crawl Space
Slab
Framing Information
Combination
Roof Framing:
2x6
Exterior Wall Framing:
Roof Pitch
10/12
Primary:
4/12
Secondary:
Insulation (R)
0
Exterior Wall:
0
Interior Wall:
0
Ceiling:
0
Floor:
House And Ceiling Heights
10
First Floor Ceiling:
24' 10"
Maximum House Height:
Key Features
Attached
Basement
Country Kitchen
Covered Front Porch
Covered Rear Porch
Dining Room
Double Vanity Sink
Exercise Room
Fireplace
Foyer
Front-entry
Great Room
Home Office
Kitchen Island
Laundry 1st Fl
L-Shaped
Primary Bdrm Main Floor
Mud Room
Open Floor Plan
Oversized
Peninsula / Eating Bar
Rec Room
Separate Tub and Shower
Slab
Suited for sloping lot
Suited for view lot
Walk-in Closet
Walk-in Pantry

Our Guarantees

  • Only the highest quality plans
  • Int’l Residential Code Compliant
  • Full structural details on all plans
  • Best plan price guarantee
  • Free modification Estimates
  • Builder-ready construction drawings
  • Expert advice from leading designers
  •  PDFs NOW!™ plans in minutes
  • 100% satisfaction guarantee
  • Free Home Building Organizer