20% Off House Plans Sitewide Ends Sunday
20% Off House Plans Sitewide Ends Sunday

House Plan: DFD-7528

See All 8 Photos > (photographs may reflect modified homes)
© copyright by designer
SQ FT
3,975
BEDS
5
BATHS
4
STORIES
3
CARS
2
HOUSE PLANS SALE 
START AT  $1,589.60
For questions and help, live chat, email or call us at 877-895-5299
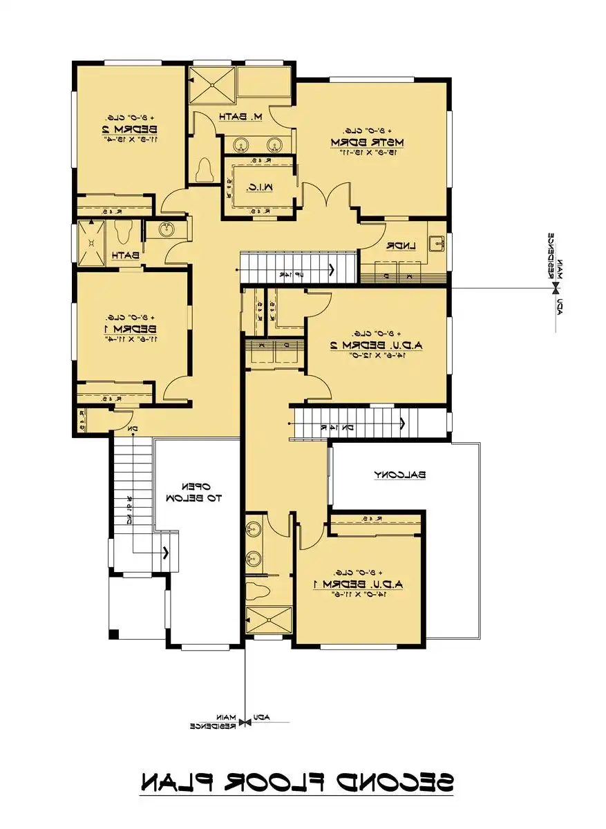
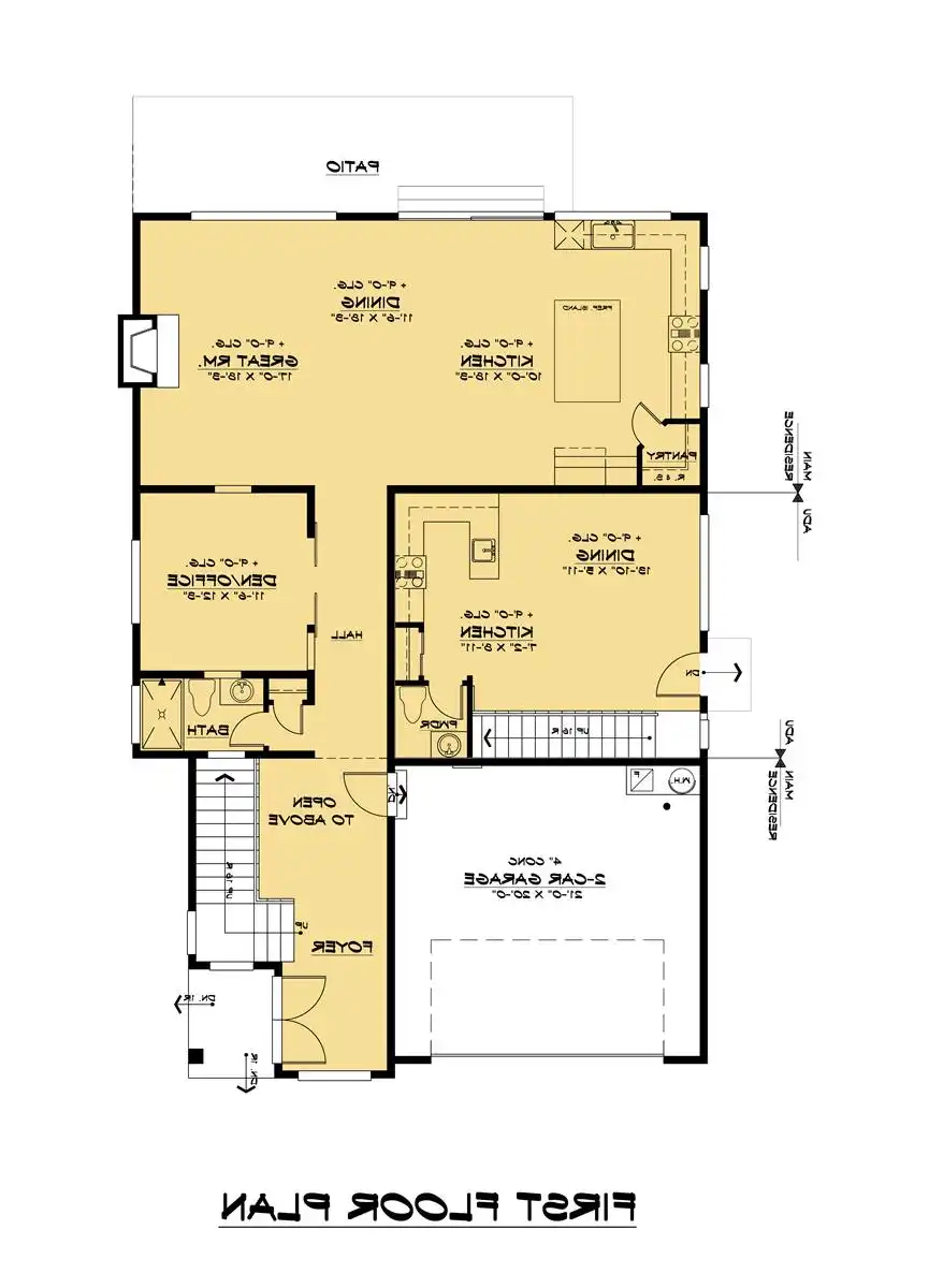
Floor Plans
Click to Zoom In on Floor Plan
 
About House Plan 7528:
An impressive home with the potential to earn some extra income, this 3,975 square foot, 2-story contemporary plan actually features a full apartment suite with 2 bedrooms! The rest of the home includes great things such as a totally open first floor with an impressive island kitchen, as well as a 2-car garage, den/office, and a walk-in pantry. Upstairs provides all of the bedrooms which includes the master and its dual-vanity en-suite and walk-in closet. Also take note of the auxiliary bedrooms which are large enough for kids of all ages. Finally, don't forget to check out the apartment suite which has two bedrooms, doubling your potential for rental income!
House Plan Pricing
STEP 1 Select Your Package

PDF Single Build


Digital plans emailed to you in PDF format that allows for printing copies and sharing electronically with contractors, subs, decorators, and more. This package includes a license to build the home one time.

PDF Single Build $1,987
Most recommended package

5 Printed Sets


Five Printed Sets of Residential Construction Drawings are typically 24” x 36” documents and come with a license to construct a single residence shipped to a physical address. Keep in mind PDF Plan Packages are our most popular choice which allows you to print as many copies as you need and to electronically send files to your builder, subcontractors, etc.

5 Printed Sets $2,287
Five printed sets of house plans

8 Printed Sets


Eight Printed Sets of Construction Drawings, typically 24” x 36” documents, with a license to construct a single residence shipped to your physical address. PDF Plan Packages are our most popular choice which allows you to print as many copies as you need and to electronically send files to your builder, subcontractors, bank/mortgage reps, material stores, decorators and more.

8 Printed Sets $2,437
Eight printed sets of house plans

CAD + PDF Single Build


CAD files are a complete set of construction drawings delivered electronically. They can be used for any type of modification—including major design changes and engineering—and include a release granting permission to modify the plan. Most CAD plan orders are emailed the same or next business day.
 
This package also comes with a PDF set of plans and a copyright release for making modifications and printing unlimited copies.
 
CAD files are provided in .dwg format. For details on the specific CAD program used, please refer to the PLAN DETAILS section located above the floor plan on each plan’s page.

CAD + PDF Single Build $3,776
2D electronic editable computer files
STEP 2 Need To Reverse This Plan?
STEP 3 CHOOSE YOUR FOUNDATION
STEP 4 OPTIONAL ADD-ONS
Subtotal:
$1987
FREE SHIPPING
 
Plan Details
See All Details
Finished Square Footage
1,722 Sq. Ft.
Main Level:
1,788 Sq. Ft.
Upper Level:
819 Sq. Ft.
Third Level:
3,975 Sq. Ft.
Total:
Room Details
5
Bedrooms:
4
Full Baths:
General House Information
3
Number of Stories:
40' 6"
Width:
59' 6"
Depth:
Single
Dwelling Number:
Unfinished Square Footage
420 Sq. Ft.
Garage:
38 Sq. Ft.
Porch:
178 Sq. Ft.
Deck:
GARAGE
Front
Garage Location:
2
Garage Size:
Exterior Style
Contemporary
Modern
Collections
In-Law Suite
Kitchens
Open Floor Plan
Outdoor Living
Split Bedroom
Foundation
Crawlspace
Slab
Framing Information
2x6
Exterior Wall Framing:
Roof Pitch
.25/12
Primary:
Roof Load
25 PSF
Live:
Insulation (R)
21
Exterior Wall:
House And Ceiling Heights
9
First Floor Ceiling:
8
Second Floor Ceiling:
28' 10"
Maximum House Height:
Key Features
2 Story Volume
Attached
Covered Rear Porch
Dining Room
Family Style
Fireplace
Foyer
Front-entry
Great Room
Home Office
In-law Suite
Kitchen Island
Laundry 2nd Fl
Loft / Balcony
L-Shaped
Primary Bdrm Upstairs
Open Floor Plan
Outdoor Living Space
Pantry
Separate Tub and Shower
Suited for narrow lot
U-Shaped
Walk-in Closet
Walk-in Pantry

Our Guarantees

  • Only the highest quality plans
  • Int’l Residential Code Compliant
  • Full structural details on all plans
  • Best plan price guarantee
  • Free modification Estimates
  • Builder-ready construction drawings
  • Expert advice from leading designers
  •  PDFs NOW!™ plans in minutes
  • 100% satisfaction guarantee
  • Free Home Building Organizer