20% Off House Plans Sitewide Ends Sunday
20% Off House Plans Sitewide Ends Sunday

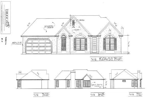
House Plan: DFD-7584

See All 2 Photos > (photographs may reflect modified homes)
© copyright by designer
SQ FT
1,304
BEDS
3
BATHS
2
STORIES
1
CARS
2
HOUSE PLANS SALE 
START AT  $1,036.00
For questions and help, live chat, email or call us at 877-895-5299
Floor Plans
Click to Zoom In on Floor Plan
 
About House Plan 7584:
This lovely "European" ranch plan is designed for maximum utilization of space. With an exterior of stucco, this traditional plan features many appointments found in larger custom homes. The corridor kitchen will delight gourmet and amateur chefs alike with its 10'x10' work area and pantry. Also measuring 10'x10', the breakfast room has an abundance of windows for maximum sunlight exposure. The washer and dryer are conveniently tucked in a laundry closet located off of the breakfast room. The spacious 17'x18' living room has a fireplace and door leading onto a patio. The master bedroom measures 12'x15' and has a large walk-in closet. The master bath has a double vanity and separate tub and shower. Measuring 11'x10' each, the two remaining bedrooms share a hall bath. Completing this plan is a spacious 20'x26' two-car garage.
House Plan Pricing
STEP 1 Select Your Package

PDF Bid Set


Home plans stamped "NOT FOR CONSTRUCTION" for cost estimating and bidding purposes only; a minimum 5 set plan package must be purchased within 90 days for a license to build plan set; a credit will be applied towards your house plan upgrade

PDF Bid Set $845
Immediate Delivery!
Digital set of plans for bidding purposes only

PDF Single Build


Digital plans emailed to you in PDF format that allows for printing copies and sharing electronically with contractors, subs, decorators, and more. This package includes a license to build the home one time.

PDF Single Build $1,295
Immediate Delivery!
Most recommended package

5 Printed Sets


Five Printed Sets of Residential Construction Drawings are typically 24” x 36” documents and come with a license to construct a single residence shipped to a physical address. Keep in mind PDF Plan Packages are our most popular choice which allows you to print as many copies as you need and to electronically send files to your builder, subcontractors, etc.

5 Printed Sets $1,345
Five printed sets of house plans

8 Printed Sets


Eight Printed Sets of Construction Drawings, typically 24” x 36” documents, with a license to construct a single residence shipped to your physical address. PDF Plan Packages are our most popular choice which allows you to print as many copies as you need and to electronically send files to your builder, subcontractors, bank/mortgage reps, material stores, decorators and more.

8 Printed Sets $1,395
Eight printed sets of house plans

CAD + PDF Single Build


CAD files are a complete set of construction drawings delivered electronically. They can be used for any type of modification—including major design changes and engineering—and include a release granting permission to modify the plan. Most CAD plan orders are emailed the same or next business day.
 
This package also comes with a PDF set of plans and a copyright release for making modifications and printing unlimited copies.
 
CAD files are provided in .dwg format. For details on the specific CAD program used, please refer to the PLAN DETAILS section located above the floor plan on each plan’s page.

CAD + PDF Single Build $1,795
2D electronic editable computer files
STEP 2 Need To Reverse This Plan?
STEP 3 CHOOSE YOUR FOUNDATION
STEP 4 OPTIONAL ADD-ONS
Subtotal:
$1295
FREE SHIPPING
 
Plan Details
See All Details
Finished Square Footage
1,304 Sq. Ft.
Total:
Room Details
3
Bedrooms:
2
Full Baths:
General House Information
1
Number of Stories:
61' 0"
Width:
38' 0"
Depth:
Single
Dwelling Number:
Unfinished Square Footage
GARAGE
Front
Garage Location:
2
Garage Size:
Exterior Style
Traditional
Collections
Old House Classics
Foundation
Optional Basement Foundation (Please allow 4-7 Days for Delivery)
Optional Crawlspace Foundation (Please allow 4-7 Days for Delivery)
Slab Foundation
Framing Information
Stick
Roof Framing:
2x4
Exterior Wall Framing:
Roof Pitch
7/12
Primary:
Roof Load
30
Live:
90
Wind:
Insulation (R)
21
Exterior Wall:
0
Interior Wall:
38
Ceiling:
25
Floor:
House And Ceiling Heights
8
First Floor Ceiling:
18' 0"
Maximum House Height:
Key Features
Attached
Basement
Crawlspace
Front-entry
No Porch
Slab

Our Guarantees

  • Only the highest quality plans
  • Int’l Residential Code Compliant
  • Full structural details on all plans
  • Best plan price guarantee
  • Free modification Estimates
  • Builder-ready construction drawings
  • Expert advice from leading designers
  •  PDFs NOW!™ plans in minutes
  • 100% satisfaction guarantee
  • Free Home Building Organizer

See terms opt out anytime