20% off ALL House Plans Sitewide
20% off ALL House Plans Sitewide

House Plan: DFD-7761

See All 2 Photos > (photographs may reflect modified homes)
© copyright by designer
SQ FT
2,560
BEDS
4
BATHS
3.5
STORIES
2.5
CARS
2
HOUSE PLANS SALE 
START AT  $1,000.00
For questions and help, live chat, email or call us at 877-895-5299
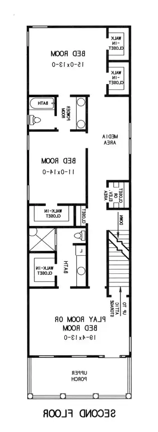
Floor Plans
Click to Zoom In on Floor Plan
 
House Plan 7761
House Plan Pricing
STEP 1 Select Your Package

PDF Single Build


Digital plans emailed to you in PDF format that allows for printing copies and sharing electronically with contractors, subs, decorators, and more. This package includes a license to build the home one time.

PDF Single Build $1,250
Most recommended package
STEP 2 Need To Reverse This Plan?
STEP 3 CHOOSE YOUR FOUNDATION
STEP 4 OPTIONAL ADD-ONS
Subtotal:
$1250
FREE SHIPPING
 
Plan Details
See All Details
Finished Square Footage
1,280 Sq. Ft.
Main Level:
1,280 Sq. Ft.
Upper Level:
2,560 Sq. Ft.
Total:
Room Details
4
Bedrooms:
3
Full Baths:
1
Half Baths:
General House Information
2.5
Number of Stories:
20' 0"
Width:
72' 0"
Depth:
Single
Dwelling Number:
2nd Floor
Bonus Access:
Unfinished Square Footage
470 Sq. Ft.
Garage:
360 Sq. Ft.
Porch:
256 Sq. Ft.
Bonus Room:
GARAGE
Under
Garage Location:
2
Garage Size:
Exterior Style
Country
Craftsman
Traditional
Collections
Architects Choice
Exclusive
Old House Classics
Open Floor Plan
Foundation
Basement
Framing Information
Stick
Roof Framing:
2x4
Exterior Wall Framing:
Roof Pitch
12/12
Primary:
2/12
Secondary:
Roof Load
20
Live:
10
Dead:
80
Wind:
Insulation (R)
17
Exterior Wall:
0
Interior Wall:
30
Ceiling:
13
Floor:
House And Ceiling Heights
9
First Floor Ceiling:
8
Second Floor Ceiling:
31' 4"
Maximum House Height:
Key Features
Attached
Basement
Bonus Room
Covered Front Porch
Drive-under
Front Porch
garden master bath
Great Room
Laundry 1st Fl
Primary Bdrm Main Floor
Open Floor Plan
Peninsula / Eating Bar
Suited for narrow lot
Suited for sloping lot
Unfinished Space
Walk-in Closet
Walk-in Pantry
Walkout Basement

Our Guarantees

  • Only the highest quality plans
  • Int’l Residential Code Compliant
  • Full structural details on all plans
  • Best plan price guarantee
  • Free modification Estimates
  • Builder-ready construction drawings
  • Expert advice from leading designers
  •  PDFs NOW!™ plans in minutes
  • 100% satisfaction guarantee
  • Free Home Building Organizer