House Plan: DFD-8381

See All 13 Photos > (photographs may reflect modified homes)
© copyright by designer
SQ FT
6,130
BEDS
5
BATHS
4.5
STORIES
2
CARS
4
PLANS FROM $3,595
For questions and help, live chat, email or call us at 877-895-5299
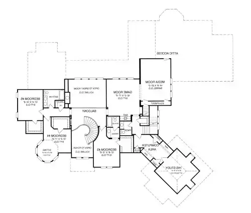
Floor Plans
Click to Zoom In on Floor Plan
 
House Plan 8381
House Plan Pricing
STEP 1 Select Your Package

PDF Bid Set


Home plans stamped "NOT FOR CONSTRUCTION" for cost estimating and bidding purposes only; a minimum 5 set plan package must be purchased within 90 days for a license to build plan set; a credit will be applied towards your house plan upgrade

PDF Bid Set $2,050
Digital set of plans for bidding purposes only

PDF Single Build


Digital plans emailed to you in PDF format that allows for printing copies and sharing electronically with contractors, subs, decorators, and more. This package includes a license to build the home one time.

PDF Single Build $3,595
Most recommended package

PDF + MOD License Single Build


Digital plans emailed to you in PDF format that allows for printing copies and sharing electronically with contractors, subs, decorators, and more. This package includes a modification license to build the home one time.
PDF + MOD License Single Build $4,100
PDF + MOD License Single Build

CAD + PDF Single Build


This plan package is created in AutoCAD and delivered in .DWG format. CAD files are intended for use by design professionals, structural engineers, and builders to update plans for local building codes or to make revisions based on specific needs, lot requirements, and budget considerations. A complimentary PDF copy is included with this package for reference. CAD packages are delivered within 1 to 2 business days.
 
This package also comes with a copyright release for making revisions and printing unlimited copies.

For details on the specific CAD program used, please refer to the PLAN DETAILS section located above the floor plan on each plan page.

CAD + PDF Single Build $6,250
2D electronic editable computer files
STEP 2 Need To Reverse This Plan?
STEP 3 CHOOSE YOUR FOUNDATION
STEP 4 OPTIONAL ADD-ONS
Subtotal:
$3595
FREE SHIPPING
 
Plan Details
See All Details
Finished Square Footage
3,623 Sq. Ft.
Main Level:
2,507 Sq. Ft.
Upper Level:
6,130 Sq. Ft.
Total:
Room Details
5
Bedrooms:
4
Full Baths:
2
Half Baths:
General House Information
2
Number of Stories:
105' 10"
Width:
96' 8"
Depth:
Single
Dwelling Number:
Unfinished Square Footage
1277 Sq. Ft.
Garage:
652 Sq. Ft.
Porch:
GARAGE
Rear
Garage Location:
4
Garage Size:
Exterior Style
Country
European
French Country
Collections
Kitchens
Luxury
Foundation
Basement
Crawl Space
Daylight Basement
Slab
Framing Information
Stick
Roof Framing:
2x4
Exterior Wall Framing:
Roof Pitch
10/12
Primary:
Insulation (R)
Per IRC Climate Zones
House And Ceiling Heights
10
First Floor Ceiling:
9
Second Floor Ceiling:
38' 0"
Maximum House Height:
Key Features
2 Story Volume
Arches
Attached
Attic Space
Basement
Brick/Stone Facade
Built-in Bookcases
Built-in Cabinets
Built-in Desk
Built-in Niches
Butler's Pantry
Columns - Outside
Computer Room
Crawlspace
Dining Room
Equipment Closet
Family Room
Fireplace
Formal Dining Room
Formal LR
Foyer
Front Porch
Garage Storage
Great Room
Guest Suite
Her Study
His Study
In-Law Suite
Kitchen - Snack Bar
Kitchen Island
Laundry 1st Fl
Laundry Chute
Library/Media Rm
Primary Bdrm Main Floor
Primary Bedroom - Sitting Room
Open Floor Plan
Outdoor Kitchen
Rear Porch
Side Porch
Side-entry
Slab
Split Bedrooms
Suited for corner lot
Walk Thru Shower
Walk-in Closet
Walk-in Pantry
Wet Bar
Windows - Expansive Rear View
Windows - Window Wall
Wine Storage

Our Guarantees

  • Only the highest quality plans
  • Int’l Residential Code Compliant
  • Full structural details on all plans
  • Best plan price guarantee
  • Free modification Estimates
  • Builder-ready construction drawings
  • Expert advice from leading designers
  •  PDFs NOW!™ plans in minutes
  • 100% satisfaction guarantee
  • Free Home Building Organizer

See terms opt out anytime