20% off ALL House Plans Sitewide
20% off ALL House Plans Sitewide

House Plan: DFD-8537

See All 2 Photos > (photographs may reflect modified homes)
© copyright by designer
SQ FT
1,986
BEDS
3
BATHS
2.5
STORIES
2
CARS
2
HOUSE PLANS SALE 
START AT  $1,271.20
For questions and help, live chat, email or call us at 877-895-5299
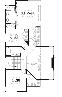
Floor Plans
Click to Zoom In on Floor Plan
 
House Plan 8537
House Plan Pricing
STEP 1 Select Your Package

PDF Single Build


Digital plans emailed to you in PDF format that allows for printing copies and sharing electronically with contractors, subs, decorators, and more. This package includes a license to build the home one time.

PDF Single Build $1,589
Most recommended package

5 Printed Sets + PDF


Digital plan emailed to you in PDF format that allows for printing copies on a home printer or local print shop and sharing with contractors, subs, decorators, and more. PLUS five printed sets shipped and delivered 3-5 business days.

5 Printed Sets + PDF $1,889
Digital plans plus 5 printed sets

CAD + PDF Single Build


CAD files are a complete set of construction drawings delivered electronically. They can be used for any type of modification—including major design changes and engineering—and include a release granting permission to modify the plan. Most CAD plan orders are emailed the same or next business day.
 
This package also comes with a PDF set of plans and a copyright release for making modifications and printing unlimited copies.
 
CAD files are provided in .dwg format. For details on the specific CAD program used, please refer to the PLAN DETAILS section located above the floor plan on each plan’s page.

CAD + PDF Single Build $3,178
2D electronic editable computer files
STEP 2 Need To Reverse This Plan?
STEP 3 CHOOSE YOUR FOUNDATION
STEP 4 OPTIONAL ADD-ONS
Subtotal:
$1589
FREE SHIPPING
 
Plan Details
See All Details
Finished Square Footage
1,083 Sq. Ft.
Main Level:
903 Sq. Ft.
Upper Level:
1,986 Sq. Ft.
Total:
Room Details
3
Bedrooms:
2
Full Baths:
1
Half Baths:
General House Information
2
Number of Stories:
29' 0"
Width:
55' 0"
Depth:
Single
Dwelling Number:
None
Bonus Access:
Unfinished Square Footage
440 Sq. Ft.
Garage:
GARAGE
Rear
Garage Location:
2
Garage Size:
Exterior Style
Beach
Contemporary
Modern
Collections
Old House Classics
Open Floor Plan
PDFs Fast!
Vacation
Foundation
Basement
Crawlspace
Stem Wall Slab Foundation-Included
Framing Information
Stick
Roof Framing:
2x6
Exterior Wall Framing:
Roof Pitch
3/12
Primary:
Roof Load
25
Live:
15
Dead:
0
Wind:
Insulation (R)
21
Exterior Wall:
0
Interior Wall:
38
Ceiling:
30
Floor:
House And Ceiling Heights
Varies
First Floor Ceiling:
Varies
Second Floor Ceiling:
24' 6"
Maximum House Height:
Key Features
Basement
Country Kitchen
Crawlspace
Detached
Double Vanity Sink
Fireplace
Foyer
Great Room
Home Office
Kitchen Island
Laundry 1st Fl
Primary Bdrm Upstairs
No Porch
Open Floor Plan
Slab
Suited for narrow lot
Vaulted Ceilings

Our Guarantees

  • Only the highest quality plans
  • Int’l Residential Code Compliant
  • Full structural details on all plans
  • Best plan price guarantee
  • Free modification Estimates
  • Builder-ready construction drawings
  • Expert advice from leading designers
  •  PDFs NOW!™ plans in minutes
  • 100% satisfaction guarantee
  • Free Home Building Organizer

See terms opt out anytime