15% off ALL House Plans Sitewide
15% off ALL House Plans Sitewide

House Plan: DFD-8544

See All 2 Photos > (photographs may reflect modified homes)
© copyright by designer
SQ FT
2,842
BEDS
3
BATHS
2
STORIES
1
CARS
2
HOUSE PLANS SALE 
START AT  $1,117.75
For questions and help, live chat, email or call us at 877-895-5299
Floor Plans
Click to Zoom In on Floor Plan
 
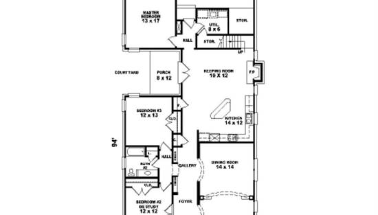
About House Plan 8544:
House Plan 8544 offers a classic Craftsman aesthetic paired with a highly functional interior layout. The open-concept main floor connects the great room, kitchen, and breakfast nook, making the home ideal for everyday living and entertaining. A main-floor primary bedroom provides privacy and comfort, while two additional bedrooms are positioned separately in a split-bedroom arrangement. The kitchen island enhances workflow and gathering space, complemented by nearby dining options. Unfinished areas allow homeowners to customize future spaces such as a recreation room, workshop, or exercise room. A rear-entry attached garage supports narrow lot construction while maintaining the home’s traditional Craftsman charm. This design blends architectural character with adaptable living options.
House Plan Pricing
STEP 1 Select Your Package

PDF Bid Set


Home plans stamped "NOT FOR CONSTRUCTION" for cost estimating and bidding purposes only; a minimum 5 set plan package must be purchased within 90 days for a license to build plan set; a credit will be applied towards your house plan upgrade

PDF Bid Set $690
Digital set of plans for bidding purposes only

5 Printed Sets


Includes 5 physical printed blueprint sets, shipped free via UPS within the U.S. Printed sets ship within 1 business day and are delivered within 3 – 5 business days. These plans may be used to construct one home.

5 Printed Sets $1,315
Five printed sets of house plans

PDF Single Build


Digital plans emailed to you in PDF format that allows for printing copies and sharing electronically with contractors, subs, decorators, and more. This package includes a license to build the home one time.

PDF Single Build $1,745
Most recommended package

CAD + PDF Single Build


This plan package is created in AutoCAD and delivered in .DWG format. CAD files are intended for use by design professionals, structural engineers, and builders to update plans for local building codes or to make revisions based on specific needs, lot requirements, and budget considerations. A complimentary PDF copy is included with this package for reference. CAD packages are delivered within 1 to 2 business days.
 
This package also comes with a copyright release for making revisions and printing unlimited copies.

For details on the specific CAD program used, please refer to the PLAN DETAILS section located above the floor plan on each plan page.

CAD + PDF Single Build $2,175
2D electronic editable computer files
STEP 2 Need To Reverse This Plan?
STEP 3 CHOOSE YOUR FOUNDATION
STEP 4 OPTIONAL ADD-ONS
Subtotal:
$1315
FREE SHIPPING
 
Plan Details
See All Details
Finished Square Footage
2,348 Sq. Ft.
Main Level:
494 Sq. Ft.
Upper Level:
2,842 Sq. Ft.
Total:
Room Details
3
Bedrooms:
2
Full Baths:
General House Information
1
Number of Stories:
37' 0"
Width:
94' 0"
Depth:
Single
Dwelling Number:
2nd Floor
Bonus Access:
Unfinished Square Footage
495 Sq. Ft.
Garage:
240 Sq. Ft.
Porch:
GARAGE
Rear
Garage Location:
2
Garage Size:
Exterior Style
Bungalow
Cottage
Craftsman
Traditional
Collections
Architects Choice
Exclusive
Primary Suites
Old House Classics
Split Bedroom
Foundation
Slab
Framing Information
Stick
Roof Framing:
2x4
Exterior Wall Framing:
Roof Pitch
8
Primary:
Insulation (R)
Per IRC Climate Zones
House And Ceiling Heights
10
First Floor Ceiling:
8
Second Floor Ceiling:
22' 0"
Maximum House Height:
Key Features
Attached
Courtyard
Covered Front Porch
Exercise Room
Fireplace
Front Porch
Great Room
Kitchen Island
Laundry 1st Fl
Primary Bdrm Main Floor
Nook / Breakfast Area
Rear-entry
Rec Room
Slab
Split Bedrooms
Suited for narrow lot
Unfinished Space
Walk-in Closet
Workshop

Our Guarantees

  • Only the highest quality plans
  • Int’l Residential Code Compliant
  • Full structural details on all plans
  • Best plan price guarantee
  • Free modification Estimates
  • Builder-ready construction drawings
  • Expert advice from leading designers
  •  PDFs NOW!™ plans in minutes
  • 100% satisfaction guarantee
  • Free Home Building Organizer