20% off ALL House Plans Sitewide
20% off ALL House Plans Sitewide

House Plan: DFD-8674

See All 3 Photos > (photographs may reflect modified homes)
© copyright by designer
SQ FT
2,766
BEDS
3
BATHS
2.5
STORIES
2
CARS
3
HOUSE PLANS SALE 
START AT  $1,220.00
For questions and help, live chat, email or call us at 877-895-5299
Floor Plans
Click to Zoom In on Floor Plan
 
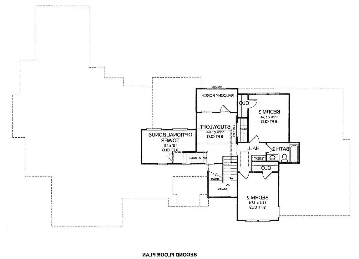
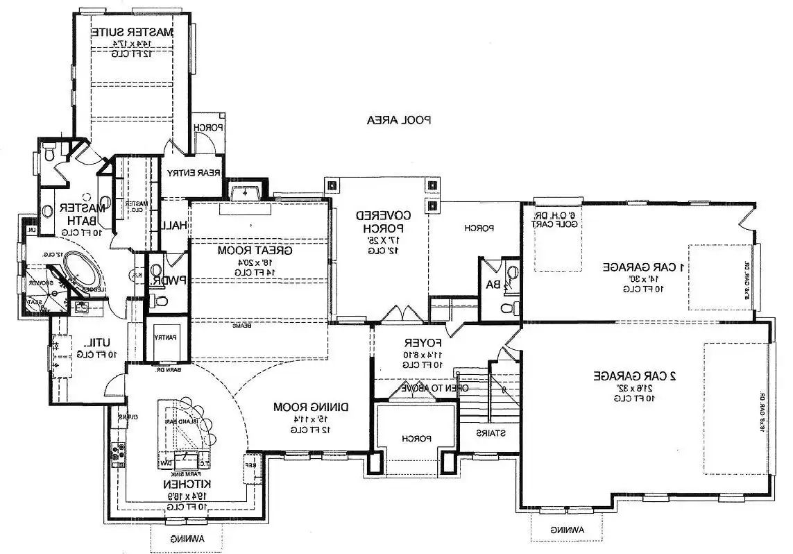
About House Plan 8674:
House Plan 8674 is an exceptionally unique design with great style and features included in its 2,766-square-foot layout. It offers three bedrooms across two stories, with two full bathrooms and two half bathrooms to serve the family and guests well. The main level places the three-car garage on one side of the foyer and the great room, kitchen, primary suite, and laundry room on the other. Make sure to look at the kitchen and the primary suite in particular to appreciate the luxury packed into them! One powder room is located inside while the other has outdoor access to serve the back porch. Upstairs, two bedrooms share a hall bath. There's also a study loft with a rear balcony and stairs up to the third level bonus! 
House Plan Pricing
STEP 1 Select Your Package

PDF Bid Set


Home plans stamped "NOT FOR CONSTRUCTION" for cost estimating and bidding purposes only; a minimum 5 set plan package must be purchased within 90 days for a license to build plan set; a credit will be applied towards your house plan upgrade

PDF Bid Set $1,150
Digital set of plans for bidding purposes only

PDF Single Build


Digital plans emailed to you in PDF format that allows for printing copies and sharing electronically with contractors, subs, decorators, and more. This package includes a license to build the home one time.

PDF Single Build $1,525
Most recommended package

Multi-Use PDF


Two Builds Only
Multi-Use PDF $1,995
Two Builds Only

CAD + PDF Single Build


CAD files are a complete set of construction drawings delivered electronically. They can be used for any type of modification—including major design changes and engineering—and include a release granting permission to modify the plan. Most CAD plan orders are emailed the same or next business day.
 
This package also comes with a PDF set of plans and a copyright release for making modifications and printing unlimited copies.
 
CAD files are provided in .dwg format. For details on the specific CAD program used, please refer to the PLAN DETAILS section located above the floor plan on each plan’s page.

CAD + PDF Single Build $2,995
2D electronic editable computer files
STEP 2 Need To Reverse This Plan?
STEP 3 CHOOSE YOUR FOUNDATION
STEP 4 OPTIONAL ADD-ONS
Subtotal:
$1525
FREE SHIPPING
 
Plan Details
See All Details
Finished Square Footage
2,088 Sq. Ft.
Main Level:
678 Sq. Ft.
Upper Level:
2,766 Sq. Ft.
Total:
Room Details
3
Bedrooms:
2
Full Baths:
2
Half Baths:
General House Information
2
Number of Stories:
96' 3"
Width:
62' 7"
Depth:
Single
Dwelling Number:
2nd Floor
Bonus Access:
Unfinished Square Footage
1141 Sq. Ft.
Garage:
514 Sq. Ft.
Porch:
155 Sq. Ft.
Bonus Room:
GARAGE
Side
Garage Location:
3
Garage Size:
Exterior Style
Contemporary
Country
Modern Farmhouse
Transitional
Collections
Kitchens
Primary Suites
Mountain
Open Floor Plan
OtherCustom
Outdoor Living
Split Bedroom
Foundation
Basement
Crawl Space
Daylight Basement
Slab
Framing Information
Stick
Roof Framing:
2x4
Exterior Wall Framing:
Roof Pitch
7/12
Primary:
4/12
Secondary:
Insulation (R)
House And Ceiling Heights
10
First Floor Ceiling:
9
Second Floor Ceiling:
30' 11"
Maximum House Height:
Key Features
Attached
Basement
Bonus Room
Country Kitchen
Covered Front Porch
Covered Rear Porch
Crawlspace
Dining Room
Double Vanity Sink
Fireplace
Foyer
Great Room
Home Office
Kitchen Island
Laundry 1st Fl
Loft / Balcony
Primary Bdrm Main Floor
Open Floor Plan
Separate Tub and Shower
Side-entry
Split Bedrooms
Suited for corner lot
Suited for view lot
U-Shaped
Vaulted Ceilings
Walk-in Closet
Walk-in Pantry

Our Guarantees

  • Only the highest quality plans
  • Int’l Residential Code Compliant
  • Full structural details on all plans
  • Best plan price guarantee
  • Free modification Estimates
  • Builder-ready construction drawings
  • Expert advice from leading designers
  •  PDFs NOW!™ plans in minutes
  • 100% satisfaction guarantee
  • Free Home Building Organizer