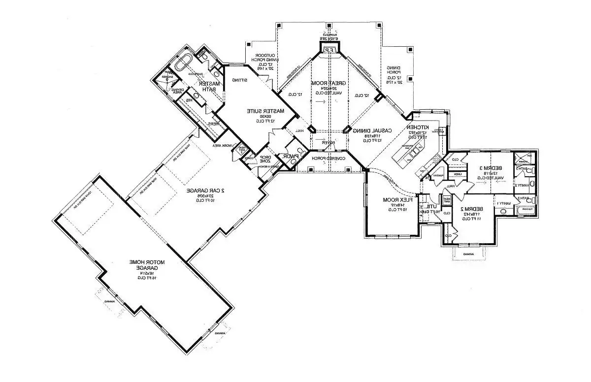
Check out House Plan 8690 if you're looking for a unique home with RV parking! This V-shaped Southwestern ranch offers 2,690 square feet with three bedrooms, three-and-a-half bathrooms, and a three-car garage with two single bays and an RV bay. The layout is designed around a corner great room with a centered fireplace. You'll find plenty of counterspace in the kitchen and room to dine and play in the dining and flex areas. The bedrooms are split on opposite sides of the house, with the luxurious primary suite near the garage while two smaller suites enjoy easy access to the laundry room.
Check out House Plan 8690 if you're looking for a unique home with RV parking! This V-shaped Southwestern ranch offers 2,690 square feet with three bedrooms, three-and-a-half bathrooms, and a three-car garage with two single bays and an RV bay. The layout is designed around a corner great room with a centered fireplace. You'll find plenty of counterspace in the kitchen and room to dine and play in the dining and flex areas. The bedrooms are split on opposite sides of the house, with the luxurious primary suite near the garage while two smaller suites enjoy easy access to the laundry room.