15% off ALL House Plans Sitewide
15% off ALL House Plans Sitewide

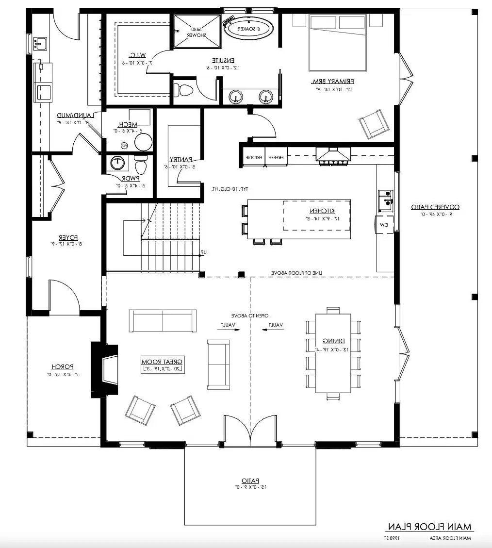
House Plan: DFD-9163

See All 8 Photos > (photographs may reflect modified homes)
© copyright by designer
SQ FT
2,790
BEDS
4
BATHS
2.5
STORIES
2
CARS
0
HOUSE PLANS SALE 
START AT  $1,185.75
For questions and help, live chat, email or call us at 877-895-5299
Floor Plans
Click to Zoom In on Floor Plan
 
About House Plan 9163:
Step into this Barndominium-inspired Modern Farmhouse, offering four bedrooms, three and a half bathrooms, and an expansive 2,790 square feet of living space that radiates warmth. At the core of this home is an airy open floor plan, connecting the dining and great room under a soaring 21'9" vaulted ceiling. Flooded with natural light, this area affords breathtaking views and an atmosphere of open, effortless living.

House Plan Pricing
STEP 1 Select Your Package

PDF Single Build


Digital plans emailed to you in PDF format that allows for printing copies and sharing electronically with contractors, subs, decorators, and more. This package includes a license to build the home one time.

PDF Single Build $1,395
Most recommended package

CAD + PDF Unlimited Build


This plan package is created in AutoCAD and delivered in .DWG format. CAD files are intended for use by design professionals, structural engineers, and builders to update plans for local building codes or to make revisions based on specific needs, lot requirements, and budget considerations. A complimentary PDF copy is included with this package for reference. CAD packages are delivered within 1 to 2 business days.
 
This package also comes with a multi-use building license, granting permission to construct the home an unlimited number of times, along with a copyright release for making revisions and printing unlimited copies.
 
For details on the specific CAD program used, please refer to the PLAN DETAILS section located above the floor plan on each plan page.

CAD + PDF Unlimited Build $2,395
2D electronic editable computer files
STEP 2 Need To Reverse This Plan?
STEP 3 CHOOSE YOUR FOUNDATION
STEP 4 OPTIONAL ADD-ONS
Subtotal:
$1395
FREE SHIPPING
 
Plan Details
See All Details
Finished Square Footage
1,998 Sq. Ft.
Main Level:
792 Sq. Ft.
Upper Level:
2,004 Sq. Ft.
Lower Level:
2,790 Sq. Ft.
Total:
Room Details
4
Bedrooms:
2
Full Baths:
1
Half Baths:
General House Information
2
Number of Stories:
51'
Width:
50'
Depth:
Single
Dwelling Number:
None
Bonus Access:
Unfinished Square Footage
119 Sq. Ft.
Front Porch:
441 Sq. Ft.
Deck:
GARAGE
0
Garage Size:
Exterior Style
Barndominium
Country
Farmhouse
Modern Farmhouse
Collections
Canada
Kitchens
Primary Suites
Open Floor Plan
Foundation
Basement
Crawl Space
Slab
Walkout Basement
Framing Information
Truss
Roof Framing:
2x6
Exterior Wall Framing:
Roof Pitch
12/12
Primary:
0/0
Secondary:
Insulation (R)
House And Ceiling Heights
10
First Floor Ceiling:
10
Second Floor Ceiling:
36'
Maximum House Height:
Key Features
Covered Rear Porch
Double Vanity Sink
Fireplace
Foyer
Front Porch
Kitchen Island
Laundry 1st Fl
L-Shaped
Primary Bdrm Main Floor
Mud Room
None
Open Floor Plan
Outdoor Living Space
Separate Tub and Shower
Sitting Area
Suited for narrow lot
Suited for view lot
Vaulted Ceilings
Vaulted Great Room/Living
Walk-in Closet
Walk-in Pantry

Our Guarantees

  • Only the highest quality plans
  • Int’l Residential Code Compliant
  • Full structural details on all plans
  • Best plan price guarantee
  • Free modification Estimates
  • Builder-ready construction drawings
  • Expert advice from leading designers
  •  PDFs NOW!™ plans in minutes
  • 100% satisfaction guarantee
  • Free Home Building Organizer