17% off ALL House Plans Sitewide
17% off ALL House Plans Sitewide

House Plan: DFD-9189

See All 2 Photos > (photographs may reflect modified homes)
© copyright by designer
SQ FT
1,617
BEDS
2
BATHS
2.5
STORIES
2
CARS
2
HOUSE PLANS SALE 
START AT  $2,407.00
For questions and help, live chat, email or call us at 877-895-5299
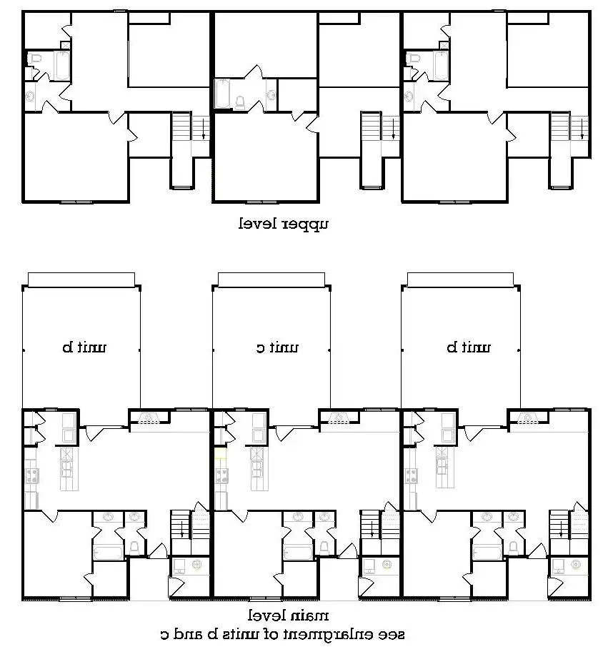
Floor Plans
Click to Zoom In on Floor Plan
 
About House Plan 9189:
Use this plan to create an entire apartment complex. Check out other plans in our "Briarcliff" apartment collection - click on "similar plans"

NOTE: APARTMENT PLANS DO NOT COME WITH A PRE-DRAWN FOUNDATION PLAN. A CUSTOM DRAWN FOUNDATION PLAN IS INCLUDED AT NO ADDITIONAL CHARGE. THE FOUNDATION PLAN WILL BE DRAWN ACCORDING TO THE SPECIFICATIONS PROVIDED BY THE PLAN PURCHASER. A CUSTOM DRAWN SITE PLAN IS ALSO INCLUDED. SOME LIMITATIONS APPLY.
House Plan Pricing
STEP 1 Select Your Package

PDF Bid Set


Home plans stamped "NOT FOR CONSTRUCTION" for cost estimating and bidding purposes only; a minimum 5 set plan package must be purchased within 90 days for a license to build plan set; a credit will be applied towards your house plan upgrade

PDF Bid Set $2,200
Immediate Delivery!
Digital set of plans for bidding purposes only

PDF Single Build


Digital plans emailed to you in PDF format that allows for printing copies and sharing electronically with contractors, subs, decorators, and more. This package includes a license to build the home one time.

PDF Single Build $2,900
Immediate Delivery!
Most recommended package

4 Printed Sets


Four printed sets of construction drawings shipped and received in 3-5 business days

4 Printed Sets $3,400
Four printed sets of house plans

5 Printed Sets


Five Printed Sets of Residential Construction Drawings are typically 24” x 36” documents and come with a license to construct a single residence shipped to a physical address. Keep in mind PDF Plan Packages are our most popular choice which allows you to print as many copies as you need and to electronically send files to your builder, subcontractors, etc.

5 Printed Sets $3,600
Five printed sets of house plans

8 Printed Sets


Eight Printed Sets of Construction Drawings, typically 24” x 36” documents, with a license to construct a single residence shipped to your physical address. PDF Plan Packages are our most popular choice which allows you to print as many copies as you need and to electronically send files to your builder, subcontractors, bank/mortgage reps, material stores, decorators and more.

8 Printed Sets $3,700
Eight printed sets of house plans
STEP 2 CHOOSE YOUR FOUNDATION
STEP 3 OPTIONAL ADD-ONS
Subtotal:
$2900
FREE SHIPPING
 
Plan Details
See All Details
Finished Square Footage
1,617 Sq. Ft.
Total:
Room Details
2
Bedrooms:
2
Full Baths:
1
Half Baths:
General House Information
2
Number of Stories:
96' 4"
Width:
53' 0"
Depth:
Multi-Family
Dwelling Number:
Unfinished Square Footage
GARAGE
Rear
Garage Location:
2
Garage Size:
Exterior Style
European
Traditional
Collections
Builders
Open Floor Plan
Split Bedroom
Foundation
Concrete Slab Foundation
Framing Information
Stick
Roof Framing:
2x4
Exterior Wall Framing:
Roof Pitch
10/12
Primary:
Insulation (R)
11
Exterior Wall:
0
Interior Wall:
19
Ceiling:
19
Floor:
House And Ceiling Heights
8
First Floor Ceiling:
8
Second Floor Ceiling:
24' 0"
Maximum House Height:
Facade
Brick
Stucco/Stone
Key Features
2 Story Volume
Covered Front Porch
Dining Room
Fireplace
Great Room
Laundry 1st Fl
Peninsula / Eating Bar
Slab
Storage Space
Unfinished Space
Walk-in Closet

Our Guarantees

  • Only the highest quality plans
  • Int’l Residential Code Compliant
  • Full structural details on all plans
  • Best plan price guarantee
  • Free modification Estimates
  • Builder-ready construction drawings
  • Expert advice from leading designers
  •  PDFs NOW!™ plans in minutes
  • 100% satisfaction guarantee
  • Free Home Building Organizer

See terms opt out anytime