20% Off House Plans Sitewide Ends Thursday
20% Off House Plans Sitewide Ends Thursday

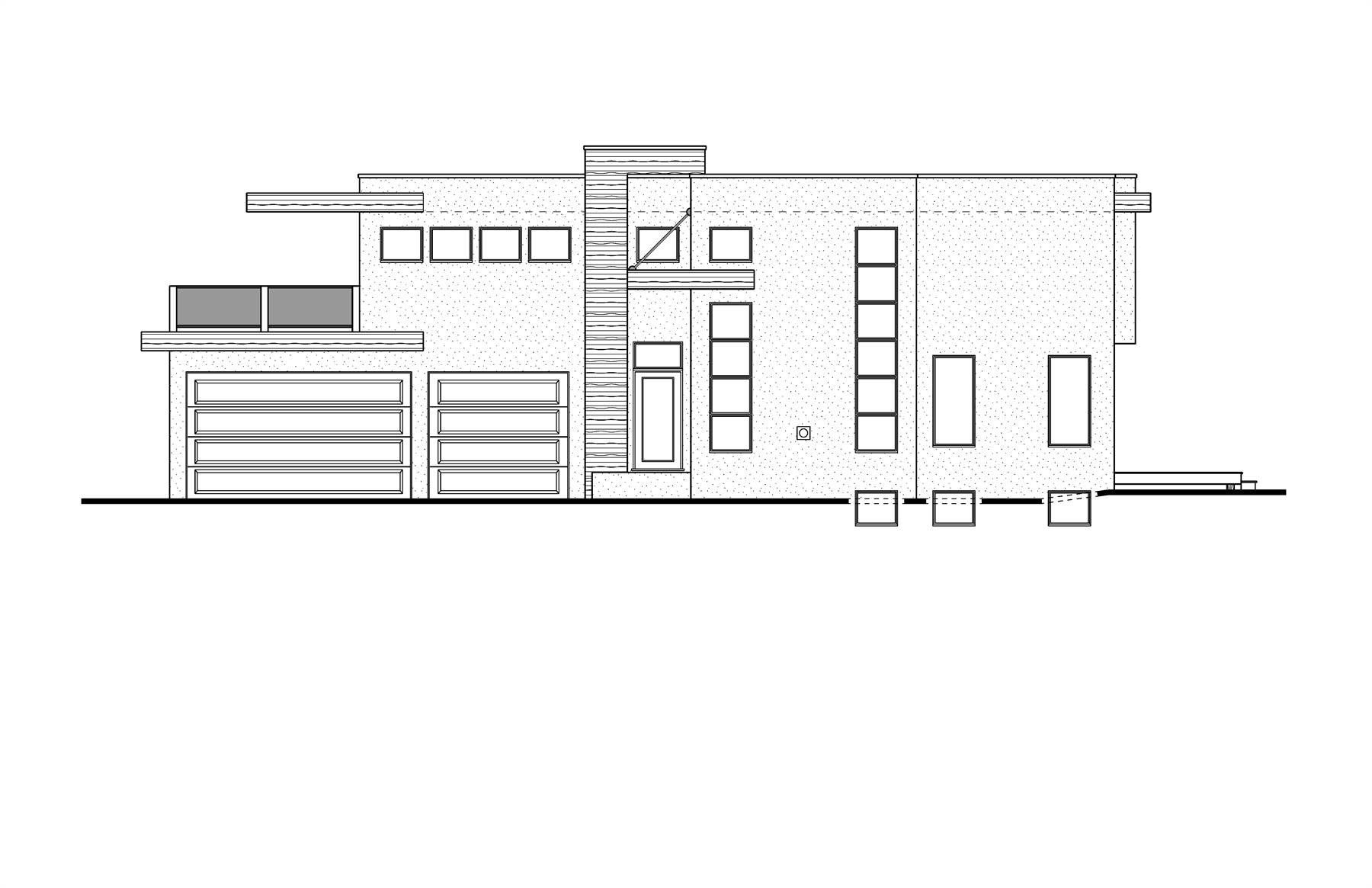
House Plan: DFD-9410

See All 6 Photos > (photographs may reflect modified homes)
© copyright by designer
SQ FT
2,593
BEDS
3
BATHS
2.5
STORIES
2
CARS
3
HOUSE PLANS SALE 
START AT  $1,360.00
For questions and help, live chat, email or call us at 877-895-5299
Floor Plans
Click to Zoom In on Floor Plan
 
About House Plan 9410:
House Plan 9410 is an amazing modern design with plenty to appreciate on two levels, but you can add even more with the basement foundation, if you want! You'll enjoy 2,593 square feet with three bedrooms and two-and-a-half bathrooms in the main design. The first floor offers two-story living space and an L-shaped island kitchen with the dining area in the corner in-between, ample deck space, the laundry, and a mudroom coming in from the three-car garage. Upstairs, the luxurious primary suite has a five-piece bath, a his-and-her closet, a two-sided fireplace, and a private above-garage patio. The other two bedrooms in back share a four-piece hall bath. The optional basement adds more sleeping and common space, including a wet bar, so it's perfect if you need more flexibility!
House Plan Pricing
STEP 1 Select Your Package

PDF Single Build


Digital plans emailed to you in PDF format that allows for printing copies and sharing electronically with contractors, subs, decorators, and more. This package includes a license to build the home one time.

PDF Single Build $1,700
Most recommended package

CAD + PDF Single Build


CAD files are a complete set of construction drawings delivered electronically. They can be used for any type of modification—including major design changes and engineering—and include a release granting permission to modify the plan. Most CAD plan orders are emailed the same or next business day.
 
This package also comes with a PDF set of plans and a copyright release for making modifications and printing unlimited copies.
 
CAD files are provided in .dwg format. For details on the specific CAD program used, please refer to the PLAN DETAILS section located above the floor plan on each plan’s page.

CAD + PDF Single Build $2,400
2D electronic editable computer files

CAD + PDF Unlimited Build


CAD files are a complete set of construction drawings delivered electronically. They can be used for any type of modification—including major design changes and engineering—and include a release granting permission to modify the plan. Most CAD plan orders are emailed the same or next business day.
 
This package also comes with a PDF set of plans and a multi-use building license, granting permission to construct the home an unlimited number of times, along with a copyright release for making modifications and printing unlimited copies.
 
CAD files are provided in .dwg format. For details on the specific CAD program used, please refer to the PLAN DETAILS section located above the floor plan on each plan’s page.

CAD + PDF Unlimited Build $2,900

States N/A: CADUNLIMITEDBUILD
2D electronic editable computer files
STEP 2 Need To Reverse This Plan?
STEP 3 CHOOSE YOUR FOUNDATION
STEP 4 OPTIONAL ADD-ONS
Subtotal:
$1700
FREE SHIPPING
 
Plan Details
See All Details
Finished Square Footage
1,276 Sq. Ft.
Main Level:
1,317 Sq. Ft.
Upper Level:
1,024 Sq. Ft.
Lower Level:
2,593 Sq. Ft.
Total:
Room Details
3
Bedrooms:
2
Full Baths:
1
Half Baths:
General House Information
2
Number of Stories:
49' 0"
Width:
77' 0"
Depth:
Single
Dwelling Number:
None
Bonus Access:
Unfinished Square Footage
683 Sq. Ft.
Garage:
255 Sq. Ft.
Front Porch:
273 Sq. Ft.
Deck:
GARAGE
Front
Garage Location:
3
Garage Size:
Exterior Style
Contemporary
Modern
Collections
Canada
Kitchens
Primary Suites
Open Floor Plan
Outdoor Living
Foundation
Basement
Crawl Space
Walkout Basement
Framing Information
Truss
Roof Framing:
2x6
Exterior Wall Framing:
Roof Pitch
Flat
Primary:
Roof Load
40
Live:
Insulation (R)
House And Ceiling Heights
9
First Floor Ceiling:
8
Second Floor Ceiling:
25' 0"
Maximum House Height:
Key Features
Attached
Courtyard/Motorcourt Entry
Covered Front Porch
Covered Rear Porch
Deck
Dining Room
Double Vanity Sink
Family Style
Fireplace
Formal LR
Foyer
Great Room
His and Hers Primary Closets
Kitchen Island
Laundry 1st Fl
L-Shaped
Primary Bdrm Upstairs
Mud Room
Open Floor Plan
Outdoor Living Space
Peninsula / Eating Bar
Rec Room
Separate Tub and Shower
Suited for view lot
Vaulted Ceilings
Walk-in Closet

Our Guarantees

  • Only the highest quality plans
  • Int’l Residential Code Compliant
  • Full structural details on all plans
  • Best plan price guarantee
  • Free modification Estimates
  • Builder-ready construction drawings
  • Expert advice from leading designers
  •  PDFs NOW!™ plans in minutes
  • 100% satisfaction guarantee
  • Free Home Building Organizer