15% off ALL House Plans Sitewide
15% off ALL House Plans Sitewide

House Plan: DFD-10272

See All 21 Photos > (photographs may reflect modified homes)
© copyright by designer
SQ FT
1,296
BEDS
3
BATHS
2
STORIES
1
CARS
2
HOUSE PLANS SALE 
START AT  $1,143.25
For questions and help, live chat, email or call us at 877-895-5299
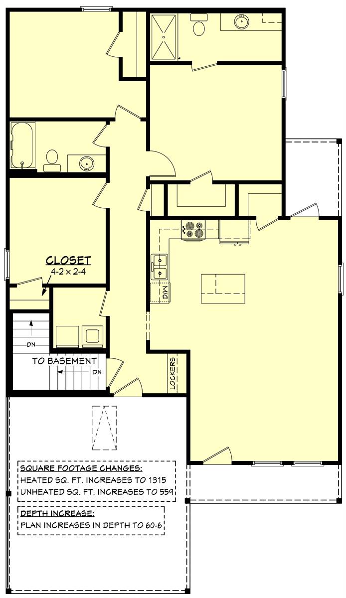
Floor Plans
Click to Zoom In on Floor Plan
 
About House Plan 10272:
Check out House Plan 10272 if you need an affordable ranch to make your own! With 1,296 square feet, three bedrooms, and two bathrooms, it checks the must-haves for most families. The layout places the open-concept living areas on one side, with the great room ahead of the island kitchen, on one side while the bedrooms are grouped in the hallway on the other. The primary suite has a private bath while the secondary bedrooms share a hall bath. A two-car carport in front rounds out the design!
House Plan Pricing
STEP 1 Select Your Package

PDF Single Build


Digital plans emailed to you in PDF format that allows for printing copies and sharing electronically with contractors, subs, decorators, and more. This package includes a license to build the home one time.

PDF Single Build $1,345
Most recommended package

5 Printed Sets + PDF


Includes 5 physical printed blueprint sets, shipped free via UPS within the U.S. Printed sets ship within 1 business day and are delivered within 3 – 5 business days. A complimentary PDF plan set is also emailed within 1 business day for easy sharing and local printing. These plans may be used to construct one home.

5 Printed Sets + PDF $1,595
5 Printed Sets + PDF

PDF Unlimited Build


Digital plans with an unlimited build license emailed in PDF format, that allows for printing copies on a home printer or local print shop and sharing with contractors, subs, decorators and more 

PDF Unlimited Build $2,045
Digital plans including unlimited build license

CAD + PDF Unlimited Build


This plan package is created in AutoCAD and delivered in .DWG format. CAD files are intended for use by design professionals, structural engineers, and builders to update plans for local building codes or to make revisions based on specific needs, lot requirements, and budget considerations. A complimentary PDF copy is included with this package for reference. CAD packages are delivered within 1 to 2 business days.
 
This package also comes with a multi-use building license, granting permission to construct the home an unlimited number of times, along with a copyright release for making revisions and printing unlimited copies.
 
For details on the specific CAD program used, please refer to the PLAN DETAILS section located above the floor plan on each plan page.

CAD + PDF Unlimited Build $2,445
2D electronic editable computer files
STEP 2 Need To Reverse This Plan?
STEP 3 CHOOSE YOUR FOUNDATION
STEP 4 OPTIONAL ADD-ONS
Subtotal:
$1345
FREE SHIPPING
 
Plan Details
See All Details
Finished Square Footage
1,296 Sq. Ft.
Main Level:
1,296 Sq. Ft.
Total:
Room Details
3
Bedrooms:
2
Full Baths:
General House Information
1
Number of Stories:
34'
Width:
56'
Depth:
Single
Dwelling Number:
None
Bonus Access:
Unfinished Square Footage
383 Sq. Ft.
Garage:
63 Sq. Ft.
Front Porch:
47 Sq. Ft.
Rear Porch:
GARAGE
Front
Garage Location:
2
Garage Size:
Exterior Style
Country
Ranch
Southern
Traditional
Collections
Affordable
Budget
Empty Nester
First Home
Open Floor Plan
Foundation
Basement
Crawl Space
Slab
Walkout Basement
Framing Information
Stick
Roof Framing:
2x4
Exterior Wall Framing:
Roof Pitch
6/12
Primary:
Roof Load
30 # PSF
Live:
10 # PSF
Dead:
Insulation (R)
House And Ceiling Heights
8
First Floor Ceiling:
18'
Maximum House Height:
Key Features
Carport
Covered Front Porch
Covered Rear Porch
Family Style
Front-entry
Great Room
Kitchen Island
Laundry 1st Fl
L-Shaped
Primary Bdrm Main Floor
Open Floor Plan
Suited for narrow lot
Walk-in Closet
Walk-in Pantry

Our Guarantees

  • Only the highest quality plans
  • Int’l Residential Code Compliant
  • Full structural details on all plans
  • Best plan price guarantee
  • Free modification Estimates
  • Builder-ready construction drawings
  • Expert advice from leading designers
  •  PDFs NOW!™ plans in minutes
  • 100% satisfaction guarantee
  • Free Home Building Organizer