20% Off House Plans Sitewide Ends Sunday
20% Off House Plans Sitewide Ends Sunday

House Plan: DFD-10503

See All 6 Photos > (photographs may reflect modified homes)
© copyright by designer
SQ FT
266
BEDS
0
BATHS
1
STORIES
1
CARS
0
PLANS FROM $460
For questions and help, live chat, email or call us at 877-895-5299
Floor Plans
Click to Zoom In on Floor Plan
 
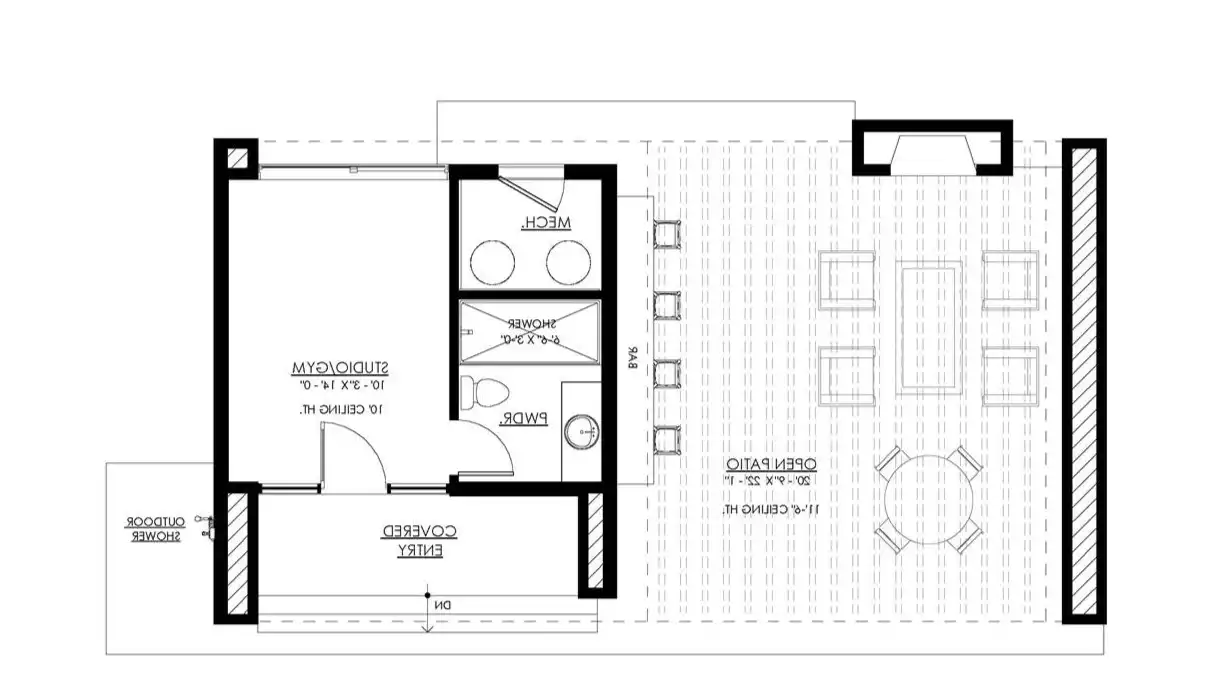
About House Plan 10503:
House Plan 10503 is a modern pool house designed for stylish outdoor living and flexible use. The covered patio includes a cozy fireplace and built-in bar—perfect for hosting gatherings or relaxing by the pool. Inside, the open layout can be used as a home office, studio, workout space, or even a private guest suite with room for a bed. A full bathroom adds extra convenience, making this sleek and versatile design a great addition to any home.
House Plan Pricing
STEP 1 Select Your Package

PDF Single Build


Digital plans emailed to you in PDF format that allows for printing copies and sharing electronically with contractors, subs, decorators, and more. This package includes a license to build the home one time.

PDF Single Build $575
Most recommended package
STEP 2 CHOOSE YOUR FOUNDATION
STEP 3 OPTIONAL ADD-ONS
Subtotal:
$575
FREE SHIPPING
 
Plan Details
See All Details
Finished Square Footage
266 Sq. Ft.
Main Level:
266 Sq. Ft.
Total:
Room Details
1
Full Baths:
General House Information
1
Number of Stories:
40' 2"
Width:
22' 6"
Depth:
Pool
Dwelling Number:
None
Bonus Access:
Unfinished Square Footage
83 Sq. Ft.
Front Porch:
453 Sq. Ft.
Deck:
GARAGE
0
Garage Size:
Exterior Style
Contemporary
Modern
Collections
Affordable
Budget
Canada
Home Addition
Luxury
Outdoor Living
Vacation
Foundation
Slab
Framing Information
Stick
Roof Framing:
2x6
Exterior Wall Framing:
Roof Pitch
Flat
Primary:
Insulation (R)
House And Ceiling Heights
10
First Floor Ceiling:
14' 0"
Maximum House Height:
Key Features
Covered Front Porch
Covered Rear Porch
Exercise Room
Open Floor Plan
Outdoor Living Space
Rec Room
Storage Space
Suited for corner lot
Suited for narrow lot

Our Guarantees

  • Only the highest quality plans
  • Int’l Residential Code Compliant
  • Full structural details on all plans
  • Best plan price guarantee
  • Free modification Estimates
  • Builder-ready construction drawings
  • Expert advice from leading designers
  •  PDFs NOW!™ plans in minutes
  • 100% satisfaction guarantee
  • Free Home Building Organizer