20% off ALL House Plans Sitewide
20% off ALL House Plans Sitewide
 Save   |  Cost-To-Build  |  Print  |  Modify Plan

House Plan: DFD-10507

See All 8 Photos > (photographs may reflect modified homes)
© copyright by designer
SQ FT
553
BEDS
1
BATHS
1
STORIES
2
CARS
2
HOUSE PLANS SALE 
START AT  $796.00
For questions and help, live chat, email or call us at 877-895-5299
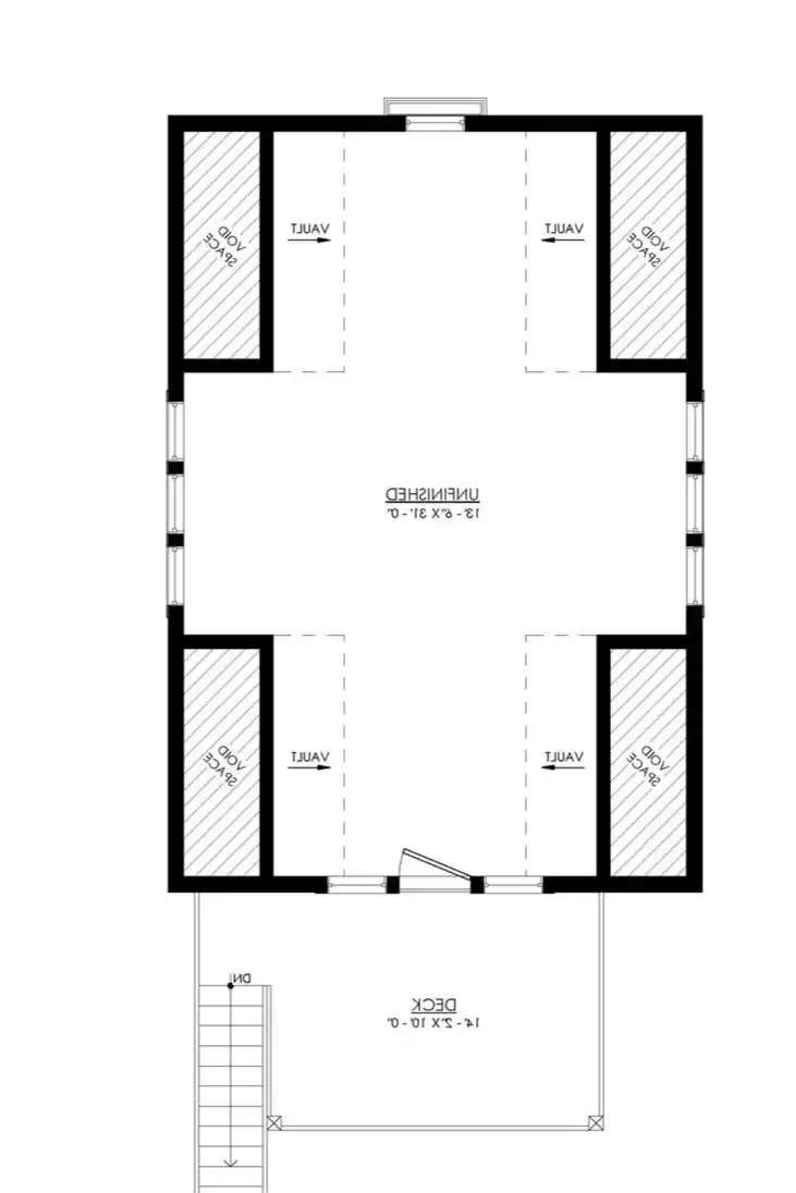
Floor Plans
Click to Zoom In on Floor Plan
 
About House Plan 10507:
If you need to add some flexibility to your property, House Plan 10507 could be the perfect fit! This cottage-style design offers a two-car garage on the first level and a 553-square-foot ADU with one bedroom and one bathroom above. The entries are on opposite sides, so you may not notice that this is a two-in-one plan! Make sure to look at the layout of the ADU--with its cozy living, eat-in kitchen, and bedroom with a built-in wardrobe, this design packs a ton of charm. 
House Plan Pricing
STEP 1 Select Your Package

PDF Single Build


Digital plans emailed to you in PDF format that allows for printing copies and sharing electronically with contractors, subs, decorators, and more. This package includes a license to build the home one time.

PDF Single Build $995
Most recommended package

CAD + PDF Unlimited Build


This plan package is created in AutoCAD and delivered in .DWG format. CAD files are intended for use by design professionals, structural engineers, and builders to update plans for local building codes or to make revisions based on specific needs, lot requirements, and budget considerations. A complimentary PDF copy is included with this package for reference. CAD packages are delivered within 1 to 2 business days.
 
This package also comes with a multi-use building license, granting permission to construct the home an unlimited number of times, along with a copyright release for making revisions and printing unlimited copies.
 
For details on the specific CAD program used, please refer to the PLAN DETAILS section located above the floor plan on each plan page.

CAD + PDF Unlimited Build $1,995
2D electronic editable computer files
STEP 2 Need To Reverse This Plan?
STEP 3 CHOOSE YOUR FOUNDATION
STEP 4 OPTIONAL ADD-ONS
Subtotal:
$995
FREE SHIPPING
 
Plan Details
See All Details
Finished Square Footage
704 Sq. Ft.
Main Level:
553 Sq. Ft.
Upper Level:
553 Sq. Ft.
Total:
Room Details
1
Bedrooms:
1
Full Baths:
General House Information
2
Number of Stories:
22' 0"
Width:
42' 0"
Depth:
Garage
Dwelling Number:
1st Floor
Bonus Access:
Unfinished Square Footage
704 Sq. Ft.
Garage:
170 Sq. Ft.
Front Porch:
152 Sq. Ft.
Deck:
GARAGE
Front
Garage Location:
2
Garage Size:
Exterior Style
Beach
Cape Cod
Cottage
Country
Lake
Collections
ADU
Affordable
Budget
Canada
Open Floor Plan
Foundation
Crawl Space
Slab
Framing Information
Truss
Roof Framing:
2x6
Exterior Wall Framing:
Roof Pitch
12/12
Primary:
4/12
Secondary:
Insulation (R)
House And Ceiling Heights
9
First Floor Ceiling:
8
Second Floor Ceiling:
24' 1"
Maximum House Height:
Key Features
Country Kitchen
Covered Front Porch
Front Porch
Front-entry
Great Room
Laundry 2nd Fl
L-Shaped
Primary Bdrm Upstairs
Open Floor Plan
Rear-entry
Suited for narrow lot
Vaulted Ceilings
With Living Space

Our Guarantees

  • Only the highest quality plans
  • Int’l Residential Code Compliant
  • Full structural details on all plans
  • Best plan price guarantee
  • Free modification Estimates
  • Builder-ready construction drawings
  • Expert advice from leading designers
  •  PDFs NOW!™ plans in minutes
  • 100% satisfaction guarantee
  • Free Home Building Organizer