20% Off House Plans Sitewide Ends Sunday
20% Off House Plans Sitewide Ends Sunday

House Plan: DFD-1131

See All 4 Photos > (photographs may reflect modified homes)
© copyright by designer
SQ FT
2,105
BEDS
3
BATHS
2.5
STORIES
1.5
CARS
2
HOUSE PLANS SALE 
START AT  $960.00
For questions and help, live chat, email or call us at 877-895-5299
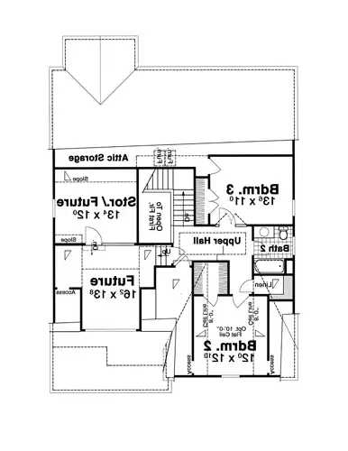
Floor Plans
Click to Zoom In on Floor Plan
 
About House Plan 1131:
Designed for a small lot, this master on the main plan leaves out nothing. Volume ceilings throughout the first floor make it difficult to believe there is a second floor. The dining room sores to 12' while opening to the 2nd floor balcony. The garage entry provides a drop station for books and coats before leading into the main rooms that span the full depth of the plan. While open each space is defined by a break in the ceiling creating division without blocking the line of site.
House Plan Pricing
STEP 1 Select Your Package

PDF Bid Set


Home plans stamped "NOT FOR CONSTRUCTION" for cost estimating and bidding purposes only; a minimum 5 set plan package must be purchased within 90 days for a license to build plan set; a credit will be applied towards your house plan upgrade

PDF Bid Set $750
Immediate Delivery!
Digital set of plans for bidding purposes only

PDF Single Build


Digital plans emailed to you in PDF format that allows for printing copies and sharing electronically with contractors, subs, decorators, and more. This package includes a license to build the home one time.

PDF Single Build $1,200
Immediate Delivery!
Most recommended package

5 Printed Sets


Five Printed Sets of Residential Construction Drawings are typically 24” x 36” documents and come with a license to construct a single residence shipped to a physical address. Keep in mind PDF Plan Packages are our most popular choice which allows you to print as many copies as you need and to electronically send files to your builder, subcontractors, etc.

5 Printed Sets $1,300
Five printed sets of house plans
STEP 2 CHOOSE YOUR FOUNDATION
STEP 3 OPTIONAL ADD-ONS
Subtotal:
$1200
FREE SHIPPING
 
Plan Details
See All Details
Finished Square Footage
1,537 Sq. Ft.
Main Level:
568 Sq. Ft.
Upper Level:
1,554 Sq. Ft.
Lower Level:
2,105 Sq. Ft.
Total:
Room Details
3
Bedrooms:
2
Full Baths:
1
Half Baths:
General House Information
1.5
Number of Stories:
39' 6"
Width:
67' 0"
Depth:
Single
Dwelling Number:
Unfinished Square Footage
100 Sq. Ft.
Porch:
153 Sq. Ft.
Patio:
377 Sq. Ft.
Bonus Room:
GARAGE
Front
Garage Location:
2
Garage Size:
Exterior Style
Bungalow
Cottage
Craftsman
Collections
Affordable
Architects Choice
Empty Nester
Kitchens
Old House Classics
Open Floor Plan
PDFs Fast!
Foundation
Slab
Framing Information
Stick
Roof Framing:
2x4
Exterior Wall Framing:
Roof Pitch
8/12
Primary:
14/12
Gable:
3/12
Dormer:
3/12
Porch:
Roof Load
20
Live:
10
Dead:
Insulation (R)
13
Exterior Wall:
0
Interior Wall:
30
Ceiling:
0
Floor:
House And Ceiling Heights
9
First Floor Ceiling:
8
Second Floor Ceiling:
23' 8"
Maximum House Height:
Key Features
Attached
Basement
Bonus Room
Covered Front Porch
Dining Room
Double Vanity Sink
Fireplace
Foyer
Front Porch
Front-entry
Great Room
His and Hers Primary Closets
Home Office
Kitchen Island
Laundry 1st Fl
Primary Bdrm Main Floor
Nook / Breakfast Area
Open Floor Plan
Separate Tub and Shower
Slab
Split Bedrooms
Storage Space
Suited for narrow lot
Unfinished Space
Vaulted Ceilings
Walk-in Closet

Our Guarantees

  • Only the highest quality plans
  • Int’l Residential Code Compliant
  • Full structural details on all plans
  • Best plan price guarantee
  • Free modification Estimates
  • Builder-ready construction drawings
  • Expert advice from leading designers
  •  PDFs NOW!™ plans in minutes
  • 100% satisfaction guarantee
  • Free Home Building Organizer

See terms opt out anytime