House Plan: DFD-11357

See All 2 Photos > (photographs may reflect modified homes)
© copyright by designer
SQ FT
2,794
BEDS
4
BATHS
2.5
STORIES
2
CARS
2
PLANS FROM $1,050
For questions and help, live chat, email or call us at 877-895-5299
Floor Plans
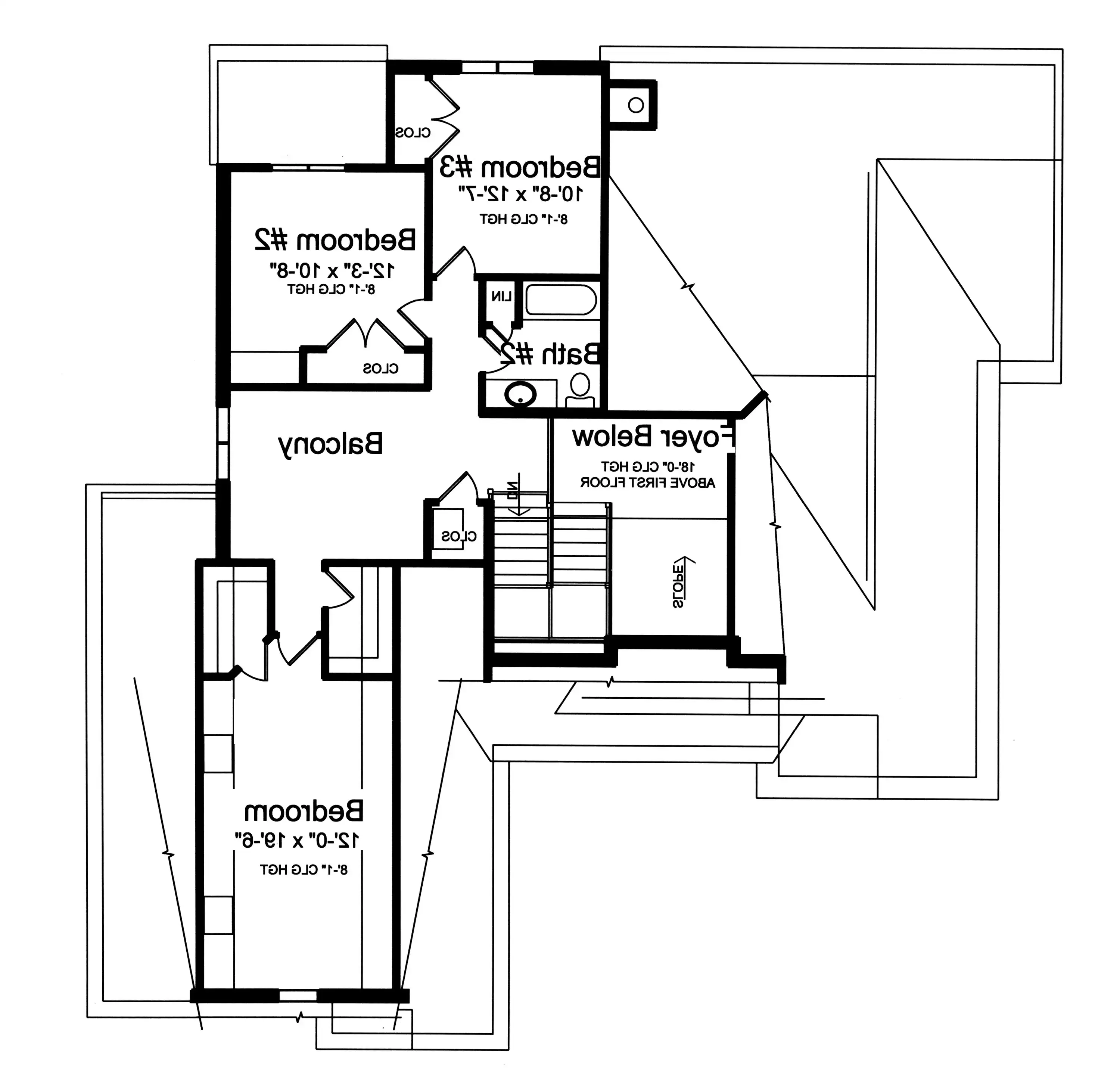
Click to Zoom In on Floor Plan
 
About House Plan 11357:
House Plan 11357 combines sophisticated design and modern livability in a spacious, light-filled layout. The entry foyer’s 18-foot ceiling creates a grand first impression, leading into an open-concept great room with 13’9” ceilings and a dining area with 10-foot ceilings. The kitchen’s large island anchors the main living space, providing a natural gathering spot for meals and conversation. The first-floor primary suite delivers a luxurious retreat with dual sinks, a freestanding tub, large shower, and expansive walk-in closet. A private study offers a quiet work-from-home option, while the upper level includes three bedrooms for family or guests. The full walk-out basement adds even more versatility, featuring a recreation room, wet bar, fifth bedroom, and full bath. With its covered porch, soaring interiors, and adaptable spaces, this plan perfectly balances elegance, comfort, and functionality.
House Plan Pricing
STEP 1 Select Your Package

PDF Bid Set


Home plans stamped "NOT FOR CONSTRUCTION" for cost estimating and bidding purposes only; a minimum 5 set plan package must be purchased within 90 days for a license to build plan set; a credit will be applied towards your house plan upgrade

PDF Bid Set $870
Digital set of plans for bidding purposes only

PDF Single Build


Digital plans emailed to you in PDF format that allows for printing copies and sharing electronically with contractors, subs, decorators, and more. This package includes a license to build the home one time.

PDF Single Build $1,050
Most recommended package

5 Printed Sets + PDF


Includes 5 physical printed blueprint sets, shipped free via UPS within the U.S. Printed sets ship within 1 business day and are delivered within 3 – 5 business days. A complimentary PDF plan set is also emailed within 1 business day for easy sharing and local printing. These plans may be used to construct one home.

5 Printed Sets + PDF $1,150
5 Printed Sets + PDF

8 Printed Sets + PDF


Includes 8 physical printed blueprint sets, shipped free via UPS within the U.S. Printed sets ship within 1 business day and are delivered within 3 – 5 business days. A complimentary PDF plan set is also emailed within 1 business day for easy sharing and local printing. These plans may be used to construct one home.

8 Printed Sets + PDF $1,180
8 Printed Sets + PDF

CAD + PDF Single Build


This plan package is created in AutoCAD and delivered in .DWG format. CAD files are intended for use by design professionals, structural engineers, and builders to update plans for local building codes or to make revisions based on specific needs, lot requirements, and budget considerations. A complimentary PDF copy is included with this package for reference. CAD packages are delivered within 1 to 2 business days.
 
This package also comes with a copyright release for making revisions and printing unlimited copies.

For details on the specific CAD program used, please refer to the PLAN DETAILS section located above the floor plan on each plan page.

CAD + PDF Single Build $1,825
2D electronic editable computer files
STEP 2 CHOOSE YOUR FOUNDATION
STEP 3 OPTIONAL ADD-ONS
Subtotal:
$1050
FREE SHIPPING
 
Plan Details
See All Details
Finished Square Footage
1,808 Sq. Ft.
Main Level:
986 Sq. Ft.
Upper Level:
2,794 Sq. Ft.
Total:
Room Details
4
Bedrooms:
2
Full Baths:
1
Half Baths:
General House Information
2
Number of Stories:
59' 3"
Width:
72' 9"
Depth:
Single
Dwelling Number:
2nd Floor
Bonus Access:
Unfinished Square Footage
720 Sq. Ft.
Garage:
1808 Sq. Ft.
Storage:
91 Sq. Ft.
Front Porch:
144 Sq. Ft.
Deck:
GARAGE
Front
Garage Location:
2
Garage Size:
Exterior Style
Cottage
Country
Ranch
Traditional
Collections
Open Floor Plan
Split Bedroom
Foundation
Basement Option
Framing Information
Truss
Roof Framing:
Roof Pitch
8:12
Primary:
12:12
Gable:
12:12
Dormer:
8:12
Porch:
Roof Load
30
Live:
17
Dead:
90
Wind:
Insulation (R)
Per IRC Climate Zones
House And Ceiling Heights
9
First Floor Ceiling:
8
Second Floor Ceiling:
28' 0"
Maximum House Height:
Key Features
Attached
Covered Front Porch
Covered Rear Porch
Deck
Dining Room
Double Vanity Sink
Fireplace
Foyer
Great Room
Home Office
Laundry 1st Fl
Primary Bdrm Main Floor
Mud Room
Open Floor Plan
Separate Tub and Shower
Side-entry
Split Bedrooms
Suited for corner lot
Suited for sloping lot
Vaulted Great Room/Living
Walk-in Closet

Our Guarantees

  • Only the highest quality plans
  • Int’l Residential Code Compliant
  • Full structural details on all plans
  • Best plan price guarantee
  • Free modification Estimates
  • Builder-ready construction drawings
  • Expert advice from leading designers
  •  PDFs NOW!™ plans in minutes
  • 100% satisfaction guarantee
  • Free Home Building Organizer