House Plan: DFD-11388

See All 2 Photos > (photographs may reflect modified homes)
© copyright by designer
SQ FT
1,502
BEDS
3
BATHS
2
STORIES
1
CARS
2
PLANS FROM $1,300
For questions and help, live chat, email or call us at 877-895-5299
 

HPG-1502N

 
Floor Plans
Click to Zoom In on Floor Plan
 
About House Plan 11388:
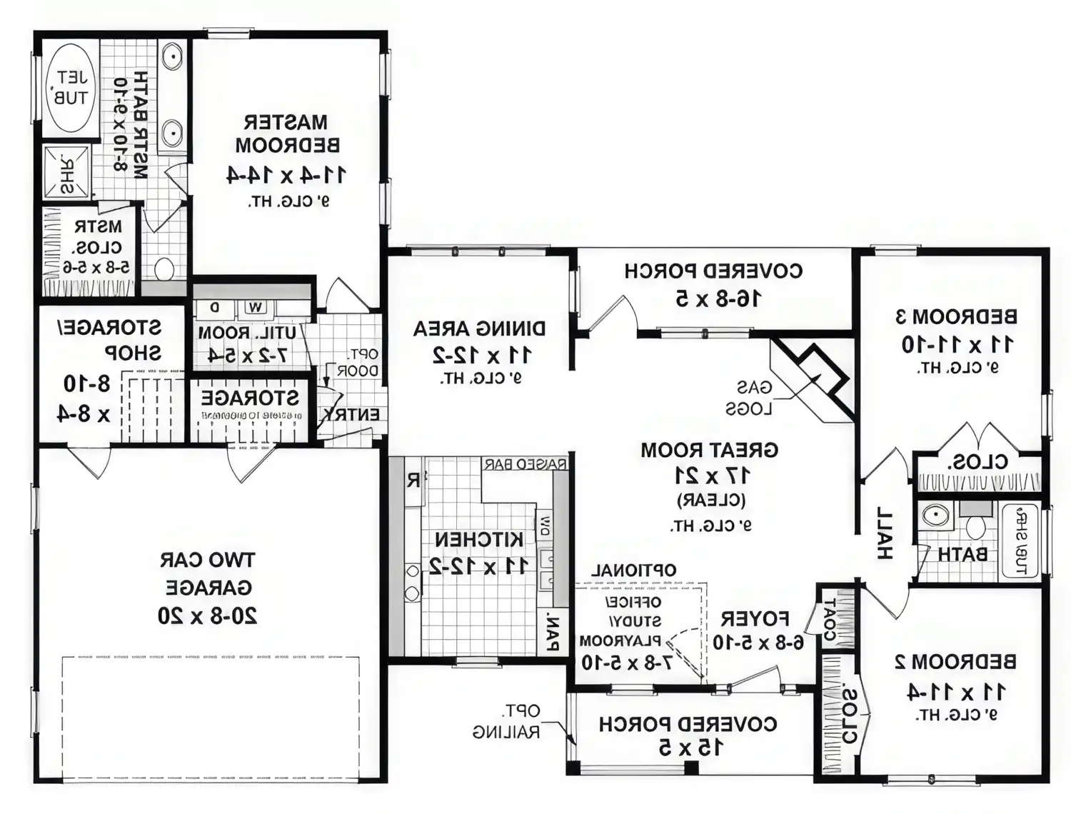
House Plan 11388, offers a perfect blend of classic design and modern livability in a single-story layout. The charming exterior combines stone, siding, and shake details with a welcoming covered porch. Inside, an open concept connects the great room, dining area, and kitchen, creating a bright and inviting living space enhanced by a gas-log fireplace and easy access to the rear covered porch. The kitchen includes a raised bar, pantry, and plenty of prep space, making it perfect for casual gatherings. The master suite offers a tranquil escape with a luxurious bath featuring a jet tub, separate shower, and spacious walk-in closet. Two additional bedrooms and a shared bath are thoughtfully placed on the opposite side of the home for privacy. With a flexible front room ideal for an office or playroom, plus a utility area, ample storage, and a two-car garage, this plan offers everything today’s homeowners need in a smart, stylish package.
House Plan Pricing
STEP 1 Select Your Package

Study Set - Printed


One printed set of house plans stamped NOT FOR CONSTRUCTION". This set is intended for review purposes and are mailed to you. To build from the plans, you need to upgrade to a licensed set.
Study Set - Printed $1,150
One Printed Set - Not for Construction

PDF Single Build


Digital plans emailed to you in PDF format that allows for printing copies and sharing electronically with contractors, subs, decorators, and more. This package includes a license to build the home one time.

PDF Single Build $1,300
Most recommended package

5 Printed Sets


Includes 5 physical printed blueprint sets, shipped free via UPS within the U.S. Printed sets ship within 1 business day and are delivered within 3 – 5 business days. These plans may be used to construct one home.

5 Printed Sets $1,400
Five printed sets of house plans

5 Printed Sets + PDF


Includes 5 physical printed blueprint sets, shipped free via UPS within the U.S. Printed sets ship within 1 business day and are delivered within 3 – 5 business days. A complimentary PDF plan set is also emailed within 1 business day for easy sharing and local printing. These plans may be used to construct one home.

5 Printed Sets + PDF $1,600
5 Printed Sets + PDF

CAD + PDF Single Build


This plan package is created in AutoCAD and delivered in .DWG format. CAD files are intended for use by design professionals, structural engineers, and builders to update plans for local building codes or to make revisions based on specific needs, lot requirements, and budget considerations. A complimentary PDF copy is included with this package for reference. CAD packages are delivered within 1 to 2 business days.
 
This package also comes with a copyright release for making revisions and printing unlimited copies.

For details on the specific CAD program used, please refer to the PLAN DETAILS section located above the floor plan on each plan page.

CAD + PDF Single Build $1,950
2D electronic editable computer files
STEP 2 Need To Reverse This Plan?
STEP 3 CHOOSE YOUR FOUNDATION
STEP 4 OPTIONAL ADD-ONS
Subtotal:
$1300
FREE SHIPPING
 
Plan Details
See All Details
Finished Square Footage
1,502 Sq. Ft.
Main Level:
1,613 Sq. Ft.
Lower Level:
1,502 Sq. Ft.
Total:
Room Details
3
Bedrooms:
2
Full Baths:
General House Information
1
Number of Stories:
61' 8"
Width:
45' 8"
Depth:
Single
Dwelling Number:
Unfinished Square Footage
431 Sq. Ft.
Garage:
110 Sq. Ft.
Storage:
75 Sq. Ft.
Front Porch:
83 Sq. Ft.
Rear Porch:
GARAGE
Front
Garage Location:
2
Garage Size:
Exterior Style
Cape Cod
Farmhouse
Ranch
Collections
Affordable
Budget
Builders
Empty Nester
First Home
Split Bedroom
Foundation
Basement
Crawl Space
Slab
Framing Information
Truss
Roof Framing:
2x6
Exterior Wall Framing:
Roof Pitch
8 in 12
Primary:
None
Secondary:
Roof Load
30
Live:
10
Dead:
40
Wind:
Insulation (R)
15
Exterior Wall:
38
Interior Wall:
19
Ceiling:
19
Floor:
House And Ceiling Heights
9
First Floor Ceiling:
22' 3"
Maximum House Height:
Key Features
Attached
Covered Front Porch
Covered Rear Porch
Dining Room
Double Vanity Sink
Exercise Room
Fireplace
Formal LR
Foyer
Great Room
Home Office
Laundry 1st Fl
Library/Media Rm
Primary Bdrm Main Floor
Oversized
Pantry
Separate Tub and Shower
Split Bedrooms
Storage Space
Suited for corner lot
Unfinished Space
Walk-in Closet
Workshop

Our Guarantees

  • Only the highest quality plans
  • Int’l Residential Code Compliant
  • Full structural details on all plans
  • Best plan price guarantee
  • Free modification Estimates
  • Builder-ready construction drawings
  • Expert advice from leading designers
  •  PDFs NOW!™ plans in minutes
  • 100% satisfaction guarantee
  • Free Home Building Organizer