House Plan: DFD-11430

See All 17 Photos > (photographs may reflect modified homes)
© copyright by designer
SQ FT
3,650
BEDS
4
BATHS
3.5
STORIES
2
CARS
3
PLANS FROM $1,950
For questions and help, live chat, email or call us at 877-895-5299
Floor Plans
Click to Zoom In on Floor Plan
 
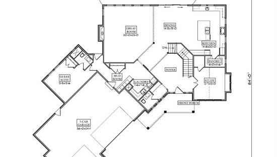
About House Plan 11430:
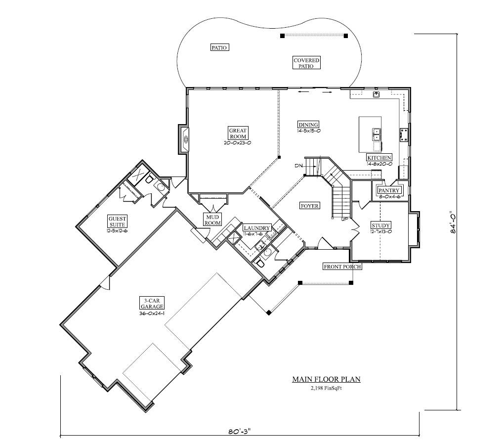
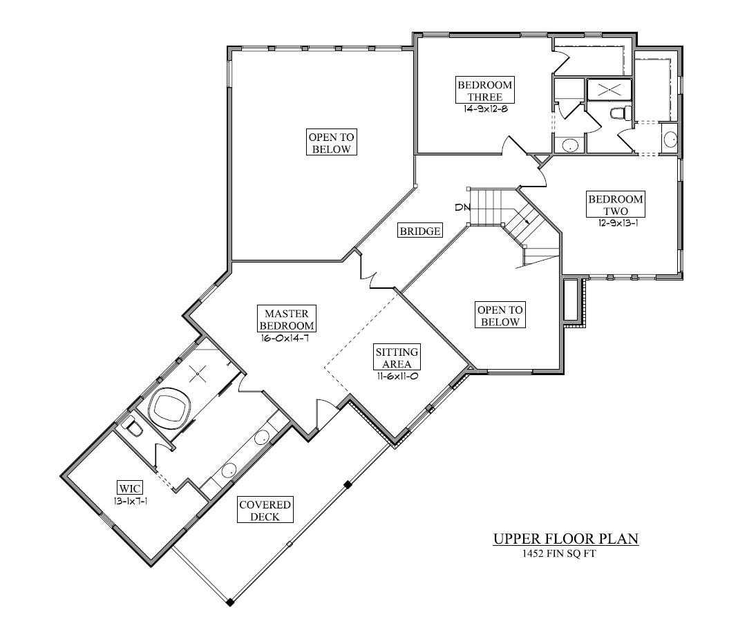
At 3,650 square feet, this Craftsman design delivers warmth, functionality, and elegant details throughout. The spacious great room anchors the main level, opening to the dining area and gourmet kitchen with expansive counter space and a large pantry. Natural light fills the interiors through oversized doors that connect to the covered porch, perfect for entertaining or relaxing. A main-level guest suite enjoys privacy behind the garage, while the mudroom and built-in storage keep the home organized. Upstairs, a bridge-style hallway leads to the serene primary suite with a sitting area and generous walk-in closet. Additional bedrooms share a convenient Jack-and-Jill bath. With its thoughtful layout and inviting style, this home offers a welcoming haven for families and guests alike.
House Plan Pricing
STEP 1 Select Your Package

PDF Single Build


Digital plans emailed to you in PDF format that allows for printing copies and sharing electronically with contractors, subs, decorators, and more. This package includes a license to build the home one time.

PDF Single Build $1,950
Most recommended package

PDF Unlimited Build


Digital plans with an unlimited build license emailed in PDF format, that allows for printing copies on a home printer or local print shop and sharing with contractors, subs, decorators and more 

PDF Unlimited Build $2,775
Digital plans including unlimited build license

CAD + PDF Single Build


CAD files are a complete set of construction drawings delivered electronically. They can be used for any type of modification—including major design changes and engineering—and include a release granting permission to modify the plan. Most CAD plan orders are emailed the same or next business day.
 
This package also comes with a PDF set of plans and a copyright release for making modifications and printing unlimited copies.
 
CAD files are provided in .dwg format. For details on the specific CAD program used, please refer to the PLAN DETAILS section located above the floor plan on each plan’s page.

CAD + PDF Single Build $3,450
2D electronic editable computer files

CAD + PDF Unlimited Build


CAD files are a complete set of construction drawings delivered electronically. They can be used for any type of modification—including major design changes and engineering—and include a release granting permission to modify the plan. Most CAD plan orders are emailed the same or next business day.
 
This package also comes with a PDF set of plans and a multi-use building license, granting permission to construct the home an unlimited number of times, along with a copyright release for making modifications and printing unlimited copies.
 
CAD files are provided in .dwg format. For details on the specific CAD program used, please refer to the PLAN DETAILS section located above the floor plan on each plan’s page.

CAD + PDF Unlimited Build $5,025
2D electronic editable computer files
STEP 2 Need To Reverse This Plan?
STEP 3 CHOOSE YOUR FOUNDATION
STEP 4 OPTIONAL ADD-ONS
Subtotal:
$1950
FREE SHIPPING
 
Plan Details
See All Details
Finished Square Footage
2,198 Sq. Ft.
Main Level:
1,452 Sq. Ft.
Upper Level:
702 Sq. Ft.
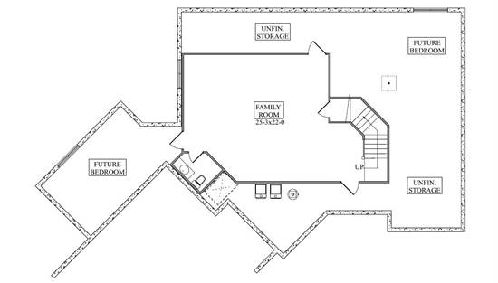
Lower Level:
3,650 Sq. Ft.
Total:
Room Details
4
Bedrooms:
3
Full Baths:
1
Half Baths:
General House Information
2
Number of Stories:
80' 3"
Width:
84' 2"
Depth:
Single
Dwelling Number:
Unfinished Square Footage
1043 Sq. Ft.
Garage:
1276 Sq. Ft.
Porch:
GARAGE
Front
Garage Location:
3
Garage Size:
Exterior Style
Contemporary
Craftsman
Modern
Collections
Affordable
First Home
Kitchens
Luxury
Mountain
Open Floor Plan
Split Bedroom
Foundation
Basement
Crawl Space
Slab
Framing Information
Combination
Roof Framing:
2x6
Exterior Wall Framing:
Roof Pitch
7/12
Primary:
Insulation (R)
House And Ceiling Heights
10
First Floor Ceiling:
10
Second Floor Ceiling:
32' 9"
Maximum House Height:
Key Features
2 Story Volume
Attached
Butler's Pantry
Covered Front Porch
Covered Rear Porch
Dining Room
Double Vanity Sink
Family Room
Fireplace
Foyer
Front-entry
Great Room
Guest Suite
Home Office
Kitchen Island
Laundry 1st Fl
Library/Media Rm
Loft / Balcony
L-Shaped
Primary Bdrm Upstairs
Mud Room
Open Floor Plan
Oversized
Peninsula / Eating Bar
Sitting Area
Split Bedrooms
Storage Space
Suited for corner lot
Unfinished Space
Walk-in Closet

Our Guarantees

  • Only the highest quality plans
  • Int’l Residential Code Compliant
  • Full structural details on all plans
  • Best plan price guarantee
  • Free modification Estimates
  • Builder-ready construction drawings
  • Expert advice from leading designers
  •  PDFs NOW!™ plans in minutes
  • 100% satisfaction guarantee
  • Free Home Building Organizer