House Plan: DFD-11442

See All 2 Photos > (photographs may reflect modified homes)
© copyright by designer
SQ FT
2,534
BEDS
3
BATHS
2.5
STORIES
1
CARS
2
PLANS FROM $1,495
For questions and help, live chat, email or call us at 877-895-5299
Floor Plans
Click to Zoom In on Floor Plan
 
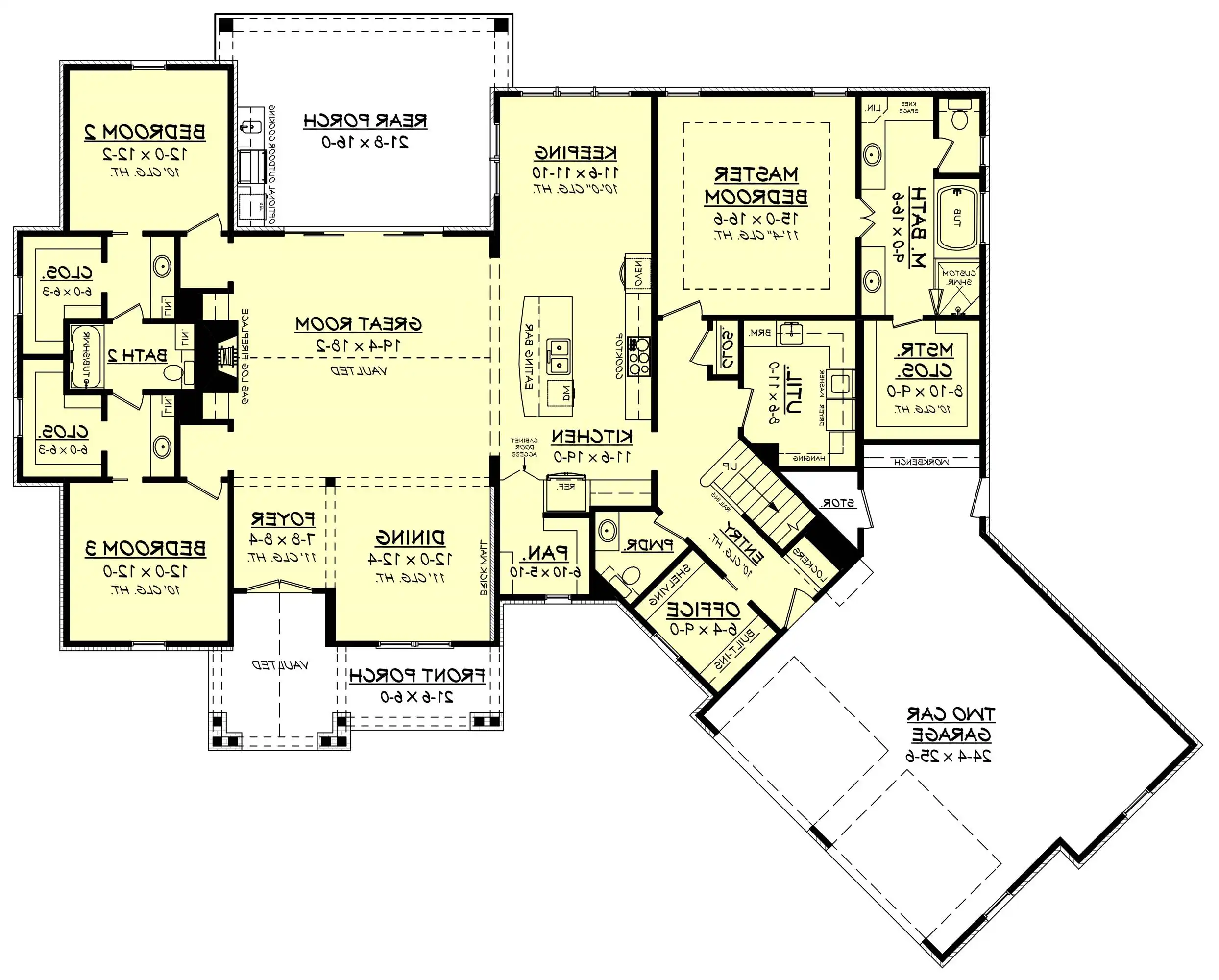
About House Plan 11442:
House Plan 11442 delivers the perfect balance of elegance and livability in a 2,534-square-foot Craftsman design. The open-concept layout features a vaulted great room, large kitchen with an island and walk-in pantry, and a connected keeping room for casual family gatherings. The split-bedroom design places the primary suite on one side of the home, complete with dual vanities, a soaking tub, and a generous walk-in closet. Two secondary bedrooms share a full bath on the opposite wing, ensuring privacy for everyone. A front office provides space for remote work or reading, while a 418-square-foot unfinished bonus room offers room to grow. With covered porches in front and back, a 2-car courtyard garage, and thoughtful details throughout, this plan is designed for relaxed, stylish living.
House Plan Pricing
STEP 1 Select Your Package

PDF Single Build


Digital plans emailed to you in PDF format that allows for printing copies and sharing electronically with contractors, subs, decorators, and more. This package includes a license to build the home one time.

PDF Single Build $1,495
Most recommended package

5 Printed Sets + PDF


Includes 5 physical printed blueprint sets, shipped free via UPS within the U.S. Printed sets ship within 1 business day and are delivered within 3 – 5 business days. A complimentary PDF plan set is also emailed within 1 business day for easy sharing and local printing. These plans may be used to construct one home.

5 Printed Sets + PDF $1,745
5 Printed Sets + PDF

PDF Unlimited Build


Digital plans with an unlimited build license emailed in PDF format, that allows for printing copies on a home printer or local print shop and sharing with contractors, subs, decorators and more 

PDF Unlimited Build $2,195
Digital plans including unlimited build license

CAD + PDF Unlimited Build


This plan package is created in AutoCAD and delivered in .DWG format. CAD files are intended for use by design professionals, structural engineers, and builders to update plans for local building codes or to make revisions based on specific needs, lot requirements, and budget considerations. A complimentary PDF copy is included with this package for reference. CAD packages are delivered within 1 to 2 business days.
 
This package also comes with a multi-use building license, granting permission to construct the home an unlimited number of times, along with a copyright release for making revisions and printing unlimited copies.
 
For details on the specific CAD program used, please refer to the PLAN DETAILS section located above the floor plan on each plan page.

CAD + PDF Unlimited Build $2,595
2D electronic editable computer files
STEP 2 Need To Reverse This Plan?
STEP 3 CHOOSE YOUR FOUNDATION
STEP 4 OPTIONAL ADD-ONS
Subtotal:
$1495
FREE SHIPPING
 
Plan Details
See All Details
Finished Square Footage
2,534 Sq. Ft.
Main Level:
2,534 Sq. Ft.
Total:
Room Details
3
Bedrooms:
2
Full Baths:
1
Half Baths:
General House Information
1
Number of Stories:
88' 7"
Width:
70' 10"
Depth:
Single
Dwelling Number:
2nd Floor
Bonus Access:
Unfinished Square Footage
720 Sq. Ft.
Garage:
20 Sq. Ft.
Storage:
172 Sq. Ft.
Front Porch:
324 Sq. Ft.
Rear Porch:
418 Sq. Ft.
Bonus Room:
GARAGE
Front
Garage Location:
2
Garage Size:
Exterior Style
Country
Craftsman
Traditional
Collections
Architects Choice
Kitchens
Luxury
Primary Suites
Open Floor Plan
Split Bedroom
Foundation
Basement
Crawl Space
Slab
Walkout Basement
Framing Information
Stick
Roof Framing:
2x4
Exterior Wall Framing:
Roof Pitch
9/12
Primary:
12/12
Secondary:
Insulation (R)
House And Ceiling Heights
10
First Floor Ceiling:
9
Second Floor Ceiling:
27' 0"
Maximum House Height:
Key Features
Attached
Bonus Room
Courtyard/Motorcourt Entry
Covered Front Porch
Covered Rear Porch
Dining Room
Double Vanity Sink
Fireplace
Foyer
Great Room
Home Office
Kitchen Island
Laundry 1st Fl
L-Shaped
Primary Bdrm Main Floor
Mud Room
Nook / Breakfast Area
Open Floor Plan
Separate Tub and Shower
Split Bedrooms
Storage Space
Walk-in Closet
Walk-in Pantry

Our Guarantees

  • Only the highest quality plans
  • Int’l Residential Code Compliant
  • Full structural details on all plans
  • Best plan price guarantee
  • Free modification Estimates
  • Builder-ready construction drawings
  • Expert advice from leading designers
  •  PDFs NOW!™ plans in minutes
  • 100% satisfaction guarantee
  • Free Home Building Organizer

See terms opt out anytime