20% off ALL House Plans Sitewide
20% off ALL House Plans Sitewide

House Plan: DFD-11507

See All 2 Photos > (photographs may reflect modified homes)
© copyright by designer
SQ FT
1,504
BEDS
3
BATHS
2
STORIES
1
CARS
2
HOUSE PLANS SALE 
START AT  $1,040.00
For questions and help, live chat, email or call us at 877-895-5299
Floor Plans
Click to Zoom In on Floor Plan
 
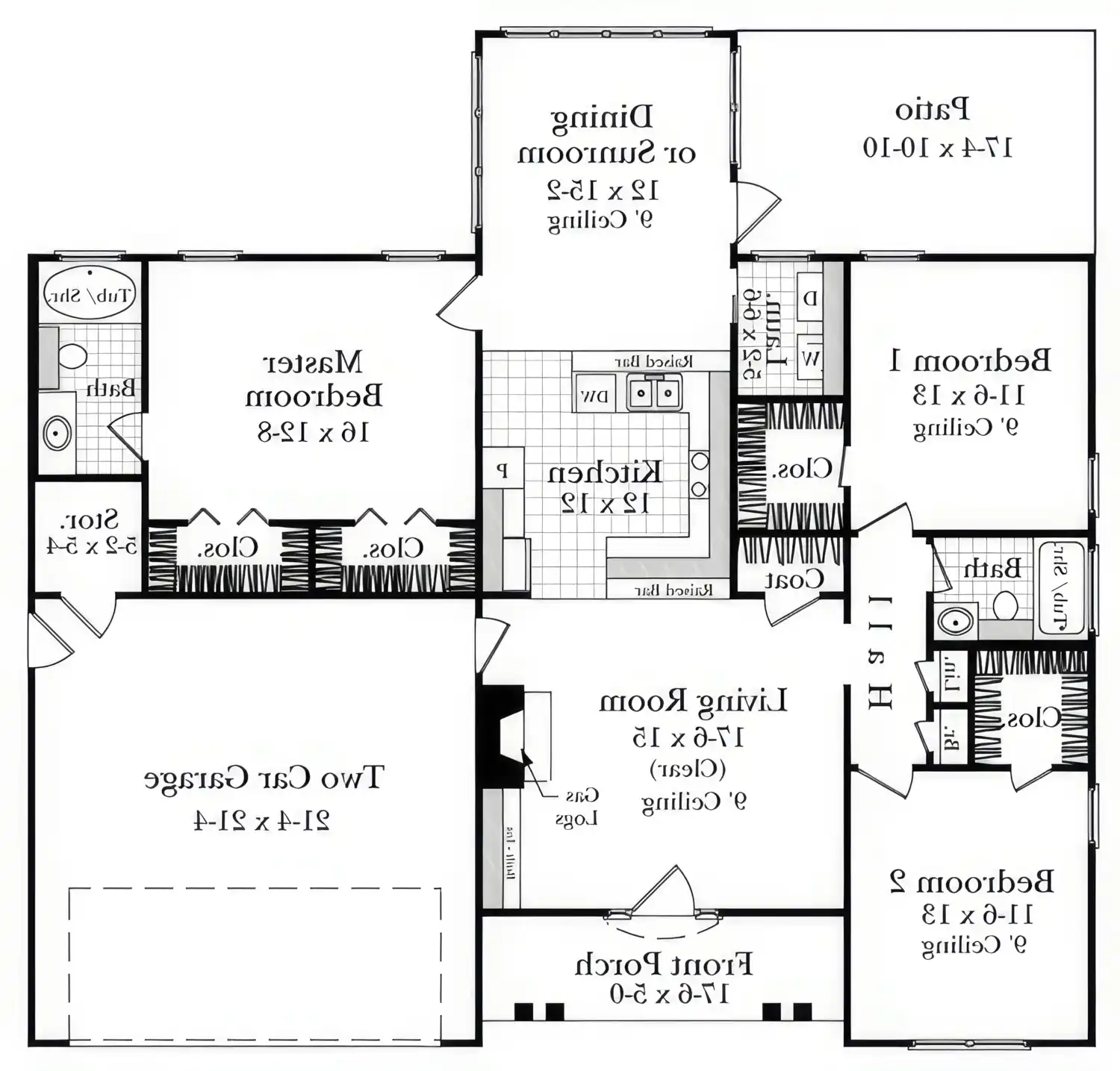
About House Plan 11507:
House Plan 11507 brings together relaxed Southern charm and an easy-flow, single-story layout ideal for day-to-day living. The exterior highlights its welcoming personality with a covered front porch, stone accents, and warm wood details. Inside, the living room features a comfortable gas fireplace and opens directly to the kitchen, complete with a raised bar and adjoining dining/sunroom for casual meals or gathering with friends. The primary suite is a calming retreat, offering dual closets and a spacious bath with both a soaking tub and separate shower. Two secondary bedrooms share a full bath on the opposite side of the home, enhancing privacy in this split-bedroom design. A convenient laundry room is located near the garage entry to simplify everyday routines. Outdoor enjoyment continues with a rear patio and the inviting front porch—perfect spaces for morning coffee or evening relaxation. House Plan 11507 delivers comfort, warmth, and thoughtful design in a timeless single-story home.
House Plan Pricing
STEP 1 Select Your Package

Study Set - Printed


One printed set of house plans stamped NOT FOR CONSTRUCTION". This set is intended for review purposes and are mailed to you. To build from the plans, you need to upgrade to a licensed set.
Study Set - Printed $1,150
One Printed Set - Not for Construction

PDF Single Build


Digital plans emailed to you in PDF format that allows for printing copies and sharing electronically with contractors, subs, decorators, and more. This package includes a license to build the home one time.

PDF Single Build $1,300
Most recommended package

5 Printed Sets


Five Printed Sets of Residential Construction Drawings are typically 24” x 36” documents and come with a license to construct a single residence shipped to a physical address. Keep in mind PDF Plan Packages are our most popular choice which allows you to print as many copies as you need and to electronically send files to your builder, subcontractors, etc.

5 Printed Sets $1,400
Five printed sets of house plans

5 Printed Sets + PDF


Digital plan emailed to you in PDF format that allows for printing copies on a home printer or local print shop and sharing with contractors, subs, decorators, and more. PLUS five printed sets shipped and delivered 3-5 business days.

5 Printed Sets + PDF $1,600
Digital plans plus 5 printed sets

CAD + PDF Single Build


CAD files are a complete set of construction drawings delivered electronically. They can be used for any type of modification—including major design changes and engineering—and include a release granting permission to modify the plan. Most CAD plan orders are emailed the same or next business day.
 
This package also comes with a PDF set of plans and a copyright release for making modifications and printing unlimited copies.
 
CAD files are provided in .dwg format. For details on the specific CAD program used, please refer to the PLAN DETAILS section located above the floor plan on each plan’s page.

CAD + PDF Single Build $1,950
2D electronic editable computer files
STEP 2 Need To Reverse This Plan?
STEP 3 CHOOSE YOUR FOUNDATION
STEP 4 OPTIONAL ADD-ONS
Subtotal:
$1300
FREE SHIPPING
 
Plan Details
See All Details
Finished Square Footage
2,094 Sq. Ft.
Main Level:
1,504 Sq. Ft.
Total:
Room Details
3
Bedrooms:
2
Full Baths:
General House Information
1
Number of Stories:
51' 8"
Width:
49' 2"
Depth:
Single
Dwelling Number:
Unfinished Square Footage
472 Sq. Ft.
Garage:
30 Sq. Ft.
Storage:
88 Sq. Ft.
Front Porch:
GARAGE
Front
Garage Location:
2
Garage Size:
Exterior Style
Cottage
Country
Ranch
Traditional
Collections
Affordable
Budget
Builders
Empty Nester
First Home
Open Floor Plan
Split Bedroom
Foundation
Crawlspace
Slab
Framing Information
Stick
Roof Framing:
2x4
Exterior Wall Framing:
Roof Pitch
10 in 12
Primary:
Roof Load
30
Live:
40
Dead:
50
Wind:
Insulation (R)
15
Exterior Wall:
38
Interior Wall:
19
Ceiling:
19
Floor:
House And Ceiling Heights
9
First Floor Ceiling:
25' 2"
Maximum House Height:
Key Features
Attached
Covered Front Porch
Deck
Dining Room
Great Room
His and Hers Primary Closets
Home Office
Laundry 1st Fl
Primary Bdrm Main Floor
Outdoor Living Space
Oversized
Pantry
Screened Porch/Sunroom
Split Bedrooms
Storage Space
U-Shaped
Walk-in Closet

Our Guarantees

  • Only the highest quality plans
  • Int’l Residential Code Compliant
  • Full structural details on all plans
  • Best plan price guarantee
  • Free modification Estimates
  • Builder-ready construction drawings
  • Expert advice from leading designers
  •  PDFs NOW!™ plans in minutes
  • 100% satisfaction guarantee
  • Free Home Building Organizer