20% off ALL House Plans Sitewide
20% off ALL House Plans Sitewide

House Plan: DFD-11591

See All 2 Photos > (photographs may reflect modified homes)
© copyright by designer
SQ FT
1,934
BEDS
3
BATHS
2
STORIES
1.5
CARS
2
HOUSE PLANS SALE 
START AT  $1,040.00
For questions and help, live chat, email or call us at 877-895-5299
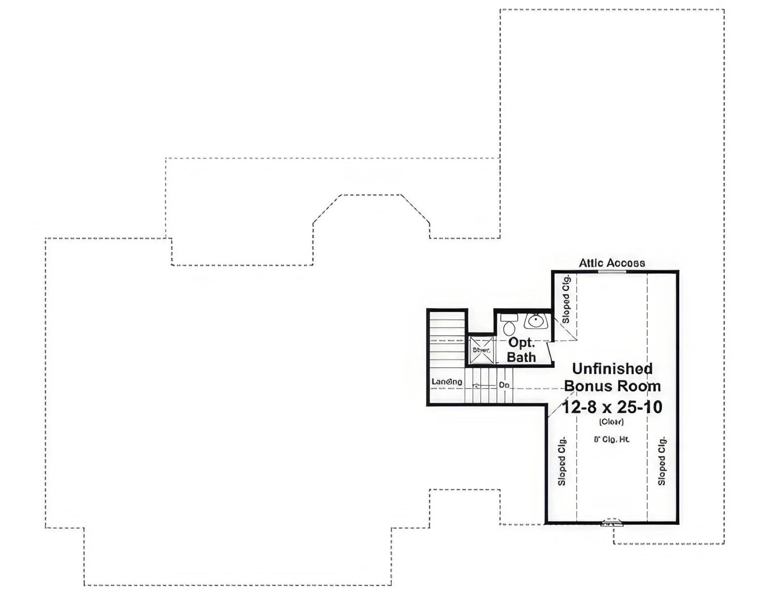
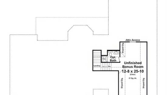
Floor Plans
Click to Zoom In on Floor Plan
 
About House Plan 11591:
House Plan 11591 offers the comfort and simplicity of one-level living with thoughtful spaces for both daily life and entertaining. The foyer leads into a vaulted great room with a fireplace as the centerpiece, creating a warm gathering space. The kitchen and breakfast area are positioned toward the back of the home, providing easy access to the covered rear porch for outdoor meals or relaxing evenings. The primary suite includes two walk-in closets and a spacious bath with a soaking tub and separate shower. Two secondary bedrooms and a full bath are grouped together on the opposite wing, making this a true split-bedroom layout. A formal dining room adds room for holidays and hosting. Stairs near the entry lead to an optional bonus room above the garage, allowing room to grow or personalize the home over time.
House Plan Pricing
STEP 1 Select Your Package

Study Set - Printed


One printed set of house plans stamped NOT FOR CONSTRUCTION". This set is intended for review purposes and are mailed to you. To build from the plans, you need to upgrade to a licensed set.
Study Set - Printed $1,150
One Printed Set - Not for Construction

PDF Single Build


Digital plans emailed to you in PDF format that allows for printing copies and sharing electronically with contractors, subs, decorators, and more. This package includes a license to build the home one time.

PDF Single Build $1,300
Most recommended package

5 Printed Sets


Five Printed Sets of Residential Construction Drawings are typically 24” x 36” documents and come with a license to construct a single residence shipped to a physical address. Keep in mind PDF Plan Packages are our most popular choice which allows you to print as many copies as you need and to electronically send files to your builder, subcontractors, etc.

5 Printed Sets $1,400
Five printed sets of house plans

5 Printed Sets + PDF


Digital plan emailed to you in PDF format that allows for printing copies on a home printer or local print shop and sharing with contractors, subs, decorators, and more. PLUS five printed sets shipped and delivered 3-5 business days.

5 Printed Sets + PDF $1,600
Digital plans plus 5 printed sets

CAD + PDF Single Build


CAD files are a complete set of construction drawings delivered electronically. They can be used for any type of modification—including major design changes and engineering—and include a release granting permission to modify the plan. Most CAD plan orders are emailed the same or next business day.
 
This package also comes with a PDF set of plans and a copyright release for making modifications and printing unlimited copies.
 
CAD files are provided in .dwg format. For details on the specific CAD program used, please refer to the PLAN DETAILS section located above the floor plan on each plan’s page.

CAD + PDF Single Build $1,950
2D electronic editable computer files
STEP 2 Need To Reverse This Plan?
STEP 3 CHOOSE YOUR FOUNDATION
STEP 4 OPTIONAL ADD-ONS
Subtotal:
$1300
FREE SHIPPING
 
Plan Details
See All Details
Finished Square Footage
1,934 Sq. Ft.
Main Level:
1,934 Sq. Ft.
Total:
Room Details
3
Bedrooms:
2
Full Baths:
General House Information
1.5
Number of Stories:
70' 8"
Width:
60' 0"
Depth:
Single
Dwelling Number:
Unfinished Square Footage
745 Sq. Ft.
Garage:
192 Sq. Ft.
Front Porch:
271 Sq. Ft.
Rear Porch:
426 Sq. Ft.
Bonus Room:
GARAGE
Side
Garage Location:
2
Garage Size:
Exterior Style
Country
Modern Farmhouse
Ranch
Traditional
Collections
Builders
Empty Nester
First Home
Split Bedroom
Foundation
Basement
Crawlspace
Slab
Framing Information
Stick
Roof Framing:
2x4
Exterior Wall Framing:
Roof Pitch
12/12
Primary:
10/12 and 4/12
Secondary:
Roof Load
30
Live:
10
Dead:
40
Wind:
Insulation (R)
15
Exterior Wall:
38
Interior Wall:
19
Ceiling:
19
Floor:
House And Ceiling Heights
9
First Floor Ceiling:
28' 2"
Maximum House Height:
Key Features
Attached
Bonus Room
Covered Front Porch
Covered Rear Porch
Dining Room
Double Vanity Sink
Exercise Room
Fireplace
Formal LR
Foyer
Great Room
His and Hers Primary Closets
Home Office
Laundry 1st Fl
Library/Media Rm
Primary Bdrm Main Floor
Nook / Breakfast Area
Nursery Room
Oversized
Pantry
Peninsula / Eating Bar
Rec Room
Split Bedrooms
Storage Space
Unfinished Space
Vaulted Ceilings
Walk-in Closet

Our Guarantees

  • Only the highest quality plans
  • Int’l Residential Code Compliant
  • Full structural details on all plans
  • Best plan price guarantee
  • Free modification Estimates
  • Builder-ready construction drawings
  • Expert advice from leading designers
  •  PDFs NOW!™ plans in minutes
  • 100% satisfaction guarantee
  • Free Home Building Organizer