15% off ALL House Plans Sitewide
15% off ALL House Plans Sitewide

House Plan: DFD-11688

See All 13 Photos > (photographs may reflect modified homes)
© copyright by designer
SQ FT
4,908
BEDS
4
BATHS
4.5
STORIES
2
CARS
4
HOUSE PLANS SALE 
START AT  $3,272.50
For questions and help, live chat, email or call us at 877-895-5299
Floor Plans
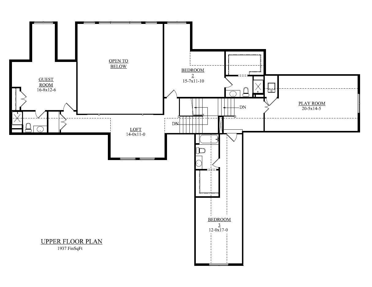
Click to Zoom In on Floor Plan
 
About House Plan 11688:
This charming 4,908 square foot home offers 4 bedrooms and 4.5 bathrooms designed for comfort and everyday elegance. The kitchen’s butler’s pantry, large island, and open layout create the perfect flow for family meals and entertaining. The great room and formal living room add a touch of refinement while keeping the space inviting. The main-floor primary suite features double walk-in closets and a spa-like bath for true relaxation. Upstairs, the loft and additional bedrooms provide versatile living options for family or guests. The covered porches and deck extend the living space outdoors, creating a peaceful setting for quiet evenings. Perfectly suited to the Craftsman style, this home blends timeless character with modern comfort. A graceful retreat that brings warmth and functionality together in every detail.
House Plan Pricing
STEP 1 Select Your Package

PDF Single Build


Digital plans emailed to you in PDF format that allows for printing copies and sharing electronically with contractors, subs, decorators, and more. This package includes a license to build the home one time.

PDF Single Build $3,850
Most recommended package

5 Printed Sets + PDF


Includes 5 physical printed blueprint sets, shipped free via UPS within the U.S. Printed sets ship within 1 business day and are delivered within 3 – 5 business days. A complimentary PDF plan set is also emailed within 1 business day for easy sharing and local printing. These plans may be used to construct one home.

5 Printed Sets + PDF $4,200
5 Printed Sets + PDF

CAD + PDF Single Build


This plan package is created in AutoCAD and delivered in .DWG format. CAD files are intended for use by design professionals, structural engineers, and builders to update plans for local building codes or to make revisions based on specific needs, lot requirements, and budget considerations. A complimentary PDF copy is included with this package for reference. CAD packages are delivered within 1 to 2 business days.
 
This package also comes with a copyright release for making revisions and printing unlimited copies.

For details on the specific CAD program used, please refer to the PLAN DETAILS section located above the floor plan on each plan page.

CAD + PDF Single Build $5,550
2D electronic editable computer files

PDF Unlimited Build


Digital plans with an unlimited build license emailed in PDF format, that allows for printing copies on a home printer or local print shop and sharing with contractors, subs, decorators and more 

PDF Unlimited Build $5,625
Digital plans including unlimited build license

CAD Unlimited Build


CAD files are a complete set of construction drawings delivered electronically. They can be used for any type of modification—including major design changes and engineering—and include a release granting permission to modify the plan. Most CAD plan orders are emailed the same or next business day. CAD files are provided in .dwg format. For details on the specific CAD program used, please refer to the PLAN DETAILS section located above the floor plan on each plan’s page.
CAD Unlimited Build $8,175
2D electronic editable computer files
STEP 2 Need To Reverse This Plan?
STEP 3 CHOOSE YOUR FOUNDATION
STEP 4 OPTIONAL ADD-ONS
Subtotal:
$3850
FREE SHIPPING
 
Plan Details
See All Details
Finished Square Footage
3,036 Sq. Ft.
Main Level:
1,872 Sq. Ft.
Upper Level:
2,207 Sq. Ft.
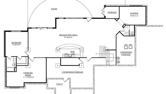
Lower Level:
4,908 Sq. Ft.
Total:
Room Details
4
Bedrooms:
4
Full Baths:
1
Half Baths:
General House Information
2
Number of Stories:
103' 0"
Width:
77' 6"
Depth:
Single
Dwelling Number:
Unfinished Square Footage
1624 Sq. Ft.
Garage:
GARAGE
Front
Garage Location:
4
Garage Size:
Exterior Style
Craftsman
Farmhouse
Modern Farmhouse
Transitional
Collections
Luxury
Mountain
Open Floor Plan
Split Bedroom
Foundation
Basement
Crawl Space
Slab
Walkout Basement
Framing Information
2x6
Exterior Wall Framing:
Roof Pitch
8/12
Primary:
7/12
Secondary:
Insulation (R)
House And Ceiling Heights
9
First Floor Ceiling:
9
Second Floor Ceiling:
25' 9"
Maximum House Height:
Key Features
Attached
Butler's Pantry
Covered Front Porch
Covered Rear Porch
Deck
Dining Room
Double Vanity Sink
Exercise Room
Fireplace
Formal LR
Front-entry
Great Room
His and Hers Primary Closets
Home Office
Kitchen Island
Laundry 1st Fl
Loft / Balcony
L-Shaped
Primary Bdrm Main Floor
Mud Room
Open Floor Plan
Peninsula / Eating Bar
Rec Room
Separate Tub and Shower
Side-entry
Split Bedrooms
Storage Space
Suited for corner lot
Walk-in Closet

Our Guarantees

  • Only the highest quality plans
  • Int’l Residential Code Compliant
  • Full structural details on all plans
  • Best plan price guarantee
  • Free modification Estimates
  • Builder-ready construction drawings
  • Expert advice from leading designers
  •  PDFs NOW!™ plans in minutes
  • 100% satisfaction guarantee
  • Free Home Building Organizer