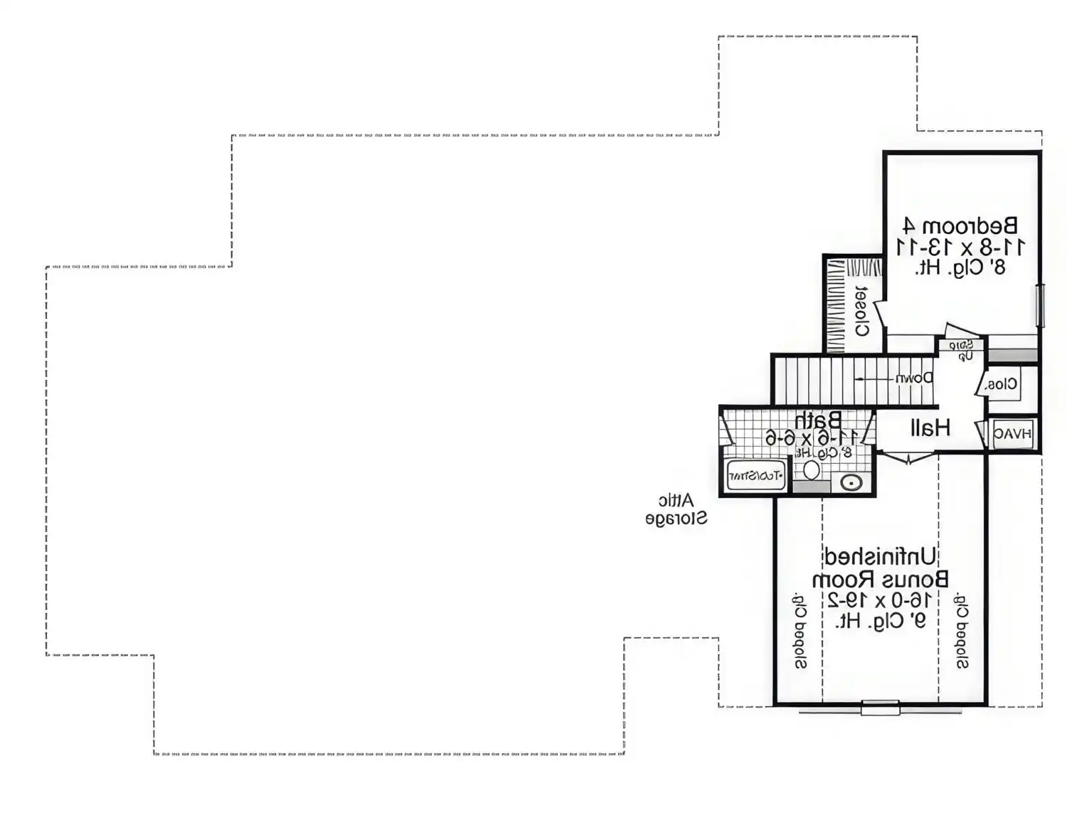
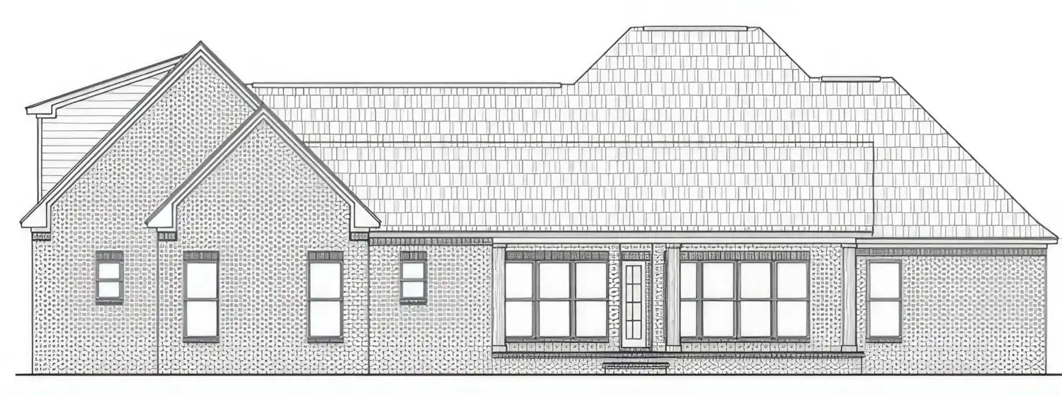
With 2,851 square feet of heated space, this thoughtfully planned home balances open living with private retreats across 2 stories. The foyer leads into expansive living areas highlighted by vaulted ceilings and multiple gathering spaces, including a great room and formal living room. The kitchen serves as the heart of the home with generous prep space, ample storage, and easy access to both the dining room and breakfast area. The main-level primary suite offers privacy and comfort with a spacious bath and walk-in closet, while additional bedrooms are thoughtfully separated. An oversized attached garage adds practicality and storage without sacrificing flow. Designed to support busy households and relaxed entertaining alike, this plan delivers warmth, flexibility, and everyday livability.