20% off ALL House Plans Sitewide
20% off ALL House Plans Sitewide

House Plan: DFD-11755

See All 26 Photos > (photographs may reflect modified homes)
© copyright by designer
SQ FT
3,460
BEDS
6
BATHS
4.5
STORIES
2
CARS
0
HOUSE PLANS SALE 
START AT  $1,716.00
For questions and help, live chat, email or call us at 877-895-5299
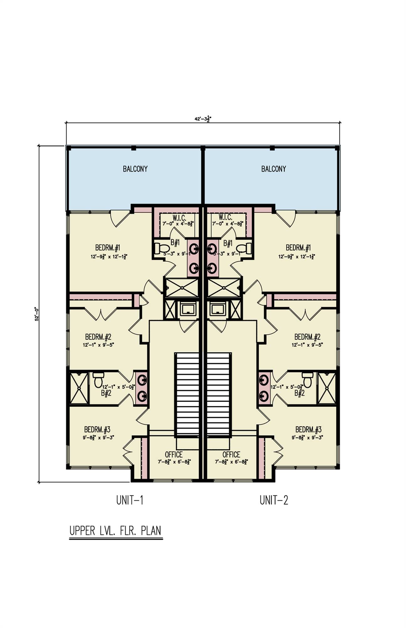
Floor Plans
Click to Zoom In on Floor Plan
 
About House Plan 11755:

House Plan 11755 combines modern style with everyday efficiency in a two-story duplex layout. Each 1,701 square foot unit features a generous open main floor with 10-foot ceilings and a kitchen that flows naturally into the dining and living areas. This layout supports a relaxed, comfortable lifestyle and allows for effortless hosting. A covered front porch completes the welcoming main level.The second floor includes three bedrooms, two full bathrooms, and an upstairs laundry room for added ease. The primary suite enjoys a walk-in closet and a private balcony that provides a peaceful outdoor retreat. The two secondary bedrooms share a thoughtfully designed Jack and Jill bath. Built with privacy in mind, the units are separated by structural design rather than shared interior walls. Exterior details such as vertical siding, flat rooflines, and durable roofing materials create a clean, modern look with lasting performance. The efficient footprint makes this plan a strong option for urban neighborhoods, multifamily developments, or income-generating rental properties.

House Plan Pricing
STEP 1 Select Your Package

PDF Single Build


Digital plans emailed to you in PDF format that allows for printing copies and sharing electronically with contractors, subs, decorators, and more. This package includes a license to build the home one time.

PDF Single Build $2,145
Most recommended package

5 Printed Sets


Includes 5 physical printed blueprint sets, shipped free via UPS within the U.S. Printed sets ship within 1 business day and are delivered within 3 – 5 business days. These plans may be used to construct one home.

5 Printed Sets $2,435
Five printed sets of house plans

5 Printed Sets + PDF


Includes 5 physical printed blueprint sets, shipped free via UPS within the U.S. Printed sets ship within 1 business day and are delivered within 3 – 5 business days. A complimentary PDF plan set is also emailed within 1 business day for easy sharing and local printing. These plans may be used to construct one home.

5 Printed Sets + PDF $2,495
5 Printed Sets + PDF

CAD + PDF Single Build


This plan package is created in AutoCAD and delivered in .DWG format. CAD files are intended for use by design professionals, structural engineers, and builders to update plans for local building codes or to make revisions based on specific needs, lot requirements, and budget considerations. A complimentary PDF copy is included with this package for reference. CAD packages are delivered within 1 to 2 business days.
 
This package also comes with a copyright release for making revisions and printing unlimited copies.

For details on the specific CAD program used, please refer to the PLAN DETAILS section located above the floor plan on each plan page.

CAD + PDF Single Build $2,995
2D electronic editable computer files

CAD + PDF Unlimited Build


This plan package is created in AutoCAD and delivered in .DWG format. CAD files are intended for use by design professionals, structural engineers, and builders to update plans for local building codes or to make revisions based on specific needs, lot requirements, and budget considerations. A complimentary PDF copy is included with this package for reference. CAD packages are delivered within 1 to 2 business days.
 
This package also comes with a multi-use building license, granting permission to construct the home an unlimited number of times, along with a copyright release for making revisions and printing unlimited copies.
 
For details on the specific CAD program used, please refer to the PLAN DETAILS section located above the floor plan on each plan page.

CAD + PDF Unlimited Build $3,795
2D electronic editable computer files
STEP 2 Need To Reverse This Plan?
STEP 3 CHOOSE YOUR FOUNDATION
STEP 4 OPTIONAL ADD-ONS
Subtotal:
$2145
FREE SHIPPING
 
Plan Details
See All Details
Finished Square Footage
1,758 Sq. Ft.
Main Level:
1,702 Sq. Ft.
Upper Level:
3,460 Sq. Ft.
Total:
Room Details
6
Bedrooms:
4
Full Baths:
2
Half Baths:
General House Information
2
Number of Stories:
42' 4"
Width:
57' 0"
Depth:
Duplex
Dwelling Number:
None
Bonus Access:
Unfinished Square Footage
401 Sq. Ft.
Front Porch:
GARAGE
0
Garage Size:
Exterior Style
Contemporary
Modern
Collections
Affordable
Open Floor Plan
Foundation
Crawlspace
Slab
Framing Information
Truss
Roof Framing:
2x6
Exterior Wall Framing:
Insulation (R)
House And Ceiling Heights
10
First Floor Ceiling:
9
Second Floor Ceiling:
24' 11"
Maximum House Height:
Key Features
Covered Front Porch
Covered Rear Porch
Double Vanity Sink
Family Style
Fireplace
Formal LR
Foyer
Home Office
Kitchen Island
Laundry 1st Fl
L-Shaped
Primary Bdrm Upstairs
Nook / Breakfast Area
Open Floor Plan
Screened Porch/Sunroom
Walk-in Closet
Walk-in Pantry

Our Guarantees

  • Only the highest quality plans
  • Int’l Residential Code Compliant
  • Full structural details on all plans
  • Best plan price guarantee
  • Free modification Estimates
  • Builder-ready construction drawings
  • Expert advice from leading designers
  •  PDFs NOW!™ plans in minutes
  • 100% satisfaction guarantee
  • Free Home Building Organizer