15% off ALL House Plans Sitewide

House Plan: DFD-11825

See All 12 Photos > (photographs may reflect modified homes)
© copyright by designer
SQ FT
3,163
BEDS
4
BATHS
3.5
STORIES
1.5
CARS
2
HOUSE PLANS SALE 
START AT  $1,398.25
For questions and help, live chat, email or call us at 877-895-5299
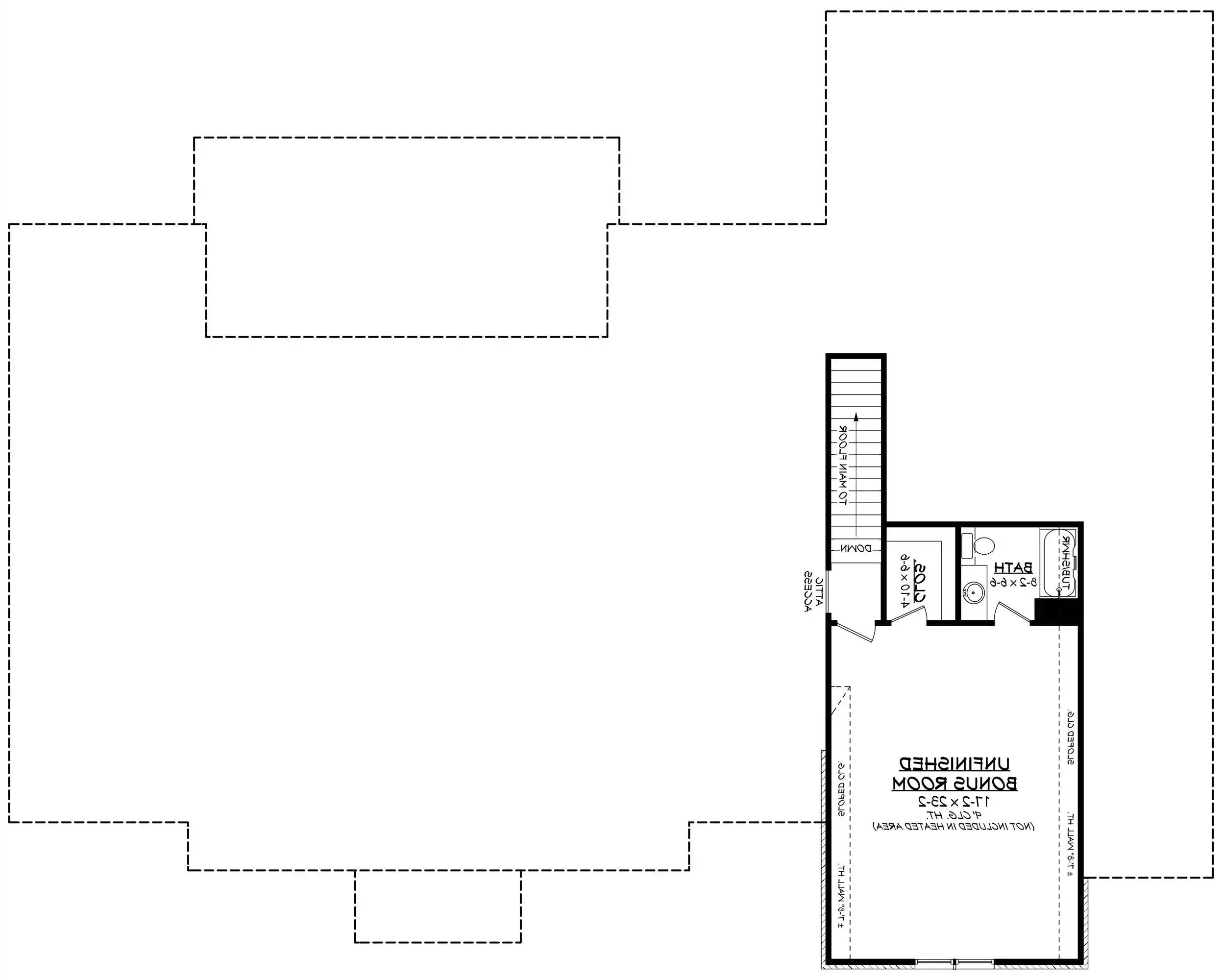
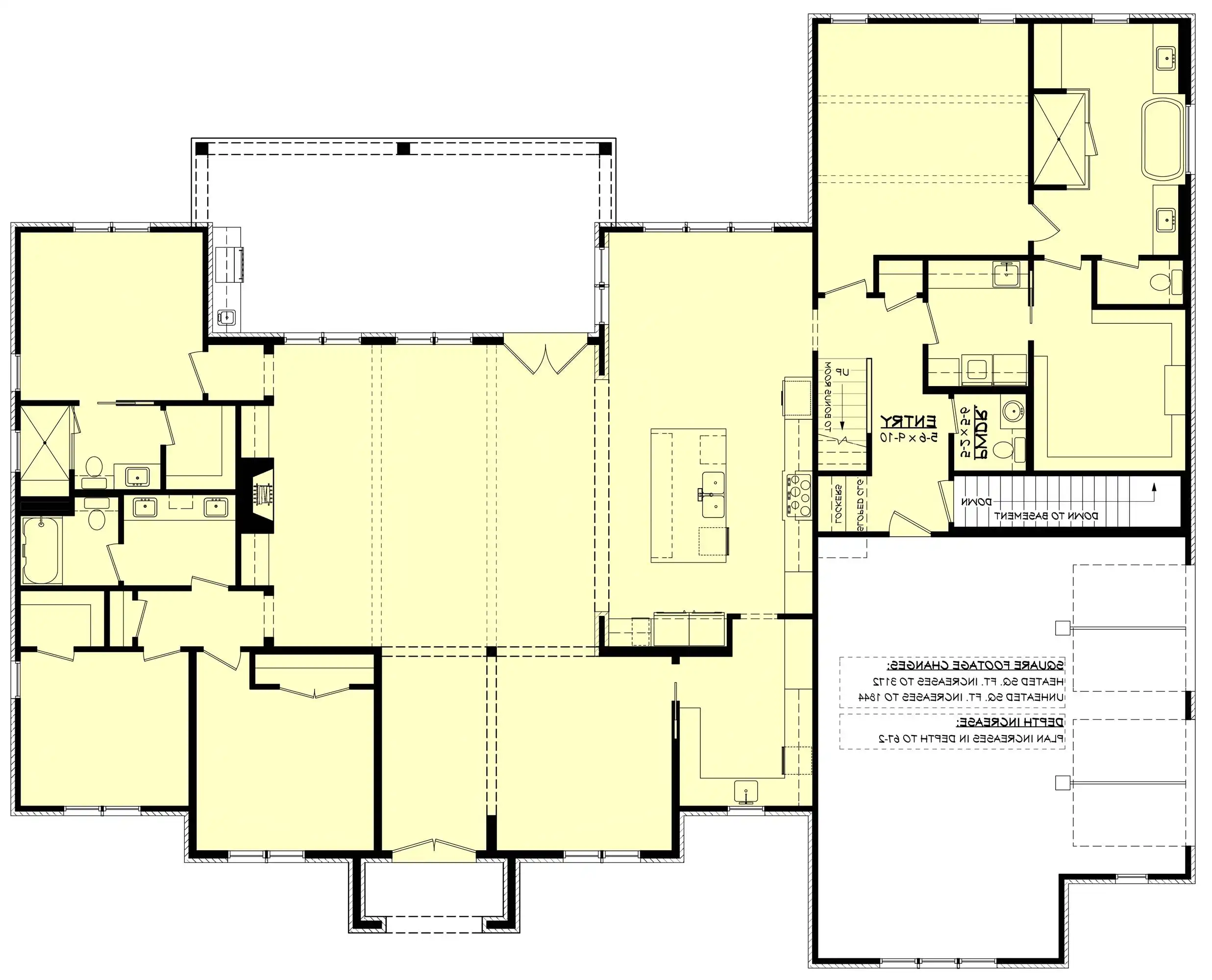
Floor Plans
Click to Zoom In on Floor Plan
 
About House Plan 11825:
With 3,163 square feet of thoughtfully arranged main-floor living, this home blends openness, comfort, and convenience. The kitchen is designed for both function and warmth, featuring an island, peninsula, butler’s pantry, and breakfast nook that naturally supports family routines. The great room creates a central gathering place, opening to a covered rear porch ideal for outdoor meals and quiet evenings. A dedicated foyer, laundry room, and mud room enhance day-to-day organization, while the split-bedroom layout provides privacy and flexibility. The primary suite offers a relaxing retreat with its spacious layout, walk-in closet, and well-appointed bath. Additional bedrooms are arranged to comfortably accommodate family needs or long-term guests. With features like the outdoor kitchen and abundant storage, this home creates a setting where comfort is always within reach and every moment feels warmly grounded.
House Plan Pricing
STEP 1 Select Your Package

PDF Single Build


Digital plans emailed to you in PDF format that allows for printing copies and sharing electronically with contractors, subs, decorators, and more. This package includes a license to build the home one time.

PDF Single Build $1,645
Most recommended package

5 Printed Sets + PDF


Includes 5 physical printed blueprint sets, shipped free via UPS within the U.S. Printed sets ship within 1 business day and are delivered within 3 – 5 business days. A complimentary PDF plan set is also emailed within 1 business day for easy sharing and local printing. These plans may be used to construct one home.

5 Printed Sets + PDF $1,895
5 Printed Sets + PDF

PDF Unlimited Build


Digital plans with an unlimited build license emailed in PDF format, that allows for printing copies on a home printer or local print shop and sharing with contractors, subs, decorators and more 

PDF Unlimited Build $2,345
Digital plans including unlimited build license

CAD + PDF Unlimited Build


This plan package is created in AutoCAD and delivered in .DWG format. CAD files are intended for use by design professionals, structural engineers, and builders to update plans for local building codes or to make revisions based on specific needs, lot requirements, and budget considerations. A complimentary PDF copy is included with this package for reference. CAD packages are delivered within 1 to 2 business days.
 
This package also comes with a multi-use building license, granting permission to construct the home an unlimited number of times, along with a copyright release for making revisions and printing unlimited copies.
 
For details on the specific CAD program used, please refer to the PLAN DETAILS section located above the floor plan on each plan page.

CAD + PDF Unlimited Build $2,745
2D electronic editable computer files
STEP 2 Need To Reverse This Plan?
STEP 3 CHOOSE YOUR FOUNDATION
STEP 4 OPTIONAL ADD-ONS
Subtotal:
$1645
FREE SHIPPING
 
Plan Details
See All Details
Finished Square Footage
3,163 Sq. Ft.
Main Level:
3,163 Sq. Ft.
Total:
Room Details
4
Bedrooms:
3
Full Baths:
1
Half Baths:
General House Information
1.5
Number of Stories:
83' 6"
Width:
66' 2"
Depth:
Single
Dwelling Number:
2nd Floor
Bonus Access:
Unfinished Square Footage
808 Sq. Ft.
Garage:
453 Sq. Ft.
Porch:
58 Sq. Ft.
Front Porch:
395 Sq. Ft.
Rear Porch:
547 Sq. Ft.
Bonus Room:
GARAGE
Front
Garage Location:
2
Garage Size:
Exterior Style
Country
Farmhouse
Modern Farmhouse
Ranch
Traditional
Transitional
Collections
Primary Suites
Open Floor Plan
Outdoor Living
Split Bedroom
Foundation
Basement
Crawl Space
Slab
Walkout Basement
Framing Information
Stick
Roof Framing:
2x4
Exterior Wall Framing:
Roof Pitch
8/12
Primary:
12/12
Secondary:
Insulation (R)
House And Ceiling Heights
10
First Floor Ceiling:
9
Second Floor Ceiling:
29' 0"
Maximum House Height:
Key Features
Attached
Butler's Pantry
Covered Rear Porch
Dining Room
Double Vanity Sink
Fireplace
Foyer
Great Room
Kitchen Island
Laundry 1st Fl
L-Shaped
Primary Bdrm Main Floor
Mud Room
Nook / Breakfast Area
Open Floor Plan
Outdoor Kitchen
Peninsula / Eating Bar
Separate Tub and Shower
Side-entry
Split Bedrooms
Storage Space
Suited for corner lot
Walk-in Closet

Our Guarantees

  • Only the highest quality plans
  • Int’l Residential Code Compliant
  • Full structural details on all plans
  • Best plan price guarantee
  • Free modification Estimates
  • Builder-ready construction drawings
  • Expert advice from leading designers
  •  PDFs NOW!™ plans in minutes
  • 100% satisfaction guarantee
  • Free Home Building Organizer

See terms opt out anytime