20% off ALL House Plans Sitewide
20% off ALL House Plans Sitewide

House Plan: DFD-11978

See All 13 Photos > (photographs may reflect modified homes)
© copyright by designer
SQ FT
2,379
BEDS
3
BATHS
3.5
STORIES
1
CARS
3
HOUSE PLANS SALE 
START AT  $1,156.00
For questions and help, live chat, email or call us at 877-895-5299
Floor Plans
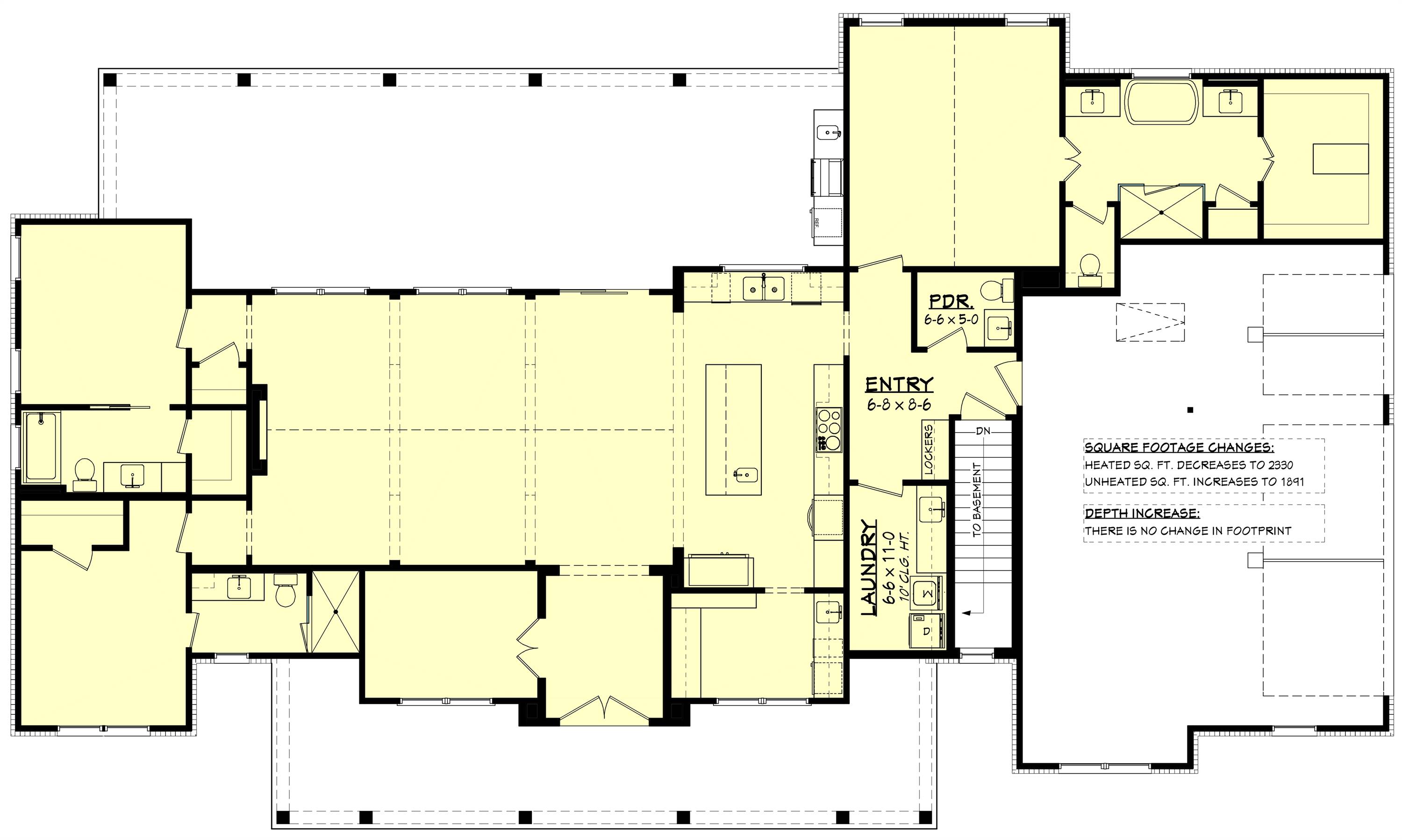
Click to Zoom In on Floor Plan
 
About House Plan 11978:
Designed with 2,379 square feet of heated space, this home offers a layout that blends open gathering areas with quiet, restful corners. The vaulted great room creates an impressive central space that connects effortlessly to the dining room and the spacious kitchen, which includes a walk-in pantry, butler’s pantry, and seating at the peninsula. A luxurious main floor primary suite features a vaulted ceiling, double vanity, and generous walk-in closet, giving it a serene retreat-like feel. Split bedrooms ensure everyone has their own comfortable space, while the foyer, mud room, and home office bring extra convenience to the daily routine. Outdoor living areas include a covered front porch, covered rear porch, and a full outdoor kitchen, making the home ideal for year-round enjoyment. With abundant storage and carefully planned features, this plan delivers warmth, flexibility, and lasting comfort.
House Plan Pricing
STEP 1 Select Your Package

PDF Single Build


Digital plans emailed to you in PDF format that allows for printing copies and sharing electronically with contractors, subs, decorators, and more. This package includes a license to build the home one time.

PDF Single Build $1,445
Most recommended package

5 Printed Sets + PDF


Includes 5 physical printed blueprint sets, shipped free via UPS within the U.S. Printed sets ship within 1 business day and are delivered within 3 – 5 business days. A complimentary PDF plan set is also emailed within 1 business day for easy sharing and local printing. These plans may be used to construct one home.

5 Printed Sets + PDF $1,695
5 Printed Sets + PDF

PDF Unlimited Build


Digital plans with an unlimited build license emailed in PDF format, that allows for printing copies on a home printer or local print shop and sharing with contractors, subs, decorators and more 

PDF Unlimited Build $2,145
Digital plans including unlimited build license

CAD + PDF Unlimited Build


This plan package is created in AutoCAD and delivered in .DWG format. CAD files are intended for use by design professionals, structural engineers, and builders to update plans for local building codes or to make revisions based on specific needs, lot requirements, and budget considerations. A complimentary PDF copy is included with this package for reference. CAD packages are delivered within 1 to 2 business days.
 
This package also comes with a multi-use building license, granting permission to construct the home an unlimited number of times, along with a copyright release for making revisions and printing unlimited copies.
 
For details on the specific CAD program used, please refer to the PLAN DETAILS section located above the floor plan on each plan page.

CAD + PDF Unlimited Build $2,545
2D electronic editable computer files
STEP 2 Need To Reverse This Plan?
STEP 3 CHOOSE YOUR FOUNDATION
STEP 4 OPTIONAL ADD-ONS
Subtotal:
$1445
FREE SHIPPING
 
Plan Details
See All Details
Finished Square Footage
2,379 Sq. Ft.
Main Level:
2,379 Sq. Ft.
Total:
Room Details
3
Bedrooms:
3
Full Baths:
1
Half Baths:
General House Information
1
Number of Stories:
91' 2"
Width:
53' 6"
Depth:
Single
Dwelling Number:
Unfinished Square Footage
795 Sq. Ft.
Garage:
22 Sq. Ft.
Storage:
1025 Sq. Ft.
Porch:
364 Sq. Ft.
Front Porch:
661 Sq. Ft.
Rear Porch:
GARAGE
Side
Garage Location:
3
Garage Size:
Exterior Style
Country
Farmhouse
Modern Farmhouse
Southern
Collections
Open Floor Plan
Outdoor Living
Split Bedroom
Foundation
Basement
Crawl Space
Slab
Walkout Basement
Framing Information
Stick
Roof Framing:
2x4
Exterior Wall Framing:
Roof Pitch
8/12
Primary:
3/12
Secondary:
4/12
Teritary:
Insulation (R)
House And Ceiling Heights
10
First Floor Ceiling:
27' 0"
Maximum House Height:
Key Features
Attached
Butler's Pantry
Covered Front Porch
Covered Rear Porch
Dining Room
Double Vanity Sink
Fireplace
Foyer
Great Room
Home Office
Kitchen Island
Laundry 1st Fl
L-Shaped
Primary Bdrm Main Floor
Mud Room
Open Floor Plan
Outdoor Kitchen
Outdoor Living Space
Peninsula / Eating Bar
Separate Tub and Shower
Side-entry
Split Bedrooms
Storage Space
Suited for corner lot
Vaulted Great Room/Living
Vaulted Primary
Walk-in Closet

Our Guarantees

  • Only the highest quality plans
  • Int’l Residential Code Compliant
  • Full structural details on all plans
  • Best plan price guarantee
  • Free modification Estimates
  • Builder-ready construction drawings
  • Expert advice from leading designers
  •  PDFs NOW!™ plans in minutes
  • 100% satisfaction guarantee
  • Free Home Building Organizer