15% off ALL House Plans Sitewide
15% off ALL House Plans Sitewide

House Plan: DFD-12039

See All 9 Photos > (photographs may reflect modified homes)
© copyright by designer
SQ FT
5,070
BEDS
5
BATHS
5.5
STORIES
2
CARS
3
HOUSE PLANS SALE 
START AT  $2,154.75
For questions and help, live chat, email or call us at 877-895-5299
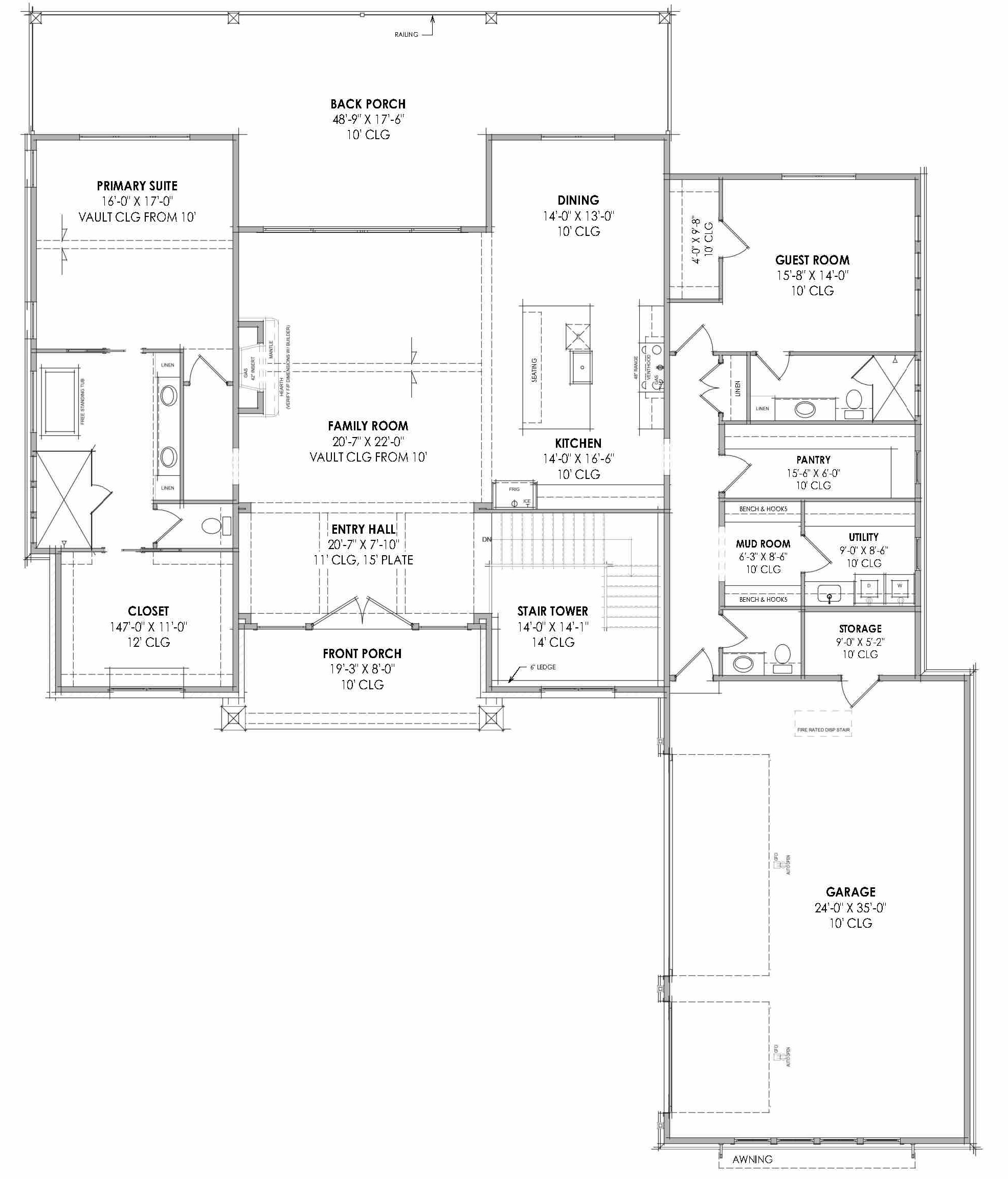
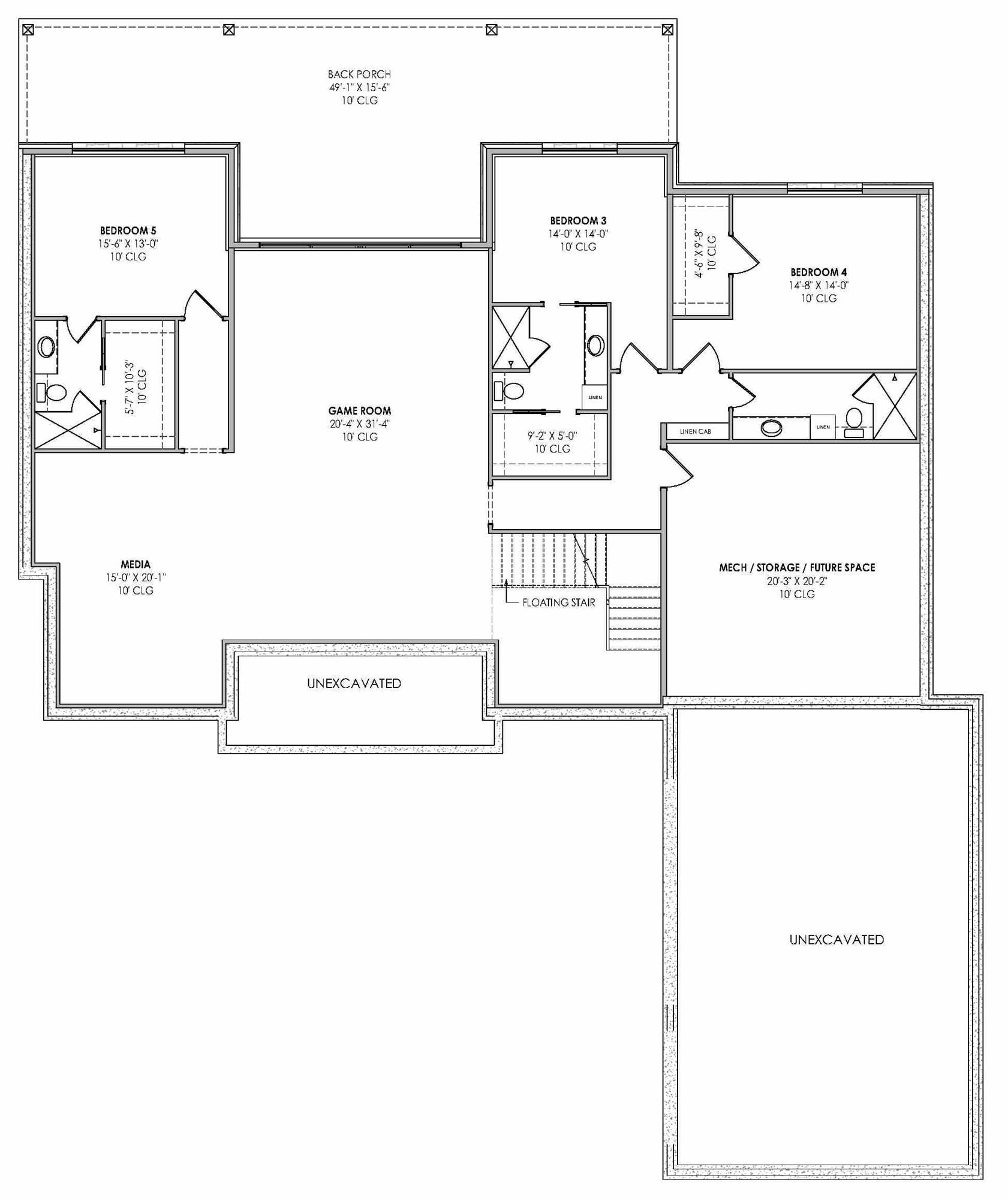
Floor Plans
Click to Zoom In on Floor Plan
 
About House Plan 12039:
With 5,070 square feet of heated living space, this home blends spaciousness with a warm and inviting atmosphere. The kitchen features an island, walk-in pantry, and an easy flow into the vaulted great room, creating a natural hub for daily life. A main-floor primary suite brings comfort with a walk-in closet and a well-appointed bath that includes a separate tub and shower. Split bedrooms on the main level give everyone room to unwind in their own quiet corner. The lower level adds even more function with a rec room, media room, and additional bedrooms that support entertaining or long-term guests. Multiple covered porches expand the living space outside, offering places to relax in every season. Thoughtful touches like a mud room, foyer, and vaulted ceilings make the layout feel open and practical. This home creates a welcoming environment perfect for gatherings, quiet evenings, and everything in between.
House Plan Pricing
STEP 1 Select Your Package

PDF Single Build


Digital plans emailed to you in PDF format that allows for printing copies and sharing electronically with contractors, subs, decorators, and more. This package includes a license to build the home one time.

PDF Single Build $2,535
Most recommended package

5 Printed Sets + PDF


Includes 5 physical printed blueprint sets, shipped free via UPS within the U.S. Printed sets ship within 1 business day and are delivered within 3 – 5 business days. A complimentary PDF plan set is also emailed within 1 business day for easy sharing and local printing. These plans may be used to construct one home.

5 Printed Sets + PDF $2,885
5 Printed Sets + PDF

PDF Unlimited Build


Digital plans with an unlimited build license emailed in PDF format, that allows for printing copies on a home printer or local print shop and sharing with contractors, subs, decorators and more 

PDF Unlimited Build $3,175
Digital plans including unlimited build license

CAD + PDF Unlimited Build


This plan package is created in AutoCAD and delivered in .DWG format. CAD files are intended for use by design professionals, structural engineers, and builders to update plans for local building codes or to make revisions based on specific needs, lot requirements, and budget considerations. A complimentary PDF copy is included with this package for reference. CAD packages are delivered within 1 to 2 business days.
 
This package also comes with a multi-use building license, granting permission to construct the home an unlimited number of times, along with a copyright release for making revisions and printing unlimited copies.
 
For details on the specific CAD program used, please refer to the PLAN DETAILS section located above the floor plan on each plan page.

CAD + PDF Unlimited Build $3,495
2D electronic editable computer files
STEP 2 Need To Reverse This Plan?
STEP 3 CHOOSE YOUR FOUNDATION
STEP 4 OPTIONAL ADD-ONS
Subtotal:
$2535
FREE SHIPPING
 
Plan Details
See All Details
Finished Square Footage
2,666 Sq. Ft.
Main Level:
2,404 Sq. Ft.
Lower Level:
5,070 Sq. Ft.
Total:
Room Details
5
Bedrooms:
5
Full Baths:
1
Half Baths:
General House Information
2
Number of Stories:
76' 6"
Width:
92' 1"
Depth:
Single
Dwelling Number:
Unfinished Square Footage
993 Sq. Ft.
Garage:
868 Sq. Ft.
Porch:
172 Sq. Ft.
Front Porch:
696 Sq. Ft.
Rear Porch:
674 Sq. Ft.
Deck:
GARAGE
Front
Garage Location:
3
Garage Size:
Exterior Style
Country
European
French Country
Ranch
Transitional
Collections
Luxury
Open Floor Plan
Outdoor Living
Split Bedroom
Foundation
Basement
Crawlspace
Monolithic Slab
Walkout Basement
Framing Information
Stick
Roof Framing:
2x6
Exterior Wall Framing:
Roof Pitch
10/12
Primary:
14/12
Secondary:
Insulation (R)
Per IRC Climate Zones
House And Ceiling Heights
10
First Floor Ceiling:
29' 8"
Maximum House Height:
Key Features
Attached
Courtyard/Motorcourt Entry
Covered Front Porch
Covered Rear Porch
Dining Room
Double Vanity Sink
Family Room
Fireplace
Foyer
Kitchen Island
Laundry 1st Fl
Library/Media Rm
L-Shaped
Primary Bdrm Main Floor
Mud Room
Open Floor Plan
Outdoor Living Space
Peninsula / Eating Bar
Rec Room
Separate Tub and Shower
Split Bedrooms
Suited for corner lot
Suited for narrow lot
Suited for sloping lot
Suited for view lot
Vaulted Ceilings
Vaulted Great Room/Living
Vaulted Primary
Walk-in Closet
Walk-in Pantry

Our Guarantees

  • Only the highest quality plans
  • Int’l Residential Code Compliant
  • Full structural details on all plans
  • Best plan price guarantee
  • Free modification Estimates
  • Builder-ready construction drawings
  • Expert advice from leading designers
  •  PDFs NOW!™ plans in minutes
  • 100% satisfaction guarantee
  • Free Home Building Organizer