House Plan: DFD-12121

See All 14 Photos > (photographs may reflect modified homes)
© copyright by designer
SQ FT
1,990
BEDS
3
BATHS
2.5
STORIES
1
CARS
2
PLANS FROM $1,395
For questions and help, live chat, email or call us at 877-895-5299
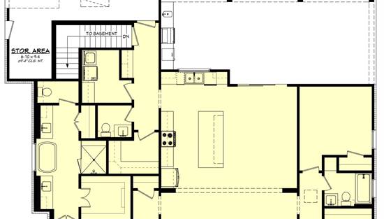
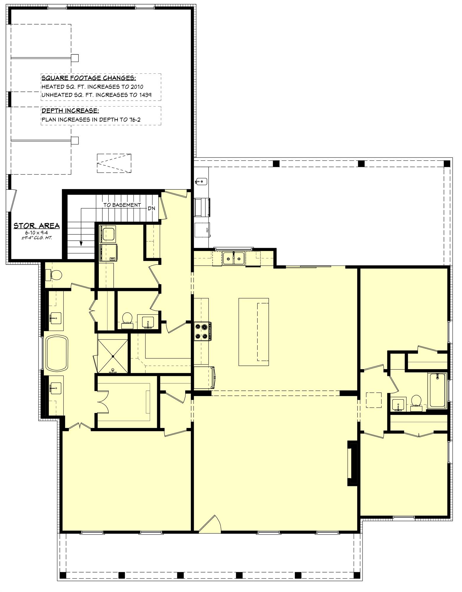
Floor Plans
Click to Zoom In on Floor Plan
 
About House Plan 12121:
With 1,990 square feet of heated living space, this home delivers 3 bedrooms and 2.5 baths in a layout built for modern living. The open floor plan connects the great room, dining area, and kitchen, creating a comfortable space for both everyday life and entertaining. A large island, eating bar, and butler’s pantry make the kitchen as practical as it is inviting. The main-floor primary suite offers privacy and comfort with a spacious walk-in closet and a well-appointed bath. Covered front and rear porches provide generous outdoor living areas, complete with an outdoor kitchen for easy hosting. A rear-facing garage keeps the home’s curb presence clean while offering convenient access through the mud room. This design combines thoughtful details with a relaxed, livable flow that feels welcoming from the moment you step inside.
House Plan Pricing
STEP 1 Select Your Package

PDF Single Build


Digital plans emailed to you in PDF format that allows for printing copies and sharing electronically with contractors, subs, decorators, and more. This package includes a license to build the home one time.

PDF Single Build $1,395
Most recommended package

5 Printed Sets + PDF


Includes 5 physical printed blueprint sets, shipped free via UPS within the U.S. Printed sets ship within 1 business day and are delivered within 3 – 5 business days. A complimentary PDF plan set is also emailed within 1 business day for easy sharing and local printing. These plans may be used to construct one home.

5 Printed Sets + PDF $1,645
5 Printed Sets + PDF

PDF Unlimited Build


Digital plans with an unlimited build license emailed in PDF format, that allows for printing copies on a home printer or local print shop and sharing with contractors, subs, decorators and more 

PDF Unlimited Build $2,095
Digital plans including unlimited build license

CAD + PDF Unlimited Build


This plan package is created in AutoCAD and delivered in .DWG format. CAD files are intended for use by design professionals, structural engineers, and builders to update plans for local building codes or to make revisions based on specific needs, lot requirements, and budget considerations. A complimentary PDF copy is included with this package for reference. CAD packages are delivered within 1 to 2 business days.
 
This package also comes with a multi-use building license, granting permission to construct the home an unlimited number of times, along with a copyright release for making revisions and printing unlimited copies.
 
For details on the specific CAD program used, please refer to the PLAN DETAILS section located above the floor plan on each plan page.

CAD + PDF Unlimited Build $2,495
2D electronic editable computer files
STEP 2 Need To Reverse This Plan?
STEP 3 CHOOSE YOUR FOUNDATION
STEP 4 OPTIONAL ADD-ONS
Subtotal:
$1395
FREE SHIPPING
 
Plan Details
See All Details
Finished Square Footage
1,990 Sq. Ft.
Main Level:
1,990 Sq. Ft.
Total:
Room Details
3
Bedrooms:
2
Full Baths:
1
Half Baths:
General House Information
1
Number of Stories:
58' 10"
Width:
71' 10"
Depth:
Single
Dwelling Number:
Unfinished Square Footage
659 Sq. Ft.
Garage:
693 Sq. Ft.
Porch:
240 Sq. Ft.
Front Porch:
453 Sq. Ft.
Rear Porch:
GARAGE
Rear
Garage Location:
2
Garage Size:
Exterior Style
Cottage
Country
Farmhouse
Modern Farmhouse
Ranch
Southern
Collections
Open Floor Plan
Outdoor Living
Split Bedroom
Foundation
Basement
Crawl Space
Slab
Walkout Basement
Framing Information
Stick
Roof Framing:
2x4
Exterior Wall Framing:
Roof Pitch
7/12
Primary:
10/12
Secondary:
Insulation (R)
House And Ceiling Heights
9
First Floor Ceiling:
27' 0"
Maximum House Height:
Key Features
Attached
Butler's Pantry
Covered Front Porch
Covered Rear Porch
Dining Room
Double Vanity Sink
Fireplace
Great Room
Kitchen Island
Laundry 1st Fl
L-Shaped
Primary Bdrm Main Floor
Mud Room
Open Floor Plan
Outdoor Kitchen
Outdoor Living Space
Peninsula / Eating Bar
Separate Tub and Shower
Side-entry
Split Bedrooms
Storage Space
Suited for corner lot
Walk-in Closet

Our Guarantees

  • Only the highest quality plans
  • Int’l Residential Code Compliant
  • Full structural details on all plans
  • Best plan price guarantee
  • Free modification Estimates
  • Builder-ready construction drawings
  • Expert advice from leading designers
  •  PDFs NOW!™ plans in minutes
  • 100% satisfaction guarantee
  • Free Home Building Organizer

See terms opt out anytime