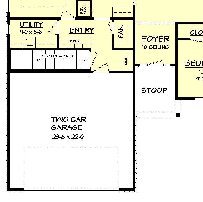
With 1,736 square feet of heated space, this home balances open living with smart functionality. A welcoming foyer leads into the great room, where the open layout connects seamlessly to the dining area and kitchen. The kitchen is well equipped with an island, peninsula seating, a breakfast nook, and a walk-in pantry that supports both daily routines and entertaining. The main-floor primary bedroom offers a peaceful retreat with a spacious walk-in closet and a private bath with a separate tub and shower. Three secondary bedrooms are positioned away from the primary suite to enhance privacy, while the laundry room and mud room add everyday convenience. Covered porches and generous storage throughout make this home feel comfortable, organized, and ready for daily life.