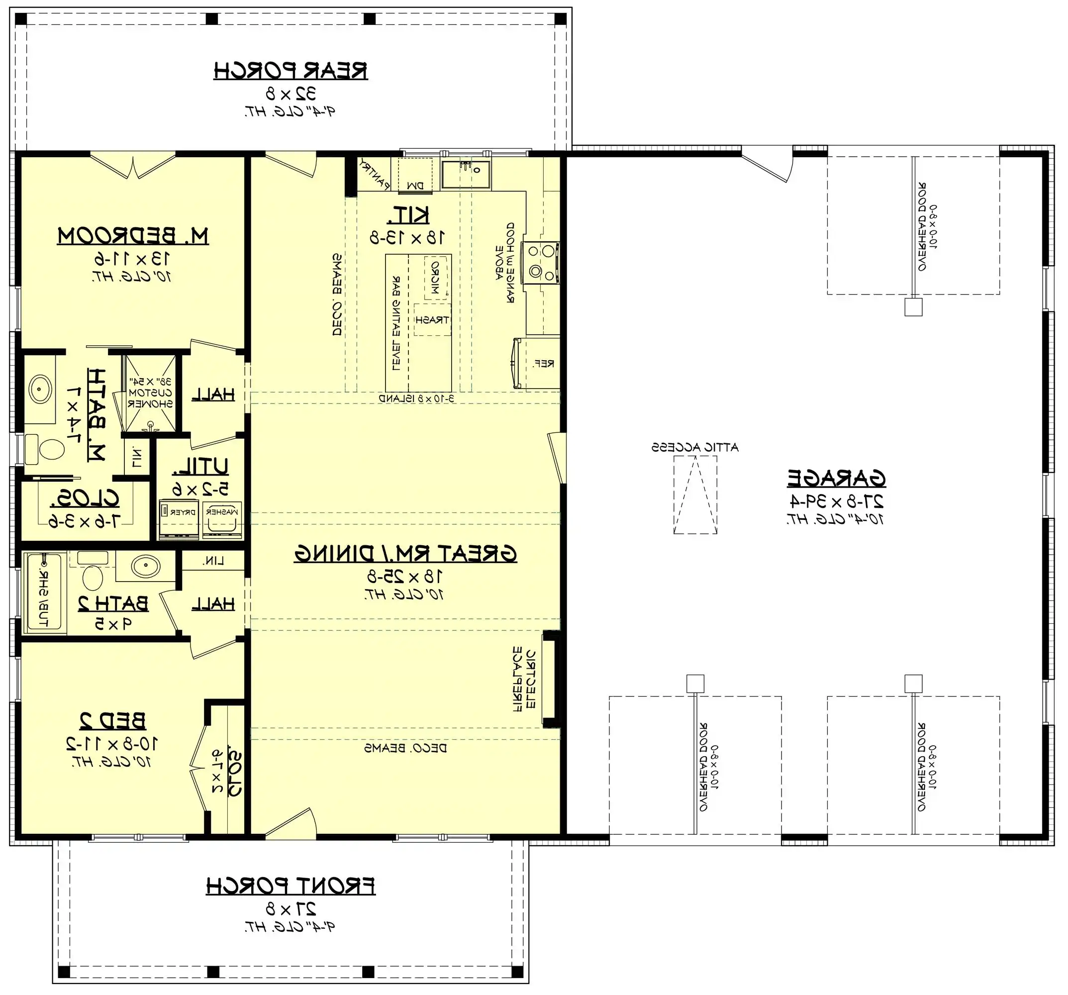
This sophisticated 2,872-square-foot architectural design prioritizes a harmonious flow between its interior comforts and the great outdoors. The central living area is defined by a bright, open floor plan where the great room and its inviting fireplace serve as a natural gathering hub. Culinary enthusiasts will appreciate the L-shaped kitchen, which is fully equipped with a walk-in pantry and a versatile peninsula eating bar. The main floor is anchored by a luxurious primary suite that offers total privacy and a generous walk-in closet. Step outside to enjoy the extensive covered front and rear porches, which significantly expand the home's functional living space. For added convenience, the first-floor laundry and a massive three-car garage provide the utility needed for a modern lifestyle. Designed specifically to accommodate a corner lot, the home features a grand 60-foot profile and 10-foot ceilings that enhance the sense of space. It is a perfect sanctuary for those seeking a single-story layout that doesn't compromise on style or structure.
This sophisticated 2,872-square-foot architectural design prioritizes a harmonious flow between its interior comforts and the great outdoors. The central living area is defined by a bright, open floor plan where the great room and its inviting fireplace serve as a natural gathering hub. Culinary enthusiasts will appreciate the L-shaped kitchen, which is fully equipped with a walk-in pantry and a versatile peninsula eating bar. The main floor is anchored by a luxurious primary suite that offers total privacy and a generous walk-in closet. Step outside to enjoy the extensive covered front and rear porches, which significantly expand the home's functional living space. For added convenience, the first-floor laundry and a massive three-car garage provide the utility needed for a modern lifestyle. Designed specifically to accommodate a corner lot, the home features a grand 60-foot profile and 10-foot ceilings that enhance the sense of space. It is a perfect sanctuary for those seeking a single-story layout that doesn't compromise on style or structure.