20% Off House Plans Sitewide Ends Sunday
20% Off House Plans Sitewide Ends Sunday

House Plan: DFD-1716

See All 5 Photos > (photographs may reflect modified homes)
© copyright by designer
SQ FT
2,700
BEDS
3
BATHS
2.5
STORIES
2
CARS
2
HOUSE PLANS SALE 
START AT  $1,000.00
For questions and help, live chat, email or call us at 877-895-5299
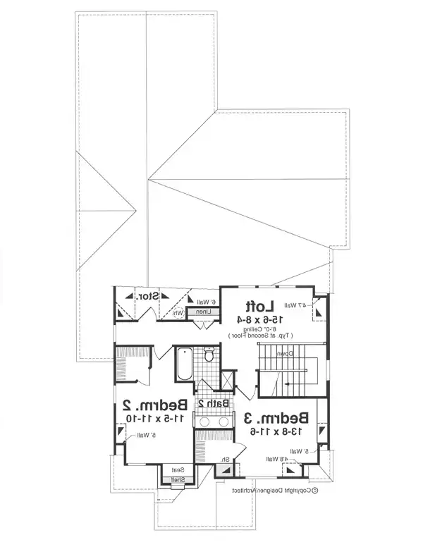
Floor Plans
Click to Zoom In on Floor Plan
 
About House Plan 1716:
At less than 40 ft. wide, this Tudor cottage is ideal for narrow lot communities.

The master suite, located on the first floor, provides all that is needed for the empty nester to age in place.

An open keeping room provides casual living space adjacent to the open kitchen, while the front of the house keeps the formal elements still desired by the move down market.

The loft at the top of the stairs offers the perfect extra getaway for any visitors who might come to stay, whether it be grandchildren or good friends.

The secondary bedrooms enjoy private entrances, but share a bath that is accessible from each room.
House Plan Pricing
STEP 1 Select Your Package

PDF Bid Set


Home plans stamped "NOT FOR CONSTRUCTION" for cost estimating and bidding purposes only; a minimum 5 set plan package must be purchased within 90 days for a license to build plan set; a credit will be applied towards your house plan upgrade

PDF Bid Set $800
Immediate Delivery!
Digital set of plans for bidding purposes only

PDF Single Build


Digital plans emailed to you in PDF format that allows for printing copies and sharing electronically with contractors, subs, decorators, and more. This package includes a license to build the home one time.

PDF Single Build $1,250
Immediate Delivery!
Most recommended package

5 Printed Sets


Five Printed Sets of Residential Construction Drawings are typically 24” x 36” documents and come with a license to construct a single residence shipped to a physical address. Keep in mind PDF Plan Packages are our most popular choice which allows you to print as many copies as you need and to electronically send files to your builder, subcontractors, etc.

5 Printed Sets $1,350
Five printed sets of house plans
STEP 2 CHOOSE YOUR FOUNDATION
STEP 3 OPTIONAL ADD-ONS
Subtotal:
$1250
FREE SHIPPING
 
Plan Details
See All Details
Finished Square Footage
1,892 Sq. Ft.
Main Level:
808 Sq. Ft.
Upper Level:
2,700 Sq. Ft.
Total:
Room Details
3
Bedrooms:
2
Full Baths:
1
Half Baths:
General House Information
2
Number of Stories:
39' 6"
Width:
75' 6"
Depth:
Single
Dwelling Number:
2nd Floor
Bonus Access:
Unfinished Square Footage
408 Sq. Ft.
Garage:
56 Sq. Ft.
Porch:
283 Sq. Ft.
Patio:
GARAGE
Rear
Garage Location:
2
Garage Size:
Exterior Style
Cottage
European
Collections
Open Floor Plan
PDFs Fast!
Split Bedroom
Foundation
Slab
Framing Information
Stick
Roof Framing:
2x4
Exterior Wall Framing:
Roof Pitch
12/12
Primary:
14/12
Gable:
4/12
Dormer:
Roof Load
20
Live:
10
Dead:
Insulation (R)
Per IRC Climate Zones
House And Ceiling Heights
10
First Floor Ceiling:
8
Second Floor Ceiling:
29' 0"
Maximum House Height:
Key Features
Attached
Basement
Covered Front Porch
Dining Room
Double Vanity Sink
Family Room
Fireplace
Formal LR
His and Hers Primary Closets
Kitchen Island
Laundry 1st Fl
Loft / Balcony
Primary Bdrm Main Floor
Open Floor Plan
Rear-entry
Separate Tub and Shower
Slab
Split Bedrooms
Storage Space
Suited for narrow lot
Suited for view lot
Unfinished Space
Vaulted Ceilings
Walk-in Closet
Walk-in Pantry

Our Guarantees

  • Only the highest quality plans
  • Int’l Residential Code Compliant
  • Full structural details on all plans
  • Best plan price guarantee
  • Free modification Estimates
  • Builder-ready construction drawings
  • Expert advice from leading designers
  •  PDFs NOW!™ plans in minutes
  • 100% satisfaction guarantee
  • Free Home Building Organizer