House Plan: DFD-2092

See All 3 Photos > (photographs may reflect modified homes)
© copyright by designer
SQ FT
3,973
BEDS
6
BATHS
5
STORIES
2
CARS
3
PLANS FROM $2,475
For questions and help, live chat, email or call us at 877-895-5299
Floor Plans
Click to Zoom In on Floor Plan
 
About House Plan 2092:
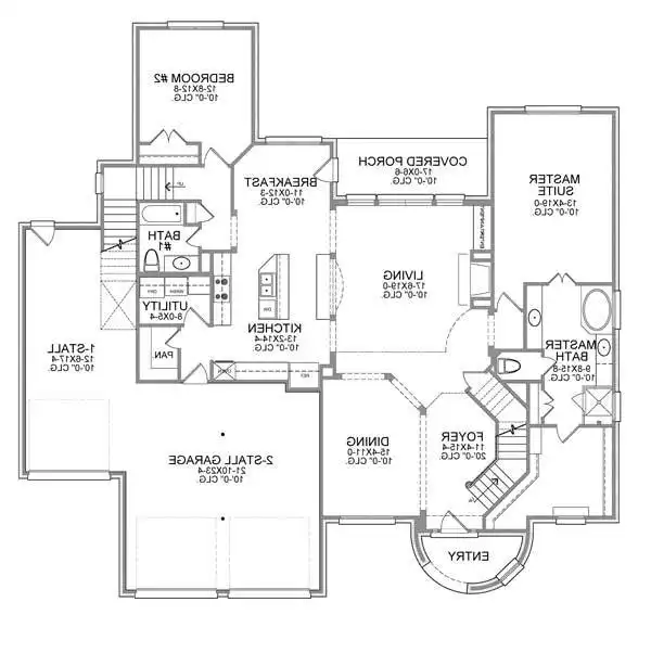
House Plan 2092 showcases European curb appeal with a turreted entry and stone accents. Inside, a dramatic foyer leads to an open kitchen with island, breakfast nook, and easy flow to the covered back porch. The main level includes a private primary bedroom suite plus a convenient second bedroom and bath near the foyer. Upstairs offers flexible living with a loft/balcony open to below, a separate family room, three secondary bedrooms, and a media room that can serve as Bedroom 6. Storage is plentiful with walk-ins, linen closets, and dedicated attic/low storage. A front-entry 3-car garage supports daily life, with first-floor laundry and a mud entry keeping things tidy. With 6 bedrooms and 5 baths across 3,973 heated sq. ft., this plan fits large or growing households. Covered front and rear porches complete a home equally suited to entertaining and everyday comfort.
House Plan Pricing
STEP 1 Select Your Package

PDF Bid Set


Home plans stamped "NOT FOR CONSTRUCTION" for cost estimating and bidding purposes only; a minimum 5 set plan package must be purchased within 90 days for a license to build plan set; a credit will be applied towards your house plan upgrade

PDF Bid Set $1,500
Digital set of plans for bidding purposes only

PDF Single Build


Digital plans emailed to you in PDF format that allows for printing copies and sharing electronically with contractors, subs, decorators, and more. This package includes a license to build the home one time.

PDF Single Build $2,475
Most recommended package

PDF + MOD License Single Build


Digital plans emailed to you in PDF format that allows for printing copies and sharing electronically with contractors, subs, decorators, and more. This package includes a modification license to build the home one time.
PDF + MOD License Single Build $3,595
PDF + MOD License Single Build

CAD + PDF Single Build


This plan package is created in AutoCAD and delivered in .DWG format. CAD files are intended for use by design professionals, structural engineers, and builders to update plans for local building codes or to make revisions based on specific needs, lot requirements, and budget considerations. A complimentary PDF copy is included with this package for reference. CAD packages are delivered within 1 to 2 business days.
 
This package also comes with a copyright release for making revisions and printing unlimited copies.

For details on the specific CAD program used, please refer to the PLAN DETAILS section located above the floor plan on each plan page.

CAD + PDF Single Build $3,900
2D electronic editable computer files
STEP 2 Need To Reverse This Plan?
STEP 3 CHOOSE YOUR FOUNDATION
STEP 4 OPTIONAL ADD-ONS
Subtotal:
$2475
FREE SHIPPING
 
Plan Details
See All Details
Finished Square Footage
2,202 Sq. Ft.
Main Level:
1,771 Sq. Ft.
Upper Level:
3,973 Sq. Ft.
Total:
Room Details
6
Bedrooms:
5
Full Baths:
General House Information
2
Number of Stories:
67' 8"
Width:
64' 8"
Depth:
Single
Dwelling Number:
Unfinished Square Footage
908 Sq. Ft.
Garage:
180 Sq. Ft.
Porch:
GARAGE
Front
Garage Location:
3
Garage Size:
Exterior Style
Country
European
French Country
Lake
Southern
Collections
Kitchens
Luxury
Mountain
Open Floor Plan
OtherCustom
Split Bedroom
Foundation
Basement
Crawl Space
Daylight Basement
Slab
Framing Information
Stick
Roof Framing:
2x4
Exterior Wall Framing:
Insulation (R)
0
Exterior Wall:
0
Interior Wall:
0
Ceiling:
0
Floor:
House And Ceiling Heights
10
First Floor Ceiling:
9
Second Floor Ceiling:
Key Features
2 Story Volume
Attached
Basement
Country Kitchen
Covered Front Porch
Covered Rear Porch
Crawlspace
Dining Room
Double Vanity Sink
Family Room
Fireplace
Formal LR
Front-entry
Home Office
Kitchen Island
Laundry 1st Fl
Library/Media Rm
Loft / Balcony
Primary Bdrm Main Floor
Mud Room
Nook / Breakfast Area
Open Floor Plan
Peninsula / Eating Bar
RV Garage
Separate Tub and Shower
Slab
Split Bedrooms
Storage Space
Walk-in Closet
Walk-in Pantry

Our Guarantees

  • Only the highest quality plans
  • Int’l Residential Code Compliant
  • Full structural details on all plans
  • Best plan price guarantee
  • Free modification Estimates
  • Builder-ready construction drawings
  • Expert advice from leading designers
  •  PDFs NOW!™ plans in minutes
  • 100% satisfaction guarantee
  • Free Home Building Organizer