17% off ALL House Plans Sitewide
17% off ALL House Plans Sitewide

House Plan: DFD-2358

See All 2 Photos > (photographs may reflect modified homes)
© copyright by designer
SQ FT
1,466
BEDS
3
BATHS
2
STORIES
1
CARS
2
HOUSE PLANS SALE 
START AT  $788.50
For questions and help, live chat, email or call us at 877-895-5299
Floor Plans
Click to Zoom In on Floor Plan
 
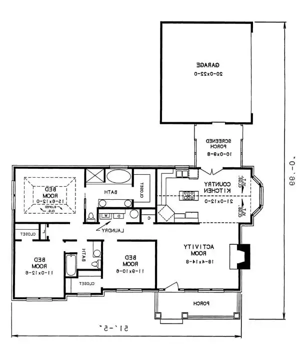
About House Plan 2358:
A distinctive porch enriches the look of this comfortable home. Entry is direct into the spacious and stately great room, accented with a central fireplace.
The huge country kitchen is lavished with a bay window for elegant light and a vaulted ceiling for added visual space. An island cook top provides more countertop room for gourmet meal preparation. Counters wrap three sides of the room with the oven in the corner adding appeal.
Via French doors, a screened porch acts as a breezeway leading to the double garage at the rear of the home.
Laundry facilities are located in the bed room wing of the home, but still convenient to the kitchen as well.
Three bed rooms are served by two generous baths. Each bed room includes a roomy walk-in closet.
A tray ceiling soars aloft in the master suite, with an adjacent romantic bath including a sunlit soaking tub.
Multiple offsets on the exterior help create dramatic room sizes inside. The distinctive gable roof lines are accented by horizontal siding and shuttered windows.
House Plan Pricing
STEP 1 Select Your Package

PDF Single Build


Digital plans emailed to you in PDF format that allows for printing copies and sharing electronically with contractors, subs, decorators, and more. This package includes a license to build the home one time.

PDF Single Build $950
Immediate Delivery!
Most recommended package
STEP 2 Need To Reverse This Plan?
STEP 3 CHOOSE YOUR FOUNDATION
STEP 4 OPTIONAL ADD-ONS
Subtotal:
$950
FREE SHIPPING
 
Plan Details
See All Details
Finished Square Footage
1,466 Sq. Ft.
Main Level:
1,466 Sq. Ft.
Total:
Room Details
3
Bedrooms:
2
Full Baths:
General House Information
1
Number of Stories:
51' 5"
Width:
66' 0"
Depth:
Single
Dwelling Number:
None
Bonus Access:
Unfinished Square Footage
468 Sq. Ft.
Garage:
114 Sq. Ft.
Porch:
GARAGE
Rear
Garage Location:
2
Garage Size:
Exterior Style
Cottage
Country
Collections
Affordable
Exclusive
First Home
Open Floor Plan
Foundation
Crawl Space
Slab
Framing Information
Stick
Roof Framing:
2x4
Exterior Wall Framing:
Roof Pitch
9/12
Primary:
Roof Load
20
Live:
10
Dead:
80
Wind:
Insulation (R)
17
Exterior Wall:
0
Interior Wall:
30
Ceiling:
13
Floor:
House And Ceiling Heights
9
First Floor Ceiling:
21' 8"
Maximum House Height:
Key Features
Attached
Breezeway
Country Kitchen
Covered Front Porch
Crawlspace
Double Vanity Sink
Fireplace
Great Room
Kitchen Island
Laundry 1st Fl
Primary Bdrm Main Floor
Open Floor Plan
Rear Porch
Screened Porch/Sunroom
Separate Tub and Shower
Side-entry
Slab
Suited for corner lot
Vaulted Ceilings
Walk-in Closet

Our Guarantees

  • Only the highest quality plans
  • Int’l Residential Code Compliant
  • Full structural details on all plans
  • Best plan price guarantee
  • Free modification Estimates
  • Builder-ready construction drawings
  • Expert advice from leading designers
  •  PDFs NOW!™ plans in minutes
  • 100% satisfaction guarantee
  • Free Home Building Organizer