17% off ALL House Plans Sitewide
17% off ALL House Plans Sitewide

House Plan: DFD-3291

See All 2 Photos > (photographs may reflect modified homes)
© copyright by designer
SQ FT
1,495
BEDS
4
BATHS
3
STORIES
1
CARS
2
HOUSE PLANS SALE 
START AT  $788.50
For questions and help, live chat, email or call us at 877-895-5299
Floor Plans
Click to Zoom In on Floor Plan
 
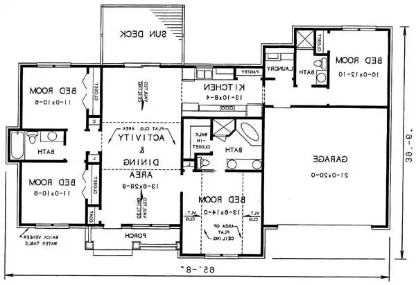
About House Plan 3291:
Well-placed rooms keep halls to a minimum and allow the most practical use of interior space. The casual atmosphere of a sheltering front porch allows entry into the central element of the home, the gathering room, which is both activity room and dining area. A vaulted ceiling adds just the right touch and sliding glass doors lead to a rear sun deck, offering a view of nature. Two bedrooms comprise one wing of the home, each sized for comfort and conveniently placed central to a full hall bath. A brilliant window treatment captures the sun's rays into the tall vaulted ceiling of the master bedroom. Dramatic impressions are created in the elegantly appointed garden bath, with corner tub, double vanity and separate shower. A large walk-in closet is indicated. The activity room easily accesses the corridor style kitchen. A huge pantry is placed for convenience. Nearby is the laundry room and access to a double garage. A multi-purpose "extra" bedroom is behind the garage, creating luxurious privacy. This room could be an in-law suite, home office or guest bedroom. The possibilities are limitless. Simple multiple gable rooflines and a combination of horizontal siding and brick enhance the exterior of the home.
House Plan Pricing
STEP 1 Select Your Package

PDF Single Build


Digital plans emailed to you in PDF format that allows for printing copies and sharing electronically with contractors, subs, decorators, and more. This package includes a license to build the home one time.

PDF Single Build $950
Most recommended package
STEP 2 Need To Reverse This Plan?
STEP 3 CHOOSE YOUR FOUNDATION
STEP 4 OPTIONAL ADD-ONS
Subtotal:
$950
FREE SHIPPING
 
Plan Details
See All Details
Finished Square Footage
1,495 Sq. Ft.
Main Level:
1,495 Sq. Ft.
Total:
Room Details
4
Bedrooms:
3
Full Baths:
General House Information
1
Number of Stories:
65' 8"
Width:
39' 6"
Depth:
Single
Dwelling Number:
Unfinished Square Footage
GARAGE
Front
Garage Location:
2
Garage Size:
Exterior Style
Cottage
Country
Collections
Affordable
Exclusive
First Home
Old House Classics
Split Bedroom
Foundation
Crawl Space
Slab
Framing Information
Stick
Roof Framing:
2x4
Exterior Wall Framing:
Roof Pitch
10/12
Primary:
Roof Load
20
Live:
10
Dead:
80
Wind:
Insulation (R)
17
Exterior Wall:
0
Interior Wall:
30
Ceiling:
13
Floor:
House And Ceiling Heights
9
First Floor Ceiling:
23' 0"
Maximum House Height:
Key Features
Attached
Covered Front Porch
Crawlspace
Deck
Double Vanity Sink
Front Porch
Front-entry
Great Room
Guest Suite
Home Office
In-law Suite
Laundry 1st Fl
Primary Bdrm Main Floor
Separate Tub and Shower
Slab
Split Bedrooms
Vaulted Ceilings
Walk-in Closet

Our Guarantees

  • Only the highest quality plans
  • Int’l Residential Code Compliant
  • Full structural details on all plans
  • Best plan price guarantee
  • Free modification Estimates
  • Builder-ready construction drawings
  • Expert advice from leading designers
  •  PDFs NOW!™ plans in minutes
  • 100% satisfaction guarantee
  • Free Home Building Organizer