20% off ALL House Plans Sitewide
20% off ALL House Plans Sitewide

House Plan: DFD-4114

See All 1 Photos > (photographs may reflect modified homes)
© copyright by designer
SQ FT
3,164
BEDS
4
BATHS
4
STORIES
2
CARS
3
HOUSE PLANS SALE 
START AT  $1,040.00
For questions and help, live chat, email or call us at 877-895-5299
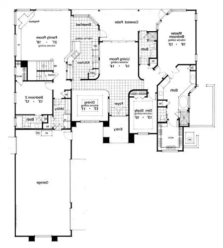
Floor Plans
Click to Zoom In on Floor Plan
 
House Plan 4114
House Plan Pricing
STEP 1 Select Your Package

PDF Bid Set


Home plans stamped "NOT FOR CONSTRUCTION" for cost estimating and bidding purposes only; a minimum 5 set plan package must be purchased within 90 days for a license to build plan set; a credit will be applied towards your house plan upgrade

PDF Bid Set $700
Digital set of plans for bidding purposes only

PDF Single Build


Digital plans emailed to you in PDF format that allows for printing copies and sharing electronically with contractors, subs, decorators, and more. This package includes a license to build the home one time.

PDF Single Build $1,300
Most recommended package

5 Printed Sets


Five Printed Sets of Residential Construction Drawings are typically 24” x 36” documents and come with a license to construct a single residence shipped to a physical address. Keep in mind PDF Plan Packages are our most popular choice which allows you to print as many copies as you need and to electronically send files to your builder, subcontractors, etc.

5 Printed Sets $1,500
Five printed sets of house plans

5 Printed Sets + PDF


Digital plan emailed to you in PDF format that allows for printing copies on a home printer or local print shop and sharing with contractors, subs, decorators, and more. PLUS five printed sets shipped and delivered 3-5 business days.

5 Printed Sets + PDF $1,650
Digital plans plus 5 printed sets

CAD + PDF Single Build


CAD files are a complete set of construction drawings delivered electronically. They can be used for any type of modification—including major design changes and engineering—and include a release granting permission to modify the plan. Most CAD plan orders are emailed the same or next business day.
 
This package also comes with a PDF set of plans and a copyright release for making modifications and printing unlimited copies.
 
CAD files are provided in .dwg format. For details on the specific CAD program used, please refer to the PLAN DETAILS section located above the floor plan on each plan’s page.

CAD + PDF Single Build $2,600
2D electronic editable computer files
STEP 2 CHOOSE YOUR FOUNDATION
STEP 3 OPTIONAL ADD-ONS
Subtotal:
$1300
FREE SHIPPING
 
Plan Details
See All Details
Finished Square Footage
2,624 Sq. Ft.
Main Level:
540 Sq. Ft.
Upper Level:
3,164 Sq. Ft.
Total:
Room Details
4
Bedrooms:
4
Full Baths:
General House Information
2
Number of Stories:
66' 0"
Width:
83' 0"
Depth:
Single
Dwelling Number:
Unfinished Square Footage
802 Sq. Ft.
Garage:
GARAGE
Side
Garage Location:
3
Garage Size:
Exterior Style
Beach
Contemporary
Mediterranean
Collections
Florida
Luxury
Foundation
*Slab (Standard)
Framing Information
Truss
Roof Framing:
2x4
Exterior Wall Framing:
Insulation (R)
11
Exterior Wall:
0
Interior Wall:
30
Ceiling:
0
Floor:
Facade
Stucco
Key Features
4 Bedrooms
4 Full Baths
Arches
Attached
Built - In Media with Fireplace
Built - In Niches
Built - In Plant Shelves
Built - In Vanity Primary Bath
Combination Kitchen / Family Room
Covered Patio Vaulted
Den / Study Possible 5th Bedroom
Extra Large Primary Closet with Built-in Shelves
Family Room Open to Second Floor
Formal Dining Room - 14' Ceiling
Formal Living Room - 14' Ceiling
Foyer Ceiling 14 feet
Grand Primary Suite with Tray Ceiling
Kitchen - Nook Volume Ceilings
Linen Closets
Optional - Skylites Patio
Private Garden View / Primary Bath
Rear Porch
Separate Tub and Shower
Side-entry
Slab
Vaulted Ceilings
Walk-in Pantry

Our Guarantees

  • Only the highest quality plans
  • Int’l Residential Code Compliant
  • Full structural details on all plans
  • Best plan price guarantee
  • Free modification Estimates
  • Builder-ready construction drawings
  • Expert advice from leading designers
  •  PDFs NOW!™ plans in minutes
  • 100% satisfaction guarantee
  • Free Home Building Organizer