22% off ALL House Plans Sitewide
22% off ALL House Plans Sitewide

House Plan: DFD-6682

See All 8 Photos > (photographs may reflect modified homes)
© copyright by designer
SQ FT
2,016
BEDS
3
BATHS
2
STORIES
1.5
CARS
4
HOUSE PLANS SALE 
START AT  $858.00
For questions and help, live chat, email or call us at 877-895-5299
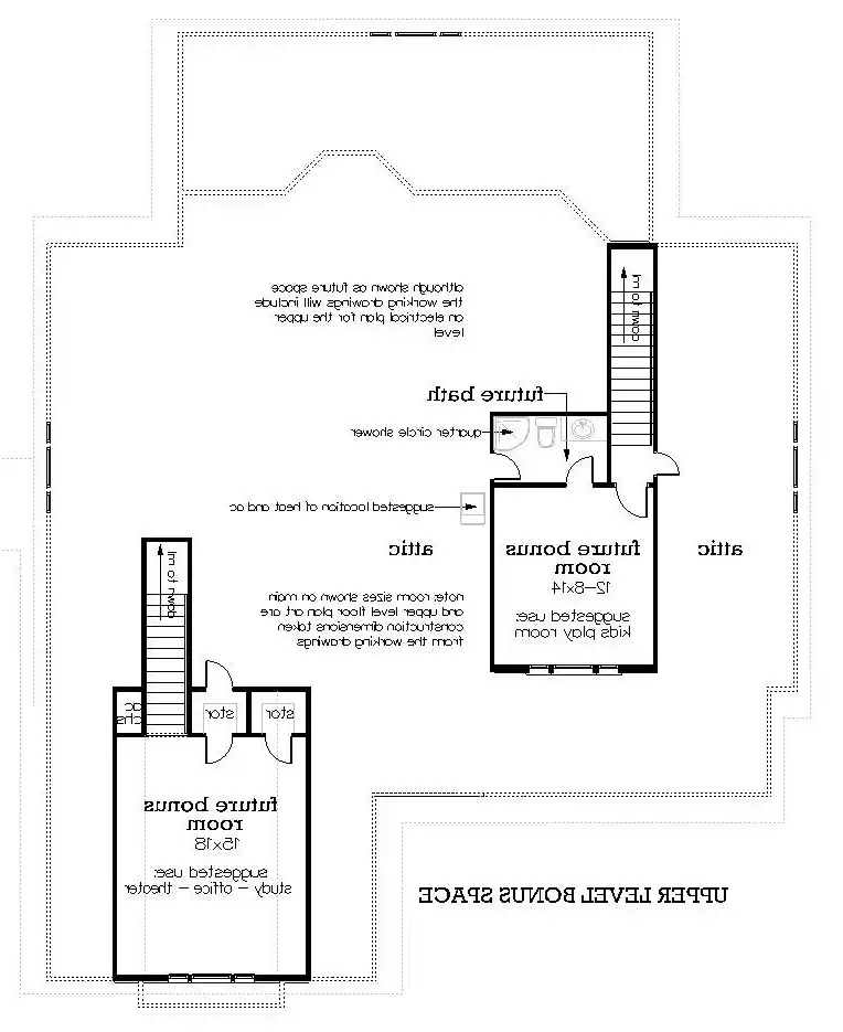
Floor Plans
Click to Zoom In on Floor Plan
 
About House Plan 6682:
2,016 square feet of luxurious, stylish, and comfortable living space make up the magnificent and trendy 3 bedrooms, 2 bathroom house plan. The covered front porch is perfect for morning coffee and outside meetings. This house is ideal for large families or those who like entertaining, featuring a total of 3 bedrooms, 3.5 bathrooms, and additional bonus areas. The kitchen is a chef's delight with plenty of workspace, a large island, and top-of-the-line appliances all open to the main living space and breakfast nook. The master suite contains a spacious bedroom, a spa-like bathroom, and a big walk-in closet with immediate access to the laundry room or a private staircase leading to your personal office space or nursery above the garage. The remaining bedrooms are likewise spacious and come with large closets and lots of windows for natural light. In addition to the featured 2-car detached garage design, which is great for customers who have a workshop or multiple vehicles, the 2-car connected garage includes a ton of storage space.
House Plan Pricing
STEP 1 Select Your Package

PDF Bid Set


Home plans stamped "NOT FOR CONSTRUCTION" for cost estimating and bidding purposes only; a minimum 5 set plan package must be purchased within 90 days for a license to build plan set; a credit will be applied towards your house plan upgrade

PDF Bid Set $900
Immediate Delivery!
Digital set of plans for bidding purposes only

PDF Single Build


Digital plans emailed to you in PDF format that allows for printing copies and sharing electronically with contractors, subs, decorators, and more. This package includes a license to build the home one time.

PDF Single Build $1,100
Immediate Delivery!
Most recommended package

4 Printed Sets


Four printed sets of construction drawings shipped and received in 3-5 business days

4 Printed Sets $1,185
Four printed sets of house plans

5 Printed Sets


Five Printed Sets of Residential Construction Drawings are typically 24” x 36” documents and come with a license to construct a single residence shipped to a physical address. Keep in mind PDF Plan Packages are our most popular choice which allows you to print as many copies as you need and to electronically send files to your builder, subcontractors, etc.

5 Printed Sets $1,230
Five printed sets of house plans

8 Printed Sets


Eight Printed Sets of Construction Drawings, typically 24” x 36” documents, with a license to construct a single residence shipped to your physical address. PDF Plan Packages are our most popular choice which allows you to print as many copies as you need and to electronically send files to your builder, subcontractors, bank/mortgage reps, material stores, decorators and more.

8 Printed Sets $1,340
Eight printed sets of house plans

CAD + PDF Single Build


CAD files are a complete set of construction drawings delivered electronically. They can be used for any type of modification—including major design changes and engineering—and include a release granting permission to modify the plan. Most CAD plan orders are emailed the same or next business day.
 
This package also comes with a PDF set of plans and a copyright release for making modifications and printing unlimited copies.
 
CAD files are provided in .dwg format. For details on the specific CAD program used, please refer to the PLAN DETAILS section located above the floor plan on each plan’s page.

CAD + PDF Single Build $2,100
2D electronic editable computer files
STEP 2 Need To Reverse This Plan?
STEP 3 CHOOSE YOUR FOUNDATION
STEP 4 OPTIONAL ADD-ONS
Subtotal:
$1100
FREE SHIPPING

Note: E
 
Plan Details
See All Details
Finished Square Footage
2,016 Sq. Ft.
Main Level:
2,016 Sq. Ft.
Total:
Room Details
3
Bedrooms:
2
Full Baths:
General House Information
1.5
Number of Stories:
60'
Width:
74'
Depth:
Single
Dwelling Number:
2nd Floor
Bonus Access:
Unfinished Square Footage
633 Sq. Ft.
Garage:
695 Sq. Ft.
Porch:
550 Sq. Ft.
Bonus Room:
GARAGE
Side
Garage Location:
4
Garage Size:
Exterior Style
Cottage
Country
Farmhouse
Ranch
Southern
Collections
Affordable
Budget
Builders
Empty Nester
First Home
Primary Suites
Open Floor Plan
PDFs Fast!
Split Bedroom
Foundation
Crawl Space Foundation
Optional Concrete Slab Foundation
Framing Information
Stick
Roof Framing:
2x6
Exterior Wall Framing:
Roof Pitch
10:12
Primary:
Insulation (R)
19
Exterior Wall:
38
Ceiling:
19
Floor:
House And Ceiling Heights
10
First Floor Ceiling:
8
Second Floor Ceiling:
26'
Maximum House Height:
Key Features
Attached
Bonus Room
Covered Front Porch
Covered Rear Porch
Detached
Dining Room
Double Vanity Sink
Fireplace
Formal LR
Foyer
Front-entry
Kitchen Island
Laundry 1st Fl
L-Shaped
Primary Bdrm Main Floor
Mud Room
Nook / Breakfast Area
Open Floor Plan
Pantry
Separate Tub and Shower
Side-entry
Split Bedrooms
Storage Space
Suited for corner lot
Suited for narrow lot
Suited for view lot
Unfinished Space
Walk-in Closet

Our Guarantees

  • Only the highest quality plans
  • Int’l Residential Code Compliant
  • Full structural details on all plans
  • Best plan price guarantee
  • Free modification Estimates
  • Builder-ready construction drawings
  • Expert advice from leading designers
  •  PDFs NOW!™ plans in minutes
  • 100% satisfaction guarantee
  • Free Home Building Organizer