20% Off House Plans Sitewide Ends Sunday
20% Off House Plans Sitewide Ends Sunday

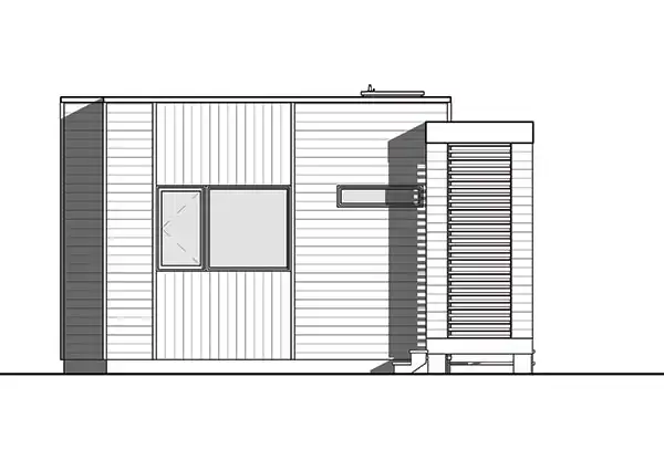
House Plan: DFD-9691

See All 3 Photos > (photographs may reflect modified homes)
© copyright by designer
SQ FT
631
BEDS
2
BATHS
1
STORIES
1
CARS
0
HOUSE PLANS SALE 
START AT  $928.00
For questions and help, live chat, email or call us at 877-895-5299
Floor Plans
Click to Zoom In on Floor Plan
 
About House Plan 9691:
This modern two-bedroom home makes a bold statement in any neighborhood. Enter the home off the side porch. Then open a pocket door to reveal the main living spaces. The efficient kitchen boasts a peninsula eating area. The family room opens to a rear porch and the backyard beyond. Two bedrooms share a full bath.
House Plan Pricing
STEP 1 Select Your Package

PDF Single Build


Digital plans emailed to you in PDF format that allows for printing copies and sharing electronically with contractors, subs, decorators, and more. This package includes a license to build the home one time.

PDF Single Build $1,160
Immediate Delivery!
Most recommended package

3 sets + PDF


Please allow 3-5 days for delivery
3 sets + PDF $1,300
3 sets + PDF

CAD + PDF Single Build


CAD files are a complete set of construction drawings delivered electronically. They can be used for any type of modification—including major design changes and engineering—and include a release granting permission to modify the plan. Most CAD plan orders are emailed the same or next business day.
 
This package also comes with a PDF set of plans and a copyright release for making modifications and printing unlimited copies.
 
CAD files are provided in .dwg format. For details on the specific CAD program used, please refer to the PLAN DETAILS section located above the floor plan on each plan’s page.

CAD + PDF Single Build $2,160
2D electronic editable computer files
STEP 2 Need To Reverse This Plan?
STEP 3 CHOOSE YOUR FOUNDATION
STEP 4 OPTIONAL ADD-ONS
Subtotal:
$1160
FREE SHIPPING
Please allow 3-5 business days for delivery of this plan Please check our PDFs NOW collection for plans that can be downloaded and received immediately or live chat us to help you find a similar plan available now.
 
Plan Details
See All Details
Finished Square Footage
631 Sq. Ft.
Main Level:
631 Sq. Ft.
Total:
Room Details
2
Bedrooms:
1
Full Baths:
General House Information
1
Number of Stories:
18' 0"
Width:
44' 0"
Depth:
Single
Dwelling Number:
None
Bonus Access:
Unfinished Square Footage
GARAGE
None
Garage Location:
0
Garage Size:
Exterior Style
Contemporary
Modern
Collections
ADU
Affordable
Budget
Cabin
Canada
Empty Nester
First Home
Old House Classics
Open Floor Plan
Foundation
Crawlspace (included)
Floating slab
Monolithic slab
Framing Information
Truss
Roof Framing:
2x6
Exterior Wall Framing:
Roof Pitch
0/12
Primary:
Roof Load
55
Live:
20
Dead:
Insulation (R)
25
Exterior Wall:
0
Interior Wall:
40
Ceiling:
0
Floor:
House And Ceiling Heights
9
First Floor Ceiling:
12' 4"
Maximum House Height:
Key Features
Covered Front Porch
Covered Rear Porch
Crawlspace
Deck
Family Room
Front Porch
Kitchen Island
Laundry 1st Fl
Primary Bdrm Main Floor
None
Nursery Room
Rear Porch
Slab
Suited for narrow lot

Our Guarantees

  • Only the highest quality plans
  • Int’l Residential Code Compliant
  • Full structural details on all plans
  • Best plan price guarantee
  • Free modification Estimates
  • Builder-ready construction drawings
  • Expert advice from leading designers
  •  PDFs NOW!™ plans in minutes
  • 100% satisfaction guarantee
  • Free Home Building Organizer

See terms opt out anytime